前言: 这是位于上海徐汇的50㎡旧房改造项目,业主热爱自然与生活,选择了海洋板/桦木作为家的主调,希望在家中营造出一种与自然和谐共生的氛围。绿色,作为生命与活力的象征,被巧妙地融入到家居设计中,为这个小空间带来了清新与生机
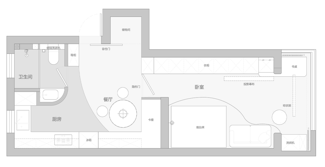
入户左侧,玄关柜以简约的设计迎接着归家的人,提供了充足的存储空间,让生活井井有条。推开门,一个精心规划的衣帽间映入眼帘,它不仅是一个简单的收纳空间,更是生活品质的体现。在这里,你可以尽情展示自己的风格,也可以享受整理带来的乐趣。
绿色洞洞板,不仅增添了一抹清新的色彩,更是创意收纳的小天地。钥匙、帽子、围巾,每一件日常小物都有了属于自己的位置。
踏入开放式的餐厨空间,白色与木色的和谐搭配让整个区域散发出家的温馨与宁静。墙面上的海洋板,以其独特的纹理和色彩,提升了空间的层次感。
餐厅区域的设计别出心裁,卡座与圆桌的搭配,既实用又充满趣味。而圆桌的上方的吊灯,为用餐时光增添了一份浪漫与温馨。卡座下方隐藏着的收纳空间。
转身步入开放式厨房,L型厨房操作台流畅而宽敞,无论是准备食材还是烹饪美食,都能得心应手,弧形的墙面设计,让厨房显得更为柔和。
干湿分离的设计,巧妙地将洗漱区与沐浴区隔开,既保证了空间的干爽与清洁,又提升了使用的便捷性与舒适度。
洗漱区用清新的绿色明亮而活跃,仿佛晨间的一缕阳光;干湿分离的设计,肌理砖带来高级的质感。
相关案例推荐
屿设计
设计师相关作品

粤公网安备 44010602000156号