前言:
当人在室内与空间发生互动时,静态的家立刻有了鲜活感。
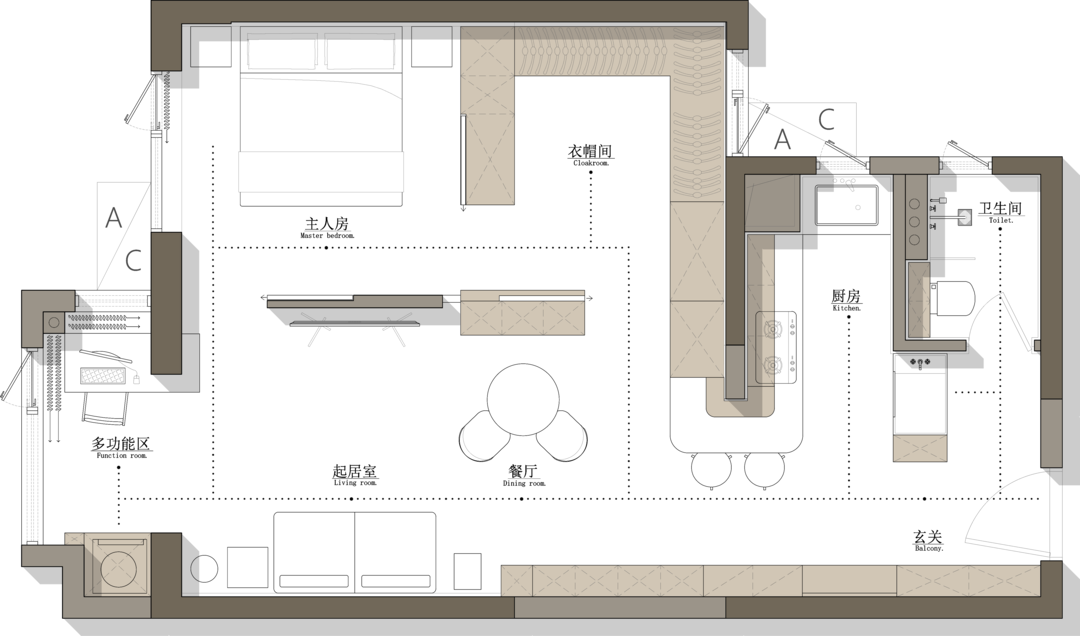
面对仅78m²的原始空间,过道狭长且各功能区彼此独立封闭,导致空间局促以及光线流通受阻等问题。我们聚焦于探索小空间的可能性,通过开放式布局与洄游动线设计,消除实体墙的阻隔,创造豁然开朗的视觉与空间体验。将各个区域作为多向通道,无需折返的行动路径实现功能的灵活性与场景的多变性,让独居生活更加便利。
在78m²的有限维度里,一场打破传统居住模式的探索正在发生——包豪斯的理性秩序服务于一人生活的感性需求,家是一个自由的、可互动、让人呆得住的空间,它承载着独属于自我的日常仪式,更在流动的布局中,生长出无限的生活可能。
相关案例推荐
网友评论
姚轻轻
设计师相关作品
编辑精选

粤公网安备 44010602000156号