前言:
“最珍贵的是家人相处的时光,在一起什么都不做也很幸福。”
本案的屋主是一对夫妻与一个小朋友,父母偶尔会过来小住,享三代同堂之乐。对于屋主来说,最重要的就是一家人在一起,健康平安幸福的生活,所以对于这个房子的装修需求最重要的一点也是:空间要有互动性,最好再有趣一点。
我们在屋主的需求基础上对空间整合重构,以“盒子体块”的模式呈现空间,一体化材质强调独立区域,同时又能在横纵象限上拉近尺度距离,增加互动性与趣味感。
空间结构的改动同时也优化掉原有的不合理情况,比如地下室不通风不透光的弊端在拆除一层楼板+改动楼梯位置的双重改动之下,收获一方开放式空间,敞阔且通透,详细改动我们会在后面一一讲解。
本案以人文相处为第一主旨,以实现屋主对于家的温情治愈期待的具象化呈现,打造这个多模块、高互动、具有呼吸感的趣味之家。
改造亮点:
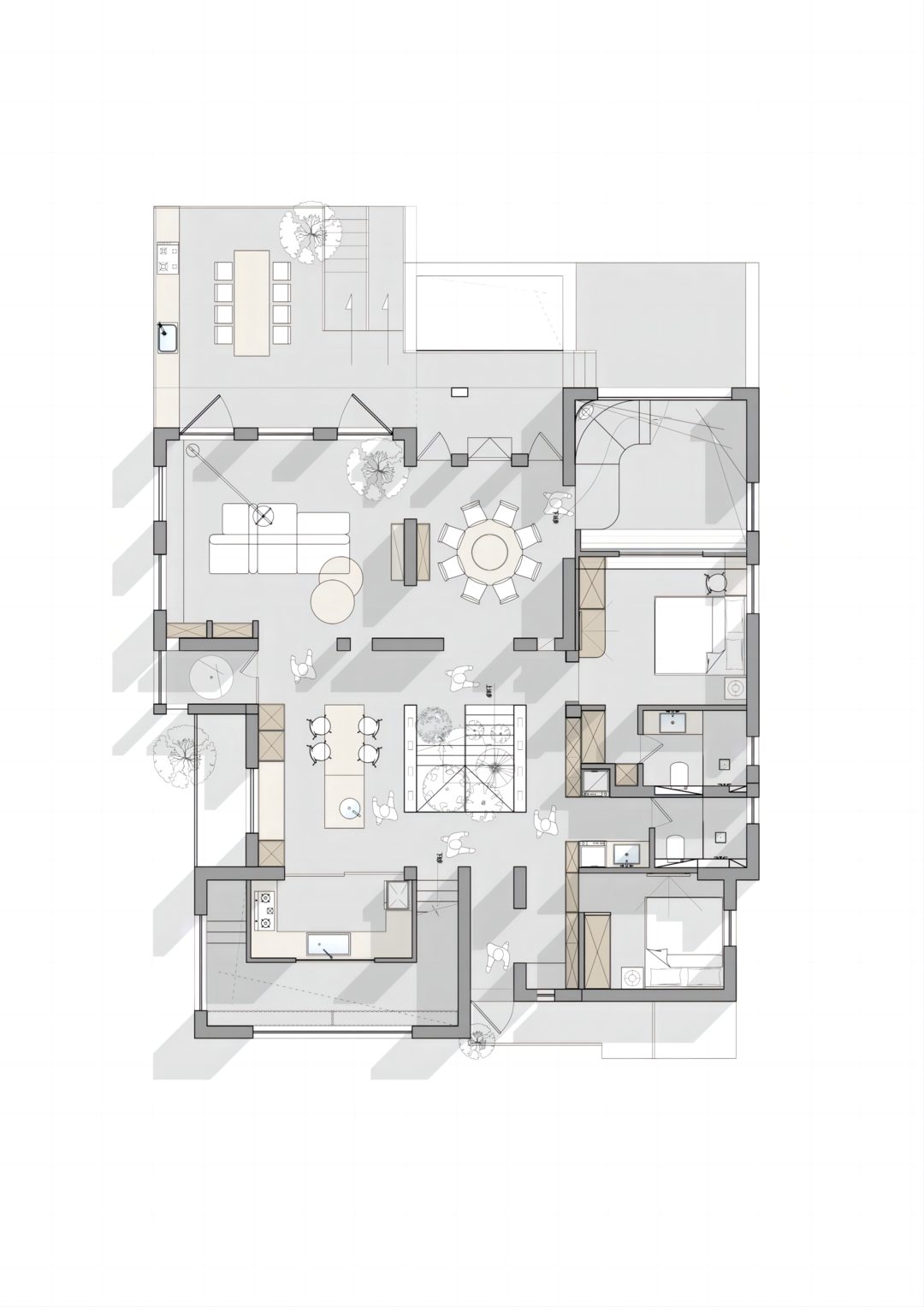
1.利用原有车库空间,重新规划入户门,增加玄关储物功能;并对门厅做挑空处理,入户视野更加通透敞阔;
2.将厨房位置改动,挪至入户区与储物空间整合一体,丰富功能性与储物,也强调空间互动性;
3.原本一层楼梯位保留,取消一层到地下室的楼梯,改至其他区域,更符合日常活动路线;一层楼梯设计为悬空款式,同时地面改装玻璃材质,增加空间的纵向通透性。
4.原餐厨区靠窗一侧拆除层板,与地下室上下贯通形成挑空层,同时将地下室楼梯安置于此,解决地下室采光及通风问题;
5.原餐厨未挑空部分改为长辈房,合理规划空间,且增加上下空间的贯通感,大尺寸的圆形玻璃增加采光及互动性;
二层书房区域外扩休闲区,形成独立的空间体块,增加书房面积的同时,也加强与客厅的互动。儿童房保留原本房型的斜顶,增加上层盒体睡眠空间,扩大下层的娱乐/学习/收纳空间。
地下室整体朝南区域外扩,增加通风及采光。设计台阶教室区域,增加家庭学习娱乐区,满足亲子天伦之乐。
二层“盒子体块”为书房延伸区,整体以木饰面包裹延展,结合整面玻璃墙设计,强调空间纵向上的延伸性与关联程度,释放空间尺度,带来视觉与感知上的放松,让家更具有呼吸感。
空间侧面吊顶依据原有斜面结构,定制斜面体块,将其构造为屋顶结构,结合下方落地窗布局,将不规则吊顶空间规划为类对称结构,不影响视觉层高的前提下,更为美观大方,兼具西方建筑的自由与现代设计的清简大气。
客厅空间保持原有结构,整体以低饱和为底色,结合木质呈现温和气质,多面采光窗布局给予室内敞阔明朗的视野,异形顶面不规则但高挑,我们保持原样,并于顶面做无主灯设计,在原有结构的基础上延展并刻画空间层次,以打造一方不失原始质感又轻盈舒适的活动空间。
选择靠背式组合模块沙发,打破传统沙发模式,结合空间结构,给予日常生活场景上的更多可能,米色调与浅色木地板相衬,迎合空间干净清和的气质,宽敞布局满足多人坐卧需求,方便屋主一家及长辈共享温情时刻。
从餐厅看向侧面,将原餐厨空间分隔出一半拆除层板与地下室打通之后,空间纵向的关联性大大增加,也为地下室带来良好的采光及通风。餐厅侧面做镂空栏杆设计,铁艺栏杆搭配木质边条,雅致美观且不阻隔视野,增加空间通透与轻盈感。
将餐厅搬至客厅旁边,空间动线联系更为亲密,圆形餐桌代表着国人喜好的“团圆”之意,更适合多人用餐氛围,上方安装圆形吊灯,造型简洁大方,与下方圆桌相呼应,空间视觉效果更显和谐,烘托平凡但温暖的用餐氛围。
原楼梯位置,一层向上楼梯保留,一层向下拆除,并改装地面,换上九空格玻璃,释放视觉纵深度,以增加轻盈感,也让地下室采光更为明亮,空间呼吸感便是从这些结构改动中而来,构筑一个舒适且灵动的居住空间。
一层空间整体调整之后,选择将厨房挪至近入户一侧,利用原有车库空间,打造兼顾收纳空间以及下厨空间的整体化区域。厨房与背后储物间做嵌入式结构处理,储物间以U行布局包裹厨房,走道侧面定制整墙收纳柜,下方做推拉木质格子窗,与地下室连接,方便通风透气,靠厨房一侧墙面定制大型窗洞嵌如磨砂玻璃,以增加视觉通透感。
原有的入户空间整合重建,成为厨房与客厅之间的过渡区域,于此定制岛台餐桌,并靠窗打造西厨吧台,定制独立西厨区,与中厨功能各自独立,,日常使用更加便利,在此早餐或是下午茶或者家人一起烘焙下厨等都可以,提供更多亲子相处陪伴的空间,让家人之间的互动更多,以增进感情。
一层往上楼梯位置不变,但整体拆除重建,改装为镂空踏步,悬浮款式更显轻盈通透,搭配同款镂空扶手,光线穿楼梯而过,避免空间纵向上的视觉阻挡,更具呼吸感。楼梯下方地面改装玻璃CIA孩子,中间以室内造景布局,将自然景致与视野通透结合,打造一处美观且大气的楼梯景致。
二层书房位于餐厅上方,旁边客厅为挑空层,将书房侧面重新改造布局,拓宽延伸出部分空间,做不规则区块设计,同时侧切面安装整面玻璃,将一层客餐厅区域与二层书房之间跨越横纵轴线连接起来,给予不同区域之间更为丰富的互动感。凸出部分整体切面选择木饰面包裹,强调空间界限,让家更具秩序感。
书房吊顶同样为斜面,于层高充足的一侧背景墙定制满墙收纳柜,通高到顶的设计避免卫生死角,视觉上更更具整体性,封闭式柜面与开放柜格兼具,白色实木与黑色玻璃并重,满足不同的收纳储物需求,视觉层次也更为丰富。
地下室延续一层厨房+储物结构,居中定制收纳墙柜,两侧打造台阶形成洄游动线,两侧背景墙均蒂尼储物柜,丰富收纳容量,顶面做弧形过渡,线条更为柔和自然,于侧面作镂空处理,嵌入打造软膜天花,均匀柔和的光线大大增加走廊亮度,弱化狭窄过道的压抑感。
地下室结构整体改动,将原一层餐厨区域楼板部分拆除,规划出一个临窗的挑空区,改善地下室通风及采光不佳的问题,同时改动原楼梯位置,将其挪至临窗角落,打造弧形楼梯,将上下层空间自然衔接起来,过渡流畅,丰富家的灵动感。
延续一层楼梯材质,选用原木及铁艺镂空扶手,以增加视觉通透性,恰当的曲线造型更具有延伸感,与墙角之间保留镂空部分,释放空间呼吸感,让阳光不受阻碍洒入室内,地下空间同样可以舒适且治愈。
侧面留空区作为休闲室存在,将上层地板做镂空处理,打造圆形孔洞以串联起上下空间的联系,并安装绳结垂下,下方铺上防摔软垫,打造一方游乐区,给小朋友一个安全又有趣的活动空间。
将原有墙体拆除,打造开放式学习阅读空间,阶梯式布局更方便坐卧,全木地板铺贴便于席地而坐,给阅读或是学习提供舒适的场所,无论是亲子学习还是看书休闲都惬意,两侧的墙面留空布局,以增加区域间的互动性,空间采光及通风得以改善,更为安全舒适。
侧面墙结合阶梯定制开放式书架,延伸至转角壁龛,圆形镂空结构丰富视觉层次。多层木质书架可以容纳全家人的书籍,为空间带来浓厚的书香韵味,提升学习氛围,培养小朋友的阅读兴趣,开放式布局也方便查找拿取。
将地下室整体朝南外扩,于顶面定制玻璃吊顶打造阳光顶,增添地下室通风及采光。阳光顶下方做绿植造景设计,框定区域定制大型栽种区域,内填土壤并搭配不同植株花草,结合顶面阳光,将此处打造为生命力满满的室内景观,拉近与自然的距离。靠内安置茶桌椅等,伴着景致喝茶谈天,便是一处悠哉闲适的放松之所。
主卧同样为斜顶空间,将原有零碎空间整合,并将卧室门体外推,打造兼具睡眠区、洗手间、衣帽间一体的套间,睡眠区与主卫之前定制柜体隔断,丰富储物且具有视觉遮挡更为美观,侧面做留空处理并嵌入木质边套,打造室内端景,床头处留空以加强贯通性,多出镂空布局让空间更具有呼吸感。
地下室楼梯与一层以曲线相连,上面延伸至餐区,柔和自然过渡,空间关联性更为亲密。拆除部分层板之后,长辈房侧面临窗连接底下空间,我们在布局上选择打破常规,以全木饰面包裹墙面,以形成独立体块,更具有趣味性,下沿部分做弧角收拢,视感柔和美观。
同时于墙面上开凿大尺寸圆形窗洞,嵌入全透明玻璃,将自然光线引入卧室内,打造一个敞阔舒适的睡眠环境,同时也增加卧室与外界空间纵向上的宽脸,视野开阔且明朗。
儿童房重新规划,改动开门位置,于原开门处空间定制整面嵌入式玻璃墙柜,节省空间且丰富储物容量,柜体内做规整划分,方便放置小朋友的各类玩具或其他物品,既是展示也是储物,美观且实用。
于侧面靠墙定制楼梯,与收纳功能结合一体,正面看即为置物架,可以放置小朋友各类玩具以及书籍,也便于培养小朋友自己动手的能力。台阶上方于外侧安置铁艺扶手,方便上下楼梯时搀扶,给小朋友日常行动间更具有安全性的保障。
儿童房同样具有斜顶,结合其原有结构,于上层定制独立睡眠区,全木色材质形成独立体块,与长辈房形式相呼应,也为空间增添许多趣味性。睡眠空间置于上方,则留出下方大量空间给小朋友活动,无论是学习或者玩耍都充足,从设计角度去给予小朋友独立的秘密空间,以度过一个充满欢乐的童年时光。
相关案例推荐
Jason-方涛涛
设计师相关作品
编辑精选

粤公网安备 44010602000156号