前言: 原户型客餐厅面积占总面积比例很小,且餐厅空间采光和通风较弱,对于有两个正在上幼儿园的男孩家庭来说,孩子的活动空间和学习空间需要更加合理的去规划。去更好的引导小朋友自主学习,营造出良好的亲子互动氛围。
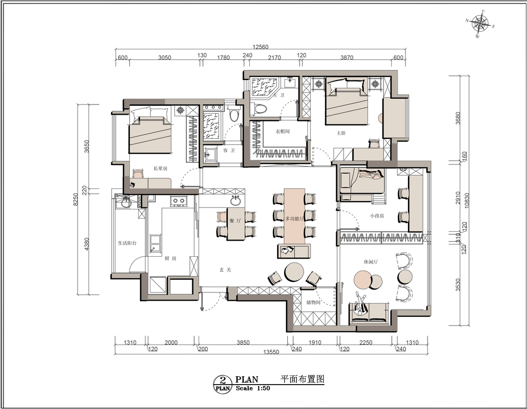
拆掉了大部分隔断墙,格局调整有以下变动:
1.厨房拆除隔断,用玻璃门推拉门代替;
2.厨房与生活阳台的墙打掉,换以更宽的玻璃窗;
3.餐厅与卫生间隔断墙拆掉,改为操作台;
4.拆掉餐厅与房间墙体,阳台纳入卧室,增加餐厅面积;
5.原客厅将阳台纳入室内,通顶收纳柜代替与房间的隔墙;
6.主卧改变开门方向,并调整卫生间增加衣帽间面积。
绿植
简约
餐厅
装饰画
餐桌
灯具
日式
现代简约
橱柜
原木
乍一看是开放式的厨房,实则是能完全打开玻璃推拉门,使用厨房时可变身为封闭式。用餐区操作台预留蒸箱,为爱吃蒸菜的家人做更加充分的饮食考虑。
公共区域为回形动线的开放式空间,结合梁位设计斜面天花,再通过灯光的处理,使得空间的天花更加有块体感,也不会觉得压抑。
公共活动区和儿童房之前留了一扇透光不投影的固定玻璃,这么做一是为了活动区更好的采光,二是方便大人随时能留意到小朋友的动向。
去客厅化设计,业主家里没有看电视的习惯,更希望拥有一个可以属于全家人交流、娱乐、学习等多功能的活动。我们摒弃了传统的电视背景墙做法,靠墙做整排的收纳柜,用隐形门藏了一个利用凹位空间围合的储物间,推开门是货架形式收纳,充分满足日常储物需求。
原客厅位置规划为多功能房,也可以作为家庭教室,预留了投影幕位置,方便孩子在一个安静独立的学习线上课程。闲暇时这里也是全家最喜欢待着放空、看书的一个角落。
利用飘窗空间做了一个大梳妆台,两边的柜子分别用来展示收藏品和囤货,各个柜子的功能也要在前期规划清楚。床尾出另外设置一张书台用来办公时使用。
弧形拱门是通向衣帽间的仪式感,白色木饰面柜门为原不大的空间提供视觉支持,不至于过分暗黑,顶部双排射灯也能起到照明效果。
小孩房靠窗边定制长桌,可以满足两娃同时学习,也能随时观测到窗外植物的变化。窗边利用承重墙的凹位设置了书架壁龛,充分创造更多的收纳空间。
隔断墙用收纳柜替代,可满足两空间的储物需求。满墙的衣柜从小培养孩子自己整理衣物的独立性与习惯,两人一起学会空间管理。
相关案例推荐
居研设计
设计师相关作品

粤公网安备 44010602000156号