前言:
窗外是高架桥,窗外的人看它是老破小。繁华噪杂、车来人往,大多数人对这个家有着刻板印象。窗内住着温馨的三口之家,在54平房子里腾挪一处“滋养胜地”,步入、驻留、观赏、休憩的方寸间,获得“闹市与归处、快节奏与慢步调”平衡。
屋主放弃了“远、大、新”的广州郊区房,选择位于广州老城区的两室两厅。
从两房延展出三房,我们打造几处有意思的空间,一个如置身于烟雨江南,小桥流水的多功能房;一个如悬浮树屋造型的儿童房。
为屋主找到属于他们的“闹市中的桃花源”。
#灵感来源于古代江南水乡,遇见心中的桃花源
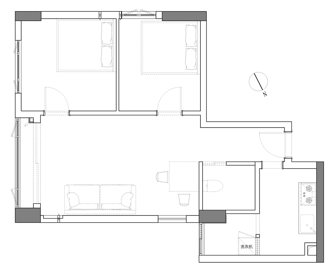
在整改前,我们了解到,本案房子的原始平面架构是传统的两室两厅,方正规整。
上一任屋主把原基础的两房改造成“三房”。
原厨房位置改造成杂物间,但由于光线不足,长期是一个“小暗房”状态,并占用了卫生间部分面积,导致厨卫的空间利用率大大削弱。
#改造前的家
因此,摆在我们面前首要考虑到的问题是,厨卫-杂物间-客餐厅之间如何让格局更舒适。
我们通过细化几个生活场景,扩大功能性空间,让生活行为在空间情绪中呈现出丰富布局,各得其所,各具美意。
#轴测图/现场制作模块
#效果图,往下看实景还原↓
家门,是情绪切换的开关。外边的纷扰统统拒之门外,欢迎踏入一个全然安宁,舒缓的庇护所。
在进门处,原本的多功能房的门洞被重新填补,置换成鞋柜的收纳,消除由过道延伸导致的面积浪费。顶部模拟天光的软膜天花,解决了长过道采光不足的通病。
我们利用镜面的材料贴在梁体的底部,通过镜面反射让空间得以视觉延伸。同时,镜面的高度持平卫生间盒子高度,整体的空间节奏线在统一水平线上。
改造前玄关处,光线不足,空间利用率低
玄关左手边的推拉门,既是衣帽架,又是杂志架。
推拉门轻移,进入一隅尘世之外的清幽之境,可被打造成工作区、休憩区,以及独立泡澡间,洗漱间等,契合居住者的雅趣,衍生出无限的想象空间。
驻足观物,窗开半晌,仿佛置身于江南水乡之境:临水而建的小木屋,窗外绿影摇曳,芬芳自得。于此静坐沉思,和时间对望,偷得浮生半日闲。
小书房的窗户采用古代的支摘窗设计,材质选用障子纸,既透光又能保证一定的私密性。房门采用中式窗棂造型,营造整体清新淡雅的氛围,让居住者恍若置身于世外桃源,忘却尘嚣。
向内,半窗疏影,境融自然;向外,潺潺流水,绿柳映碧,皆可沉浸于此刻的宁静与舒缓。
书房里的地板抬高处理,加上垫子就是一间次卧,可作临时客房。在支摘窗边延伸出一张小书桌,室内墙面和天花板用海洋板小木条包裹,弱化墙面与天花突出的阳角视觉。
摆放着小朋友最喜爱的“卡皮巴拉一家”,营造一处慵懒而精巧的空间。
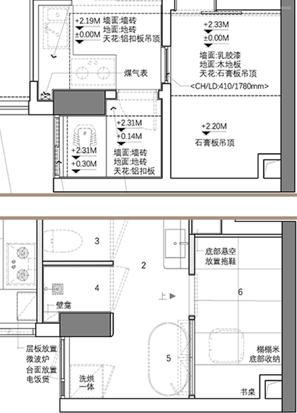
卫生间与淋浴间的顶部有一个大横梁,为了避免空间逼仄感,我们在平梁处装置“固定玻璃”,白天时间两个空间都能通过顶部的玻璃借到自然光线,解决原本“昏暗”问题。
也正由于这个“梁”的bug,厨房油烟机的油烟管道也需要装饰起来。我们把它藏在卫生间与淋浴间之间的墙体顶部,装饰成是一个“小梁位”,很好得包裹住油烟管道,让空间有了更整洁的底色。
我们希望让“家庭互动”成为家的能量之源,于是取消原有封闭式厨房,客餐厨一体,保证单面采光的公区在改造之后更通透明亮,即可感应朝夕,也有四季三餐。
宽敞明亮的厨房,拥有一张足够接待朋友的大餐桌,珍视与亲朋好友日常的点滴,生活过得有滋有味。餐桌底部的柜子也充分利用起来,柜门内藏了一个自动上下水扫地机器人,开放层板后,屋主锻炼用的装备也有了一席之地。
改造前客厨区,动线不灵活,光线不明朗
厨房的吊柜持平卫生间盒子顶部高度,视线延伸至梁位,显空间宽敞,也是“卫生间盒子墙面没做到顶”的用意。
客厅沙发背景墙原本有一个老式建筑的空调箱凹位,我们改造成了一个圆形的小圆灯。
客厅与阳台之间衔接的梁柱大有妙处,当你初次来到这个家,可能会疑惑卫生间和客厅中间是没有灯的?因为我们利用这个梁把灯隐形掉了:灯隐藏于梁的背后,放在沙发边的顶部位置。
家政柜的高度与整体空间在同一个节奏线,家政柜旁两个隐形门的缝隙也设计在一个水平面,突显墙体的简洁流线和微妙起伏。
好的形式自然会产生好的内容。入户、厨房、客厅,每一处规划,每一个局部,都以功能的合理实现为设计逻辑,让规整有序的空间具备分区域收纳的实用性。
小朋友的想象力和创造力不断被激发,儿童房便是他的灵感源泉。踏上云台阶,一步步抵达属于他自己的悬浮树屋。
一整面墙的乐高书柜延伸至窗台形成一个小卡座,被打造成小朋友的小书吧,细心规划,为创造留出更多空间。
悬浮树屋的底部是小朋友的衣帽间,一方天地解决了休息和收纳的问题,功能与个性兼具,重视孩子的成长需求才是最好的童年礼物。
于闹市中取静,于纷繁中寻简。主人房贴合屋主的极简需求,不要床头,不要梳妆台,尽情留白之余,我们也为屋主准备了一个收纳怪物,一整面3.2米的不锈钢大衣柜,规划一个有序布局。
百叶窗为空间铺上一层滤镜,日间恣意享受悠闲时光和日光,夜间遥看霓虹灯光却不被打扰,坐拥四季更迭时的快意时光。
相关案例推荐
陈智超
设计师相关作品
编辑精选

粤公网安备 44010602000156号