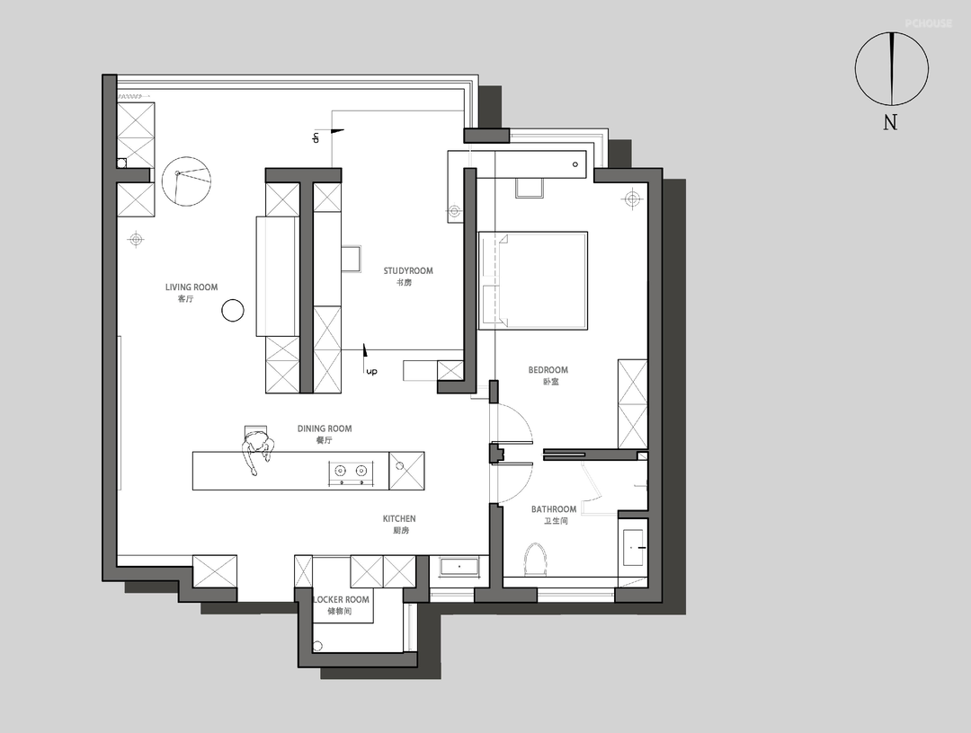
前言: 这套房子被打造成放肆且有乐趣的包容场所,让身处城市生活平淡的我们可以放松,有一个可收可放的空间,让空间有别于平时身处和所见的环境。设置开放式厨房,让空间归整,满足功能同时让空间开放、流通,开放化机动书房空间,使得彼此联通、互动,空间更加包容。我们细分并克制材质和色彩的运用,将原本闲空的阳台归纳于客厅与书房,让光线视线更灵动。整个空间东区为公共区,西区为隐私区。主卧空间进一步打破传统,通过穿插、交错手法,让一个人也可以更精彩。卫生间扩大更提升生活品质,通过口袋隐形门设置,让卫浴空间更灵活、个性。
餐厅
相关案例推荐
网友评论
木桃盒子设计
设计师相关作品

粤公网安备 44010602000156号