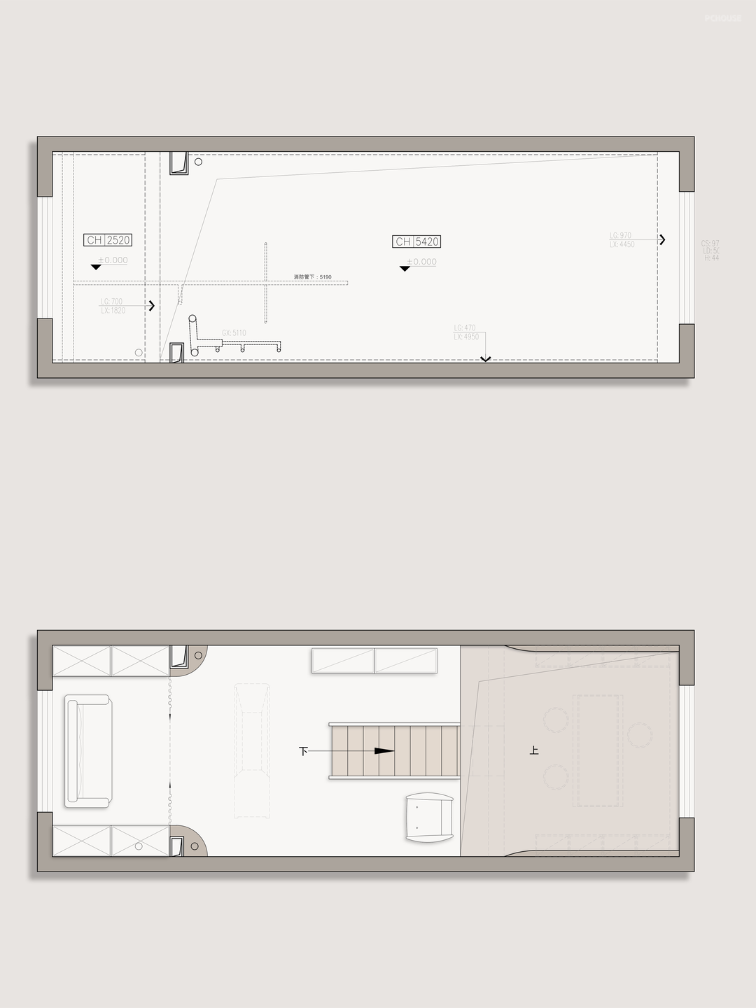
前言: 业主是一位多才多艺的酷男孩,从事银饰品设计、制作,他通过网络平台找到我们,并将两套公寓交由我们设计,一套同爱人自住,另一套用于平时放空身心,喝茶会友健身。我们先来看下这套小面积的LOFT户型吧。
客厅
网友评论
木桃盒子设计
设计师相关作品

粤公网安备 44010602000156号