前言:
设计说明:
人类文明一直在“变”与“不变”的斗争中曲折向前发展。在现代社会中,人们追求的审美也日渐提高,医学与商业也通过结合艺术碰撞出更多的价值,不断提升品质。天津眼科的门店设计风格上也以此为精髓体现。
北辰店既保留了以专业医疗技术、用心服务客户为核心,又因地制宜的功能优化,充分地体现全功能视光诊所的医疗品味。医学、商业与艺术的高度融合,既强调空间的视觉功能,利用灯光、色彩、艺术设计的手段营造出一个温馨和专业的视觉空间,又在天津眼科自有风格上做了完美表达。
进入北辰店,时尚的风格尽显天津眼科室内装饰的文化精髓。大量圆弧、圆环、圆形收角的造型尽收眼底,从天花到背墙、楼梯、前台,均以流动的线条展示艺术美感,与特有的VI颜色编织出了丰富的层次感,共同构成了天津眼科室内特有的艺术形态。
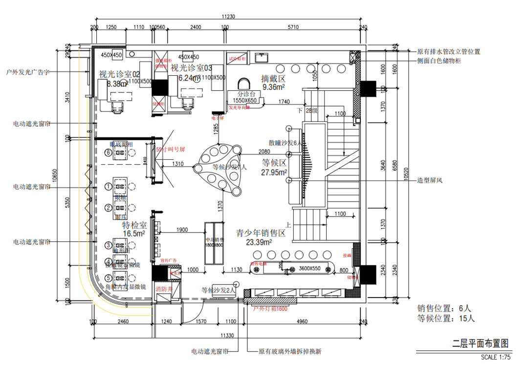
一层大型落地窗设计,使光线充分进入室内,明亮而富有活力。接待前台和检查室分列两边,VI颜色点缀其中,烘托出舒适和专业的视光诊疗环境。
进入销售区,眼镜陈列背柜与隐形柜以白色为主,与大厅环境浑然一体,干净整洁。一面木纹色入墙背柜,柜身木纹经过多次多道工序热压,工艺精湛,营造出简约的外观。两面金色亮丽的入墙背柜,金色外框墙身上镶嵌着金属支架,棱角分明。柜台上空多个圆形水滴造型气氛灯,与接待台的造型灯相互辉映,独具匠心。
一层最吸睛之处便是那旋转楼梯,穿梭在各楼层间,蜿蜒盘旋而上,通透美观。二三层的白色护栏模拟“眼睛”造型,栩栩如生,提升对顾客的吸引力,凸显眼科的专业,医学与艺术的融合。
二层以视光为主,销售为辅。中间是一个异形沙发,形状独特,实用兼备。天花由多个大小和层次不同的圆形组合而成,使空间极具视觉美感和舒适感。
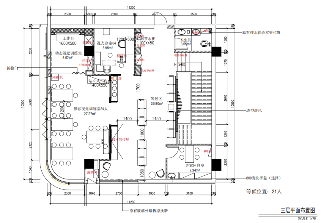
销售区白素静雅,简洁时尚,4个悬挂式胶囊陈列柜,用开放的陈列模式销售商品。陈列柜采用椭圆形外框,内置方形陈列层板,空间排列齐整,营造出对称美感。中间的白色销售中岛,很好地将两边的背柜销售连接起来,形成流畅的动线。销售区与功能区兼而有之,营造浓厚的视光诊所氛围。
二三层拱门、门框等采用天津眼科VI颜色点缀,色彩运用极富艺术穿透力,让空间环境有了更多的可能性,在温润开阔的空间中形成整体和谐的空间界面。采用留空的弧形门洞结构,拉伸了空间,提升了层次,为顾客提供一个柔和舒适的视光检查空间。
相关案例推荐
罗科
设计师相关作品

粤公网安备 44010602000156号