前言:
当生活方式和建筑融为一体时,生命才能开始庆祝。
Life can begin to celebrate when the way of life and the building merge.
——巴克里希纳·多西(B.V.Doshi)
我们便是要追求那种一笔画下、一气呵成的流畅感,戒掉形同样版一般不具表情的空间设计,在有限的框架内,构筑超出实际空间所能承载的美学及生活方式,让「你我之间」满足一切感性的体验……
从一进门开始,步入眼帘的便是来自意大利的CPM装甲门,竖版条纹式设计且自带与生俱来的厚重感,让人从一进门就能感受到极大的安全感,霸气十足!配以百年经典的Yale智能联动门锁,让主人从刷指纹进入家的那一刻,便拥有了为自己量身定制的六大智能场景,无不体现智能家居为我们生活带来的舒适与便利。
玄关区墙顶地的完美结合,透过长虹玻璃的极简门,黑色的金属空调孔,这光、这景,我们做到了极致。
步入玄关,映入眼帘的是一只超级限量版暴力熊,没有繁杂的装饰和色彩,纯净大方而又气定神闲,黑色中透出霸气与安全,让人一进家门便忘却了一天的烦扰与疲倦。
客厅沙发区,洁净柔美的光透过来自荷兰的HunterDouglas智能百叶窗帘系统,映射在整个客厅的地面上、石材上、家具上,每一道光影,每一条反射,都是那么的迷人。我爱地面上的柔光,我爱石材上那阴暗交错的质感,我爱透过Poliform家具上反射的每一道光,都是那么的美,那么自然。
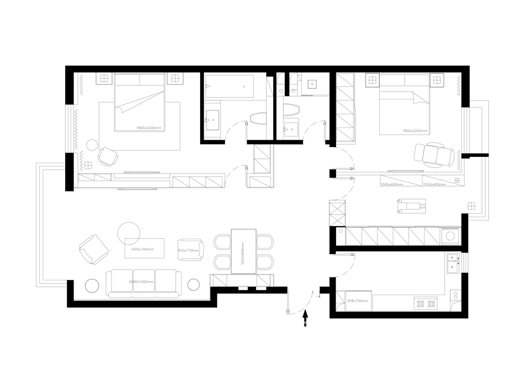
本案中,设计师用别具一格的设计手法,在有限的框架内打破一贯的居住思维,构筑定制化的美学及生活方式,让「你我之间」满足一切感性的功能体验与视觉冲击力。各种材质衔接自然且流畅,巧妙绝伦地演绎出每种功能空间的节奏属性。每一个设计亮点都与屋主的性格相互交流,诠释屋主对品质生活的要求。
仅由轮廓与线条勾勒的时钟为客厅增添了几分洁净利落的神韵,与天然石材背景墙相互依托,呈现出独特的装饰效果。整个客厅宽敞通透、装饰简练而精致,时刻彰显着屋主的格调与品位。
客厅呈黑白灰色调,作为整个客厅的亮点——沙发背景墙,设计师用特殊材料做呈现,还原并强调空间内材质交织的魅力,引入质朴天然石材,与良好的自然光照相映,平衡着整个空间内的家具造型,同时也平衡着理性的生活方式,并满足感性、大胆、创新的生活体验。极简风格的电视背景墙与木纹、石材形成了独有的成熟内敛气质。
客厅电视墙选自老矿的云朵拉灰天然石材与来自台湾的KD纯实木涂装板,配以黑色拉手,形成了绝佳的完美组合。充分展示了石材+木饰面+金属钢板+灰色地砖的多材质应用。
厨房所使用的则是来自日本进口的Toclas橱柜,这种灰色的冷艳配以欧文莱55度灰色,绝对让人爱上厨房,全进口厨房电器,又为厨房增添了许多高级感,让下厨变得更有仪式感。
餐区正对的的粉、蓝、黑色的限量版玩偶,让我们永远保持一颗童心。
餐桌吊灯则选用与井柏然家同款的GUBI灯,配以华意空间的餐桌餐椅,金色、白色、灰色、木色的完美结合。
设计师运用开阔的空间设计手法,将餐区、客厅相连,扩大视觉感受,设计出满足个性化生活需求的流畅动线。黑白灰色系与木饰贯穿空间,灯具由几何线条塑造造型,金色外观增加美观度。
卫生间则选用来自福建特选石材——杭灰石,配以欧文莱灰,和谐中透漏出大气与沉稳,来自土耳其的威达洁具,也毫不逊色,占据着整个主卫的C位。
灰色棉麻床品,简单却富有品质感。床头的装饰画在灰色空间和暖色灯光的映衬下,显得尤为独特,深色木地板低调而高雅。整个空间简洁大气,单纯不繁琐,营造出宁静、悠雅的睡眠空间。
次卧延续黑白灰色系,为了中和高级灰带来的冷酷感,用多元化材质与形态的卡通玩偶作装饰摆件,令空间颇具几分趣味。
床头主背景墙的KD饰面+灰色玻璃的意式极简衣柜,配以锐驰的家具——有范儿!
次卧室五斗橱选用锐驰品牌,配一个日本限量版玩偶,使空间内生动活泼了不少。
相关案例推荐
触觉设计Bobo

粤公网安备 44010602000156号