前言: 设计师采用经典简约的设计手法,将空间功能合理规划分区,客餐厅一体化设计使得整体空间更加通透明亮,散发出一丝浪漫自由的气息。层次丰富的色调带来情绪满分的张力,疏密有致的肌理谱写出充满韵律的温柔气质。
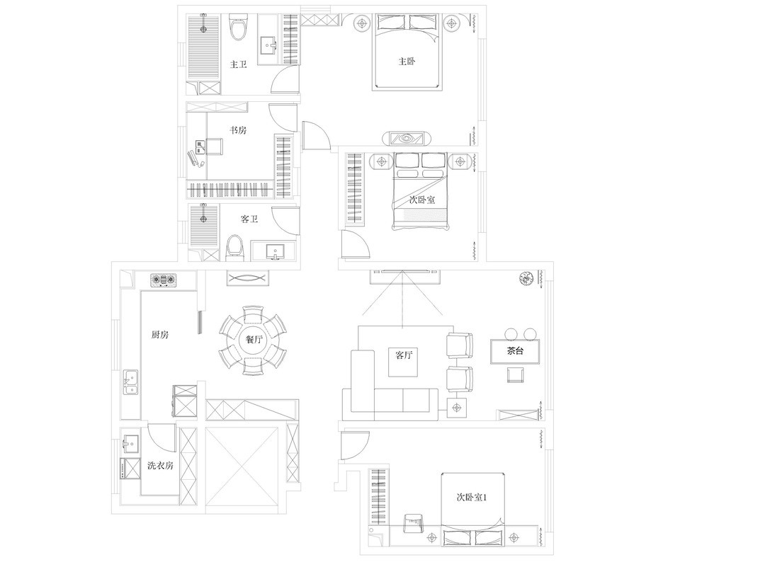
户型图
相关案例推荐
网友评论

粤公网安备 44010602000156号