前言:
屋主是一对90后夫妻,钟情于现代极简风,夫妻俩有一个三岁的女儿,平时夫妻俩上班后,孩子由双方父母轮流来带,所以需要四个卧室。原户型为一套130㎡的三居室,卧室空间均比较小,为了满足屋主的需求,设计师对这套房子进行了一个较大的改动。
打破空间界限,重组空间格局,由紧凑的三居室,改为开敞明亮的四居室,开放式设计引入LDK一体化设计,让客厅、餐厅和厨房共处于一个开放空间内,让整个户型通透流畅。
■屋主需求
1.需要一间主卧和儿童房,双方父母会轮流过来带孩子,所以需要两个老人房。
2.平时可能会在家里工作,所以需要一个独立的书房方便工作,同时也可以作为孩子的书房使用。
3.一层和二层都需要卫生间,方便平时的使用。
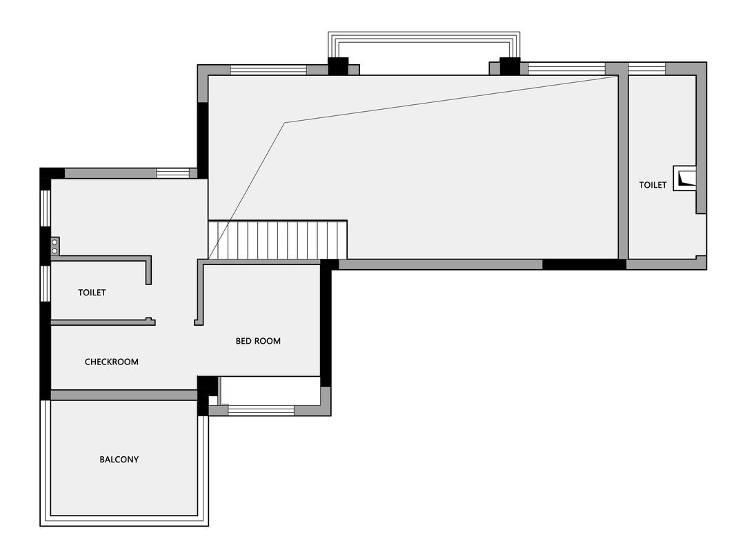
4.主卧和儿童房都需要一个单独的衣帽间。
5.喜欢干净简洁的风格。
6.喜欢衣物自然晾晒后阳光的味道,所以需要一个可以晾晒衣服的地方。
■原始户型解析
①原户型客餐厅都是挑空区域比较大,浪费了大面积的空间,导致二楼可利用空间太小;
②原户型的套内面积较小;许多空间都被墙体隔开,无法满足屋主四个卧室的需求;
③原始楼梯正对着入户门,视线受到阻碍,并且比较浪费空间;
④原始厨房空间较小,平时做饭可能会比较拥挤。
■改造要点
①将原本餐厅区域的挑空搭建成立二楼主卧空间,保留了客厅部分的挑空,在增加二楼空间的同时,保证了客餐厅空间的通透。
②将厨房墙体向外移,增加厨房的空间。
③为了满足客户需要四个卧室的需求,将一层分隔阳台的地方拆除掉,将阳台囊括进室内,考虑到老年人爬楼不方便,所以将两个老人房放在了一层。
④二层儿童房打通与阳台相连的墙体做成落地窗,可以让光线充分的进入室内,同时将卫生间向外移动,增加儿童房的空间,
⑤一层和二层都设计了洗衣空间,方便老人的使用。
⑥厨房外侧阳台区域位置设计成洗衣晾晒区,同时也可以堆放一些杂物。
⑦改变了原始楼梯的位置,将楼梯移到电视墙后,保证了公共
公共空间采用LDK一体化设计,把西厨、餐厅、客厅连在一起,增加空间之间的互动性,简洁的线条与色块,去繁留简,通过设计动线打造流动的空间。
木纹温润的质感给人感觉温馨舒适,搭配上纯白的墙与顶面,使空间显得简约自然、冷暖有度,创造出家中温情的环境;适当的留白,营造出安静且舒适的氛围。窗外的阳光可以无阻拦的照射进来,自然光线让屋内采光更舒适明亮。
餐厅看向书房,书房采用开放式设计,极窄边框的玻璃推拉门增加空间之间的通透性。
灰白色的岛台勾勒出简洁的轮廓,营造出极简的气氛,岛台的存在增加了厨房的操作空间,下方空间可以储藏物品,满足屋主日常的收纳需求。
“U”字型的平面布局,极大的提升了厨房的储物功能;将电器隐藏在柜体里,让使用空间得到充分的释放和利用。
电视墙与楼梯扶手相结合,背面是通往二层的楼梯,黑色的电视柜一直延伸到最右侧,黑白的色调赋予空间足够的现代感。
大面积的窗户为客厅提供了充足的采光,没有太多的修饰,利用利落的线条及简单的色彩营造出空间的高级感,挑空区域清晰的空间构造,使空间更加的大气、通透、明亮富有质感和艺术性。
整个空间以白色为基础色,白净的墙面与顶面设计使空间在视觉上更加通透,搭配上绿色的软装点缀,空间透露出“静”与“净”,远离城市的的喧闹与嘈杂。
主卧沿用了客厅的色彩,床头的木纹具有清晰的质感,搭配上纯净的白色,简洁温润且富有高级感,空间透露出轻松舒适和惬意的气息。
衣帽间留白的设计,空间开阔通透,让人的心情更加的安静和放松。
孩子房也沿用了客厅的白色+木纹设计,卧室空间设计师并未将孩子房做的过于童趣,纯净的白色个人一种简洁、通透的感觉,搭配上宽敞的落地窗,让自然光和风在空间中自由流动、穿梭。
衣帽间设计师采用较为活泼灵动的色彩,同时又不脱离现代极简的风格特点,窗台上精心为小朋友设计了开放格,可以放置书本等一些学习娱乐用品。
相关案例推荐
陈阳
设计师相关作品

粤公网安备 44010602000156号