前言:
题记:总有一种颜色、一种情怀是在自己脑海里挥之不去的....
梦想中的家必定有那一抹心中的蓝色....
入住也有一段时间了、感慨颇多,亲人们在家里度过了美好的时光。
新中式 是一直以来就认定的风格,也看了许许多多其他风格的图片,唯有中式印在脑中,也可能是年纪渐长,喜欢的也与以前很大不同,想着能与三五好友在家里喝茶、聊天,生活就无比美好。
和设计师的认识也是缘于19楼,神奇的网站,也特别谢谢设计师,不厌其烦帮我挑选家具、软装,印象比较深的是设计师陪我杭州、苏州跑了好多店家,在苏州回来的高速上还发生了大型追尾事故,所幸人员没有受伤,不然真的是太太太内疚了...设计一套房子还把设计师搭上了,哈哈。所以真的特别感谢!
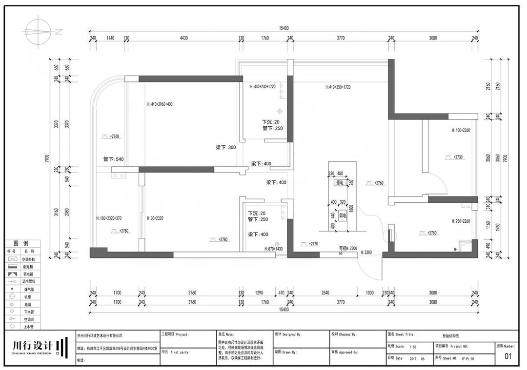
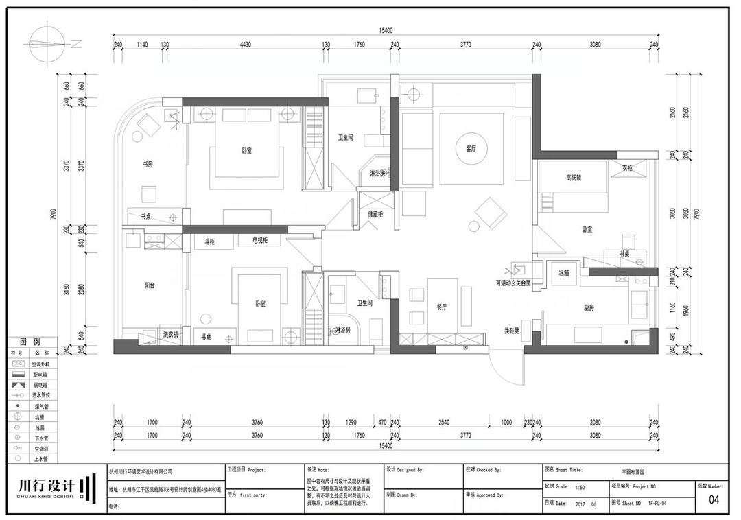
一家四口共同居住在这个房子里,所以储藏空间是我在设计中特地和设计师强调的,而且客厅有个大飘窗,之前一直想不好怎么去利用,设计师在设计的时候充分考虑了这方面,利用飘窗做成了沙发形式。在入户还贴心的做了玄关,因为我还是希望有个玄关不要直通到底。厨房也尽可能做到最大,借用了卧室的空间,冰箱的位置不用占用台面空间、在主卧的过道空间还帮我留了储藏室,杂物终于有地方堆了...主卧的阳台做了个休闲区,卧室就是我放松的空间....
客餐厅的硬装造型其实还是比较简约的,飘窗的设计让客厅空间看上去不止大了一点,邻居们后面看了也都觉得这个设计太棒了,庆幸我找了好的设计师,哈哈。
相关案例推荐

川行设计
设计师相关作品