前言:
									行香子
短短横墙,矮矮疏窗;
一方儿、小小池塘。
高低叠嶂,曲水边旁。
也有些风,有些月,有些香。
日用家常,竹几藤床,尽眼前、水色山光。
客来无酒,清话何妨。
但细烘茶,净洗盏,滚烧汤。
业主自述:
一直对于传统文化着迷,平时的工作也于刺绣有关,所以这一次家里的装修风格,我一直坚持做中式。期间找过不同的设计师沟通,但是每当我说要做中式的时候,对方拿出的案例都不是太让我满意。要不就是红木家居的传统中式装修,要么就是形式造型感大于韵味的“现代中式”,都不是我想要的风格。而我理想的中式应该是现代化的家居设备,自然朴实的家具,清雅恬淡的软装。接过多方寻觅,最终有幸遇见我家的现在的主案设计师,实现了我对于家的一切幻想和憧憬!
									
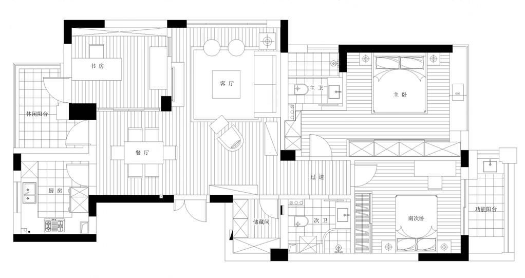
客厅是家里的中心,的风格定位于新中式
沙发背景墙纸选择了当代工笔花鸟大师周中耀的经典画作,天趣自然、充满生气,线条精微,既保留了传统工笔花鸟画恬静、典雅的特点,亦结合了现实生活的体验及时代的审美意识。
家具的款式以舒适自然为主,在原来的明式家具的造型基础上,接过改良,更适合现代人的使用习惯,但依旧保留了明式家具格调典雅、装饰得体、清新雅致的特征。
电视背景使用的是文化砖和雕花板的组合,朴素又有中式的内涵
茶几别致小景
生活器具
随意而又典雅的客厅整体空间
组合器具
主卧想要的就是宁静致远、悠然自得的心境。“尽眼前、水色山光。”
设计师用了竹纹板和原木色床、深灰色床单、咖色窗帘,简单的搭配就把中式的韵味体现了出来了。
大衣柜
飘窗外公园景色让人特别安静。
相关案例推荐
 
							川行设计
设计师相关作品
 
 
 
												
													
														
															
																 
												
													
														
															
																 
												
													
														
															
																 
												
													
														
															
																 
												
													
														
															
																 
												
													
														
															
																 
												
													
														
															
																 
												
													
														
															
																 
												
													
														
															
																 
												
													
														
															
																 
												
													
														
															
																 
												
													
														
															
																 
												
													
														
															
																 
												
													
														
															
																 
												
													
														
															
																 
												
													
														
															
																 
												
													
														
															
																 
												
													
														
															
																 
												
													
														
															
																 
												
													
														
															
																 
												
													
														
															
																 
												
													
														
															
																 
												
													
														
															
																 
												
													
														
															
																 
												
													
														
															
																 
												
													
														
															
																 
                                                     
                                                         
                                                     
                                                         
                                                     
                                                         
                                                     
                                                         
                                                     
                                                         
                                                     
											
											
										 
											 
											 
											 
											 
											 
														 
														 
														 
														 
														 
				 
                
 粤公网安备 44010602000156号
粤公网安备 44010602000156号