前言:
项目名称:双胞胎大小九家
设计公司:DAGA Architec大观建筑设计
设计团队:申江海、任晓伟、黄达、许云飞、刘宇哲、陈阳、刘昂、侯哲文、杨小玲、张怡璇、王临
施工图团队:DAGA JAZZI大观匠子施工图
设计团队:王一涵、王双平
项目类型:室内设计与改造
建筑面积:80㎡
设计时间:2018年1月
摄影师:五透
该项目为建筑师申江海和大观建筑设计DAGA ARCHITECTS在北京卫视暖暖的新家改造节目中为双胞胎大小九家设计,北京东北园胡同蜿蜒匍匐于琉璃厂古文化街区,毗邻人民大会堂,国家大剧院,大栅栏等地标建筑及核心景区。犹如京城内大多破败简陋的胡同生活一样,“大小九之家”(Twins’house)急需更好的家庭体验和生活情趣注入。
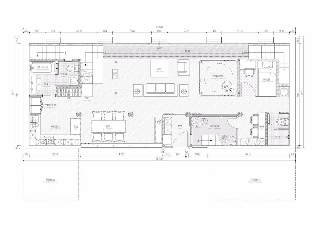
改造对各空间进行了动静划分和功能整合,夫妻,儿童和老人都有各自的工作学习和休憩娱乐区域。正房中间用客厅作为分隔和集散,两侧尽端配备独立卫浴。南侧玻璃柱廊依次排列着厨房餐厅,玄关,室外庭院和书房。袅袅炊烟和庭院信步透过玄关的窗洞相映成趣。北侧交通空间提供大小九嬉闹的跑道,跑道两端是暗藏橱柜的楼梯,通往主人卧房和儿童卧房。
加建的“大小九”卧房在屋顶开了天窗,早上伴着晨曦的微光苏醒,晚上数着点点星河入眠。
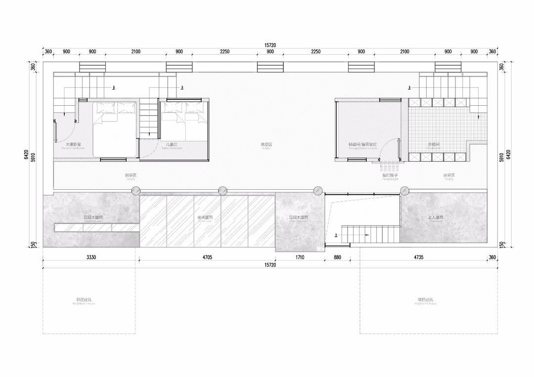
设计利用的坡屋顶屋脊高度,在客厅两侧挑空放置夹层。解放底层空间,用于儿童游乐及摄影。架空所有休憩空间,父母卧房和儿童卧房居西侧,方便看护。姥姥卧房和客房居东侧,互不干扰。图中为联系父母卧房和儿童卧房的“猫洞”及屋顶天窗
相关案例推荐
申江海
设计师相关作品

粤公网安备 44010602000156号