前言:
这是一套180㎡的四口之家住宅,屋主需要较大的活动空间,方便随时照看两个孩子。全屋要减少遮挡保证明亮不压抑,避免无窗区域的昏暗感。储物空间要多,但不能到处挡光挡视线。用"去形式化"理念为核心,摒弃繁复装饰,通过大横厅+双洄游动线,串联起亲子共读区与开放式餐厨,让阳光与笑语穿透每个角落。
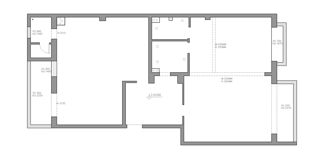
改造前:
1.门厅可被利用的空间不多,购房时中介建议是做成杂物区,但会压缩空间影响动线流畅性,所以被屋主否决了。
2.客厅与餐厅相连,既要保证各自的功能性,还要兼顾宽敞开阔,所以需要规划出一个合理的比例关系。
3.两个卫生间布局呈上下并排,位置不太合理。且入口都朝向卧室方向,整体的利用率比较低。
4.原本是一个两居室的房子,需要满足屋主一家四口人生活。需要增加卧室,解决家庭人口结构,产生的刚性矛盾。
5.因为女主人从事舞蹈行业,两个孩子中的姐姐也受家里熏陶,需要再加一个多功能房,满足日常舞蹈练习。
6.两居改成四居室,势必会形成走廊空间。需要避免错综复杂的动线结构,保证生活的便捷性。
改造后:
1.玄关拆除了部分墙体,并进行重新划分,保证储物的前提下,还能拥有良好的采光。
2.开间做成LDK一体化设计,客厅大横厅布局,还把厨房延伸出来,与餐桌岛台一体平行布置,洄游式动线保证空间的灵活性。
3.调整了卫生间位置的布局,横向并排主次卫分开,让整体利用率更高,使用更合理。
4.充分利用右侧区域窗口,让三间卧室都拥有良好的采光效果。嵌入式的满墙柜,还能保证充足收纳空间。
5.将原来过于浪费的门厅区,用一部分改成了多功能室。既解决原门厅空间的浪费,又能增加一处专属的舞蹈练习室。
6.走廊联通三间卧室,为避免过于错综复杂,所以设计成转角形式。提升便捷性的同时,还能弱化空间的冗长感。
玄关门厅打造嵌入柜体,满足了储物功能,又避免显得局促和拥堵。浅灰地砖与纯白柜面形成呼应,提升明亮与轻盈感。
玄关柜总长1.2m,靠近门的一侧中间和底部做留空处理,有藏有露丰富储物的多样性。右侧柜体用开放格做延伸,方便置物又能避免入门处的拥堵感。
无主灯设计的简约风,利用开放式布局,将浅灰L型沙发与深灰橱柜厨房流畅衔接。中性色调的环境,营造出简洁而富有生活气息的视觉层次。
客厅采用大横厅设计,开放式布局打破空间壁垒,浅灰L型沙发不靠墙,通透视野自由舒展。与后方深灰色橱柜厨房形成无界联动,延伸出豁达的纵深感。
客厅无主灯设计不压低房高,凸显现代极简气质。暖灰色石材地面以温润肌理承接光线,与浅灰弧形沙发共同延展出通透的空间流动感。
横跨5m的电视墙,以浅棕哑光柜门与黑色立柜构建出利落层次。
开放式层板与嵌入式电视形成虚实穿插,硬朗线条没有复杂的装饰,将极简的克制与功能的理性完美诠释。
悬浮吊顶的利落线条,到电视墙的几何切割。浅棕哑光柜门与黑色开放格搭配,以精准比例横向延展,构建出秩序张力。
客厅空间以浅灰与米白基调诠释简约精髓,一体化收纳柜与利落家具线条,摒弃冗余装饰,凝练出松弛的生活温度。大平层的通透视野,让人身心更加舒适。
阳台方形垭口与右侧椭圆洞口形成对比,打破方正的刻板效果。二者共同将阳台的柔光,通过纱帘转换成朦胧光雾,为室内注入通透的呼吸感。
餐厅利用餐边柜做延伸划分出西厨空间,转角处灰色电器高柜将烤箱、冰箱完整内嵌,使用方便又显整洁。
另一侧的餐边柜承载咖啡机与烤面包机,黑色轨道插座串联起小家电矩阵,构筑出理性而松弛的轻食操作区。
西厨的高柜与操作台连接,嵌入式烤箱、冰箱在纵向的收纳柜中消除体积感。横向延展的操作台,承接水槽功能,强化了烹饪动线的连贯性。
厨房用灰色橱柜搭配黑玻吊柜,形成虚实碰撞,通透的玻璃材质很好的弱化了顶柜厚重感。中间留空摆放各种小型家电,提升使用的便捷性。
温润的原木餐桌衔接冷调岩板岛台,深浅材质碰撞出视觉张力。灰调餐椅与吊灯垂落的暖光,共同围合出温馨的用餐氛围。
大横厅采用LDK一体化设计,保留空间的通透与宽敞。悬浮式平面吊顶内嵌隐藏灯带与轨道射灯,利落的照明强化现代极简气质。
餐厨区阶梯式的吊顶包裹管道结构,错落的几何体块呼应功能分区,同时消解横梁的压迫感。
原木餐桌与岩板岛台的错落拼接,日常可容纳4-6人围坐用餐,亲友聚会时更可延伸至岛台区域,形成灵活互动的社交场所。
客卫生间里的淋浴房,还增加了浴缸的功能,平时练习完舞蹈泡个澡简直不要太舒服。淋浴房与洗漱区之间用玻璃隔断做划分,可以很好的隔绝水渍飞溅。
浴室巧妙利用管道墙体结构延伸出三组壁龛,白色瓷砖包裹的壁龛与管道墙融为一体。既隐藏了管道又拓展了收纳功能,沐浴用品可分层摆放更显整洁。
主卫悬挂式洗手台,搭配木纹柜体,上方镜柜既提供了收纳,又延伸视觉宽度。
主卧以雾霾蓝床头为视觉焦点,搭配大面积的白色墙与柜,营造出清爽明亮的基底。肉桂色床品与同色窗帘软装相呼应,为空间注入温暖质感。
床品与窗帘同色系搭配,通过深浅过渡形成柔和的视觉延伸。既保持了整体色调的统一性,又借窗帘的垂直线条,为空间增添了几分轻盈。
卧室打造嵌入式转角衣柜,既满足了日常的储物需求,同时保留充足的活动空间。一门到顶的设计,减少灰尘附着不会藏污纳垢。
床脚处还摆放了一组梳妆台,白色极简台面搭配黑色靠背椅,形成视觉对比。台面圆镜与纱帘透过的柔光,交织出素雅氛围。
儿童房的整体配色,用温暖的肉桂色搭配奶白色墙漆,让整体空间柔和明亮。床头打造嵌入式开放格,并在转角区安装三角置物架,不浪费一丝一毫空间。
卧室收纳主要分为两部分,一侧打造嵌入式衣柜,柜体与墙面齐平,实现衣物的大容量隐形收纳。另一侧利用墙体厚度挖出壁龛式开放格,层板分割出多个展示兼储物空间,可用于摆放书籍、睡前小物,或作为次净衣区使用。
阳台改造的儿童学习区,靠窗大提琴练习角与白色书桌,形成动静分区,原木地板与米色墙面融成静谧底色。在琴声与书页翻动声下,为生活注入舒缓的治愈力。
这是姐姐的房间,延用了相同的主色调,床头摆放了一架钢琴,并利用阳台打造学习区。
儿童房打造整面墙的白色嵌入式衣柜,顶天立地的柜体,通过利落的线条,弱化柜子整体的厚重感,营造清爽视觉效果。
走廊除了连接各个卧室入口,还融入了杂物柜和嵌入洗烘套装的家政功能。从墙到顶的线性灯分割空间,既增强了空间层次,也让弱化了走廊的冗长感。
走廊的转角设计,可以有效缩短走廊长度,避免错综复杂的动线效果。嵌入灯带做分割,见光不见灯彰显极简风的高级感。整个空间采用纯白基调,柜体与墙体之间衔接的恰到好处,让转折处如呼吸般自然。
走廊定制三角形水吧台,柜体完美贴合墙体结构,充分发挥空间的利用率。管线机提前预埋,从卧室起夜饮水更方便。
相关案例推荐
久栖设计
设计师相关作品

粤公网安备 44010602000156号