前言: 业主是一对年轻喜欢安静的小两口,喜欢干净宽敞的生活空间,所以在功能划分和装饰设计上,我们更多的是做减法,去掉过多的装饰和繁复的色彩。
原始平面图,在空间结构上,放弃了原有餐厅的位置,加大了客厅的使用空间。
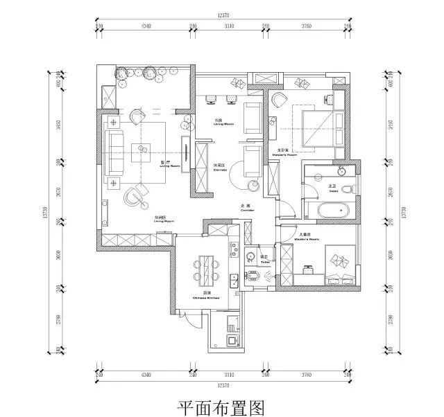
改造布置图,增加休闲区与阅读区,入户的空间从原本狭长的过道改为现在开阔的西厨,让空间有更多的变化。
地毯、装饰画上的几何图形和色彩,贴合了几何的主题,也让空间的颜色更丰富。等距的长方形石膏吊顶增加了延展性,让空间看起来更开阔。
客厅最为特别的是,取消电视的位置。业主喜欢安静热爱看书,悬挂于沙发之上的投影仪完全能满足需求。这样既可以在客厅玩体感游戏,还可以看各种影院大片。整个空间,宽敞而明亮,绿植穿插其中。
沙发背景墙是刷成淡蓝色的文化砖。沙发的直角和硬朗的茶几形成统一。地毯不规则的方块,也是几何的元素。
让客厅的功能需求更接近业主的真实生活。注重对客厅空间的设计,不仅让空间上有着更好的利用,也增加了家人之间的沟通与交流。
从淘宝千辛万苦淘来的茶几,取代了电视柜的地位,安放在沙发的对面。墙上线条的材质是PU线条,师傅返工了好几次才完成。
线条形成的几何造型与休闲区域的柜子造型相呼应。摆上三两株植物,茶几显得更有韵味。
客厅旁边休闲的小空间。摆上一个懒人沙发,慢慢的诠释出慵懒惬意的生活节奏。业主喜欢在这个懒人沙发上坐着看书或者发呆,平躺或坐,都可以。
天黑之后,暖黄的灯光拉长了影子,捧一杯热茶,发一会呆,实在是惬意。
位于客厅一侧的书柜,兼具收纳功能。柜子是订做的,样式隔断是设计师手绘出来,让木工师傅做出来的。看了下评论,好多人都喜欢这个柜子。重庆本地订做的,如果有重庆本地的朋友,我还可以推荐柜子商家给你们,嘿嘿。
柜子的正面是这样的,有可以打开门的柜子,也有做了隔断的书架,全部来自于设计师的手绘样品。没有做成清一色的蓝,让色彩更丰富。
走廊没有过多的装饰。绿植依然是整个空间最大的亮点,与墙上的挂画相互映衬,在白色的走廊里显得统一又随性。
物品集合图,在淘宝输入相应品名,即可搜索到该物品。
厨房的橱柜是清一色的深蓝色。考虑到业主与父母同住一个小区,日常吃饭的问题几乎在父母家解决,偶尔在家也只是制作一些简餐。所以家里没有餐厅,只有大大的岛台。
假日里,爱烘焙的女业主在这里创造无限美味。摆上吧椅,岛台就能当餐桌。
平推谷仓门把书房隔成了两个部分:休息区和工作区。谷仓门的颜色和客厅书柜的颜色是一样的。屋主喜欢在这里吃吃小零食或者看书。
这个位置其实更像是走廊休闲区,业主喜欢在这个小沙发看书发呆,吃点小零食,暂且把这个位置放入餐厅吧。业主父母就住附近,在功能的划分上,并没有太多想法做一个餐厅,所以取消了正常的餐厅设置,变成了休闲区。
红沙发加上几何图案的墙纸,向侧延伸的位置即是房间。
明亮的空间,配上一副色彩温暖的挂画,无疑是一个很好的选择。
物品集合图,在淘宝输入相应品名,即可搜索到该物品。
卫生间吊顶采用了防潮石膏板,美观性更强,当然这并不影响使用,整个家贯穿的主色调就是蓝,所以卫生间的吊顶也用防潮漆专门刷成了蓝色,更统一协调,更有层次感。
斑马纹浴帘隔开了洗浴和马桶的位置。窗户上方有百叶窗帘。
这个次卫跟主卫的风格类似,都主要用的是蓝白色调。
飘窗那里是承重墙没有办法打掉,有个缺口,设计师考虑做了一扇柜门,这样既美观,又增加了收纳功能。天花板是蓝色的。
业主一直强调家里以原木为主,所以没有考虑其他的方式来做背景,直接木地板上墙,是最能表现原木的方式。她说最爱那种把家填满的感觉,享受改造的过程,也总是在不断改造,想要让家变得更好,这也许才是设计生活吧。
床头柜选用比较简单的金属柜子,带收纳功能,随手放书完全没问题。
摇椅完全可以自娱自乐啊。
物品集合图,在淘宝输入相应品名,即可搜索到该物品。
门,其实是这房子里面的一大亮点。这个平推的门,有没有让你想起美国牛仔用来堆放草料的谷仓啊,电影里面的谷仓就是这种平推门。不管是什么颜色的门,尽可能的把木头的原本形态做了一些重合。
沙发对面是正面墙的储物柜,可以满足家里的收纳。
书房的两张椅子,搭配书桌,满足了业主小两口的分区玩游戏偶尔办公的需求。书房的窗帘是蓝色,椅子上也有蓝色的三角元素。
书房里的三角元素,和休息区的墙纸相呼应。沙发床方便客人留宿。
清新自然的儿童房,轻松自在,充满了童真童趣。墙上的蓝色和主卧一样,位置由天花板换成了墙面。装饰画是不规则的几何图形。
依然保持了一贯的基调,柔软的埠床,条纹的床单,明快的挂画,简单又不失童趣。
这些可爱的小物件,把北欧风格的儿童房变得更为柔软体贴。
相关案例推荐
重庆DE设计事务所
设计师相关作品

粤公网安备 44010602000156号