前言:
业主要求:满足强大的收纳功能,空间结构合理,简洁大方。
地理位置:住宅位于广州市海珠区工业大道,靠近江属于江景房,楼层位于小区的顶楼,采光通风好。
设计说明:
留住;留;停止在某一个地方,住:长期居留或短暂歇息,这是我赋予这套住宅的新名词。业主两夫妻从小在广州长大,是地道的老广州人,习惯广州生活方式,本案例小区挨近荔湾区,周围的环境都充分体现出来老广州人的生活方式,热闹的茶餐厅,随处都是粤语的交谈,周边的环境特别适宜老广州人居住,在与业主设计交谈中,业主对极简生活比较感兴趣,或许也是源于在国外生活过,设计过程中考虑了极简与实用性结合,留住不仅仅是体现环境,更多是留住了生活方式。
原始结构图,原始结构是打拆后量的尺寸,户型是比较标准的四房,靠近厨房的书房之前是封闭式的比较小,采光也不好,窗户对着厨房,油烟比较大,考虑餐厅的墙又是承重墙,整体户型比较实用,主人房阳台属于270度观景阳台。
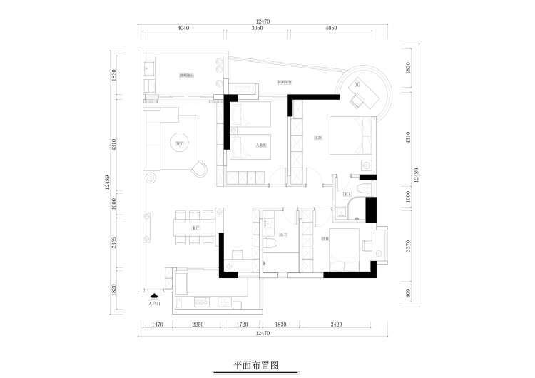
平面布置图,户型上没有做过大的调整,靠近厨房的小阳台空间给到了厨房使用,增大了厨房的空间,从书房与餐厅之前承重墙延生出来一个矮柜隔断,让空间增加高低错落感。增加了很多储物柜的设计,满足业主对储物空间的需求。
在户型结构上并没有做过大调整,靠近餐厅的书房墙打掉了一部分,做成了开放式的多功能区域,储物空间上柜子大多数做成隐藏柜,满足储物功能上尽量增加了美学主义。
简洁舒适,宁静的白色和原木营造出一个干净简洁的空间环境
相关案例推荐
吴佳
设计师相关作品

粤公网安备 44010602000156号