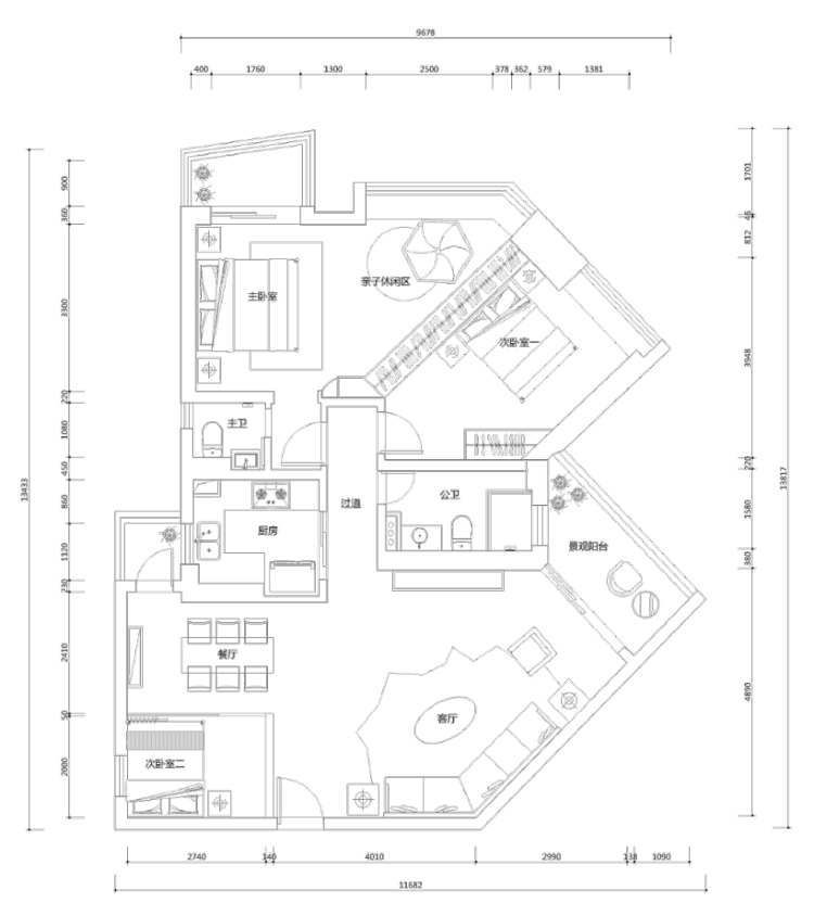
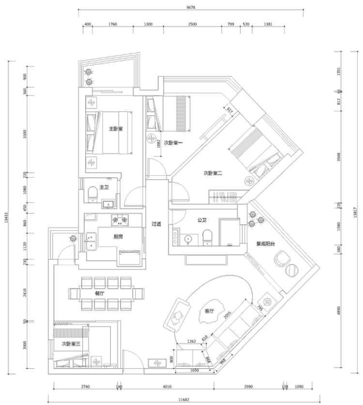
前言:
业主是一名文艺青年作家,他的生活非常简约,喜欢简洁但不平庸的设计,他觉得这样才能激发他创作的灵感源泉。
他写的故事总是引人入胜,
娓娓道来,与世无争
在这所房子里她也写进了他的人生与感情,
干净纯粹的色调、平静中的波澜,
他希望这里就是他故事的写实,
纯净,但是有温度
生活不该有任何束缚,只想留下可以品味的诗歌。
相关案例推荐
网友评论
正小妖
设计师相关作品

粤公网安备 44010602000156号