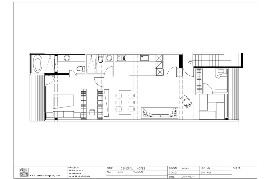
前言: 以光线为主轴穿透整个空间让结构上成一直线,主卧、起居的光线无阻碍的渲染空间。以木作牆面去串连每个空间,达到空间基调的一致性,餐厅、和室、客厅面向安排在同一轴线上,表现出小空间配置性的各种可能。以无隔间的概念将不同机能的空间整合在一地,也展现了设计师一贯的风格将重心放在活动性、自主性的规划,不必多预留空间,利用开放和连贯的机能,衍生出场域的焦点 Light is the center of design penetrating the entire space to create a linear prospect in which the light disperses without barriers throughout the main bedroom as well as other living spaces. Wooden walls connect each room and space to achieve a sense of spacial uniformity. The restaurant, living room and the tatami house are aligned to showcase designer’s creativity in the overall layout of smaller spaces. The concept of sans partition brings together spaces of different functions and displays the designer’s usual emphasis on mobility and autonomy. Spaces are not reserved or secluded, but overt and continuous, one linking another to navigate the spacial focus.
相关案例推荐
陳正晨

粤公网安备 44010602000156号