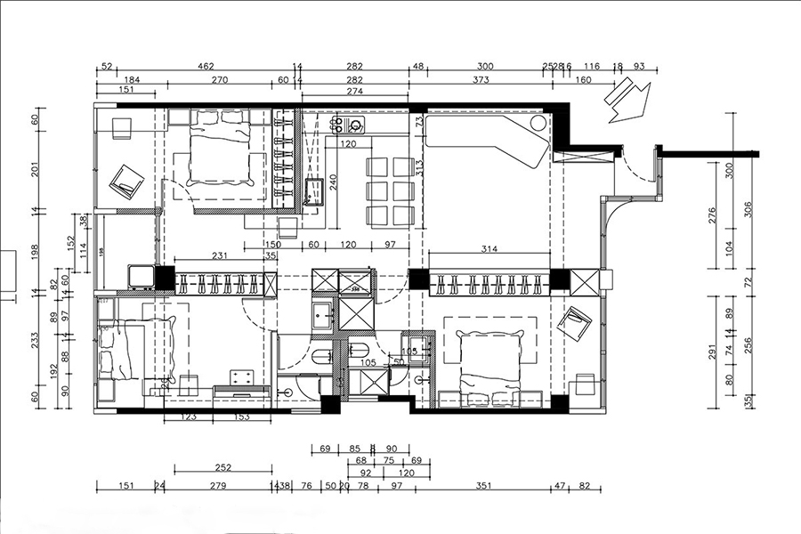
前言: 居住成員:夫妻、兩男孩; 房屋坪數:35坪; 房屋位置:台北市天母; 設計風格:休閒多元; 房屋類型:老屋翻新 ; 房屋狀況:老屋翻新 ; 圖片提供:晨室空間設計 ; 空間格局:玄關、客廳、餐廳、廚房、書房、起居室、主臥房、小孩房、衛浴 ; 主要建材:木作、玻璃、鐵件 ; 思維完整、邏輯清晰的我們,希望不只是一個設計品牌還而是豎立指標性的時尚生活方式及空間氛圍。
相关案例推荐
网友评论
陳正晨
设计师相关作品

粤公网安备 44010602000156号