前言:
									业主是三口之家。女主人是个热爱生活、善于打理的姑娘。休闲时喜爱做糕点、阅读、收集书籍;男主人喜欢打游戏and和儿子一起看电视。
									
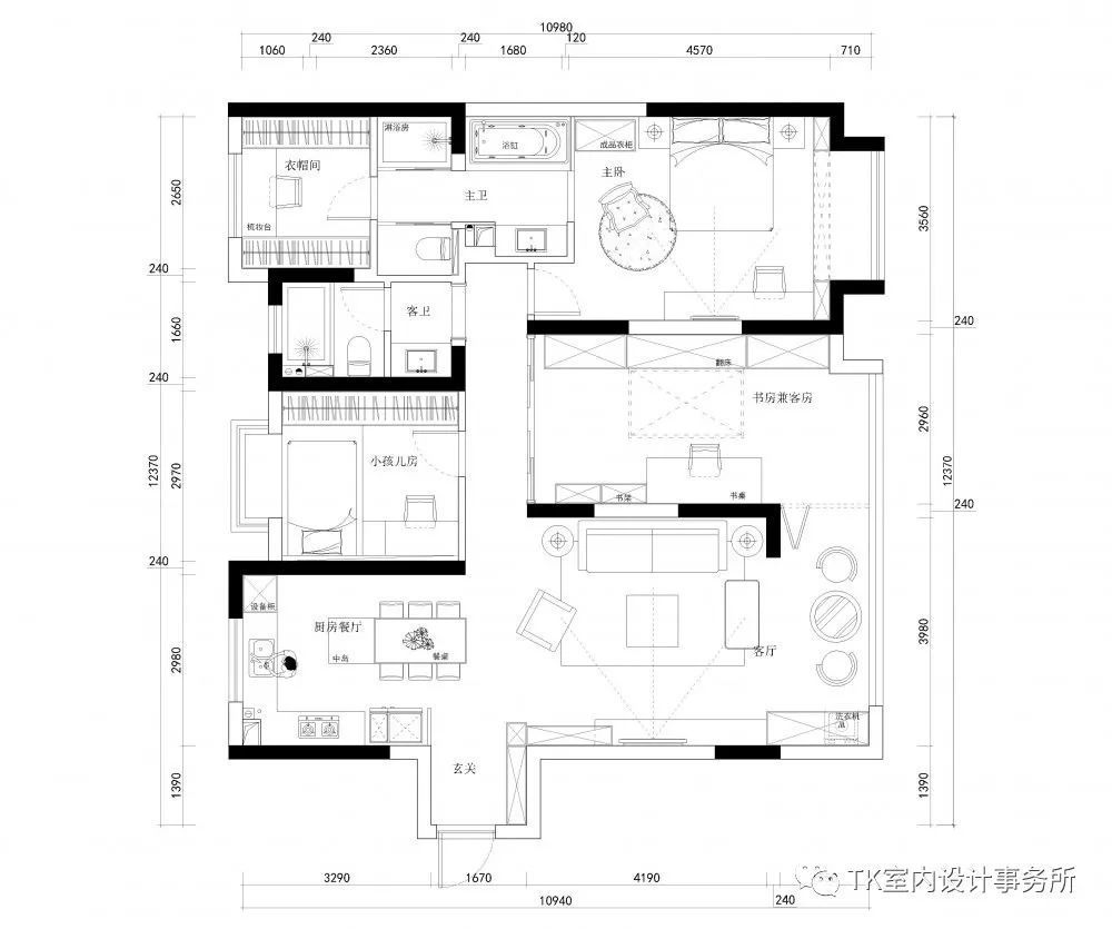
										户型图
										
											
											
										
											
											
								
							
								
									
								
							
								
									本案的重点放在了客厅和书房上,在既能满足每个空间的功能性的同时也增加了互动性。
风格上用纯净的白色、自然的木色、优雅的灰色这三种低调的色调在空间里和谐共生,营造淡雅悠然的生活气韵。
										客厅
										
											
											
								
							
								
									
								
							
								
									
								
							
								
									
								
							
								
									
								
							
								
									客厅采用大量低饱和度的灰色调,
令整体显得素雅干净,
木饰面和木地板带着质朴气息,
能让人放下身心享受生活,
体验惬意舒适的慢节奏状态。
无主灯的平顶设计,没有多余的色彩,
将客厅简约利落的特性表达到位。
										书房
										
											
											
										
											
											
										
											
											
										
											
											
								
							
								
									
								
							
								
									
								
							
								
									
								
							
						融入暖黄色和烈焰红的色彩,
增添了一抹烂漫的小情调。
闲暇时,窝在懒人椅上,
悠然自得,享受难得清闲的曼妙时光。
拉上移门和窗帘又是一个独立空间。
相关案例推荐
网友评论
						
						
						
						
                        
						
						 
							Tk原创设计
设计师相关作品
 
 
 
												
													
														
															
																 
												
													
														
															
																 
												
													
														
															
																 
												
													
														
															
																 
												
													
														
															
																 
												
													
														
															
																 
												
													
														
															
																 
												
													
														
															
																 
												
													
														
															
																 
												
													
														
															
																 
												
													
														
															
																 
												
													
														
															
																 
												
													
														
															
																 
												
													
														
															
																 
												
													
														
															
																 
												
													
														
															
																 
												
													
														
															
																 
												
													
														
															
																 
												
													
														
															
																 
												
													
														
															
																 
												
													
														
															
																 
												
													
														
															
																 
												
													
														
															
																 
												
													
														
															
																 
												
													
														
															
																 
												
													
														
															
																 
												
													
														
															
																 
												
													
														
															
																 
												
													
														
															
																 
												
													
														
															
																 
                                                     
                                                         
                                                     
                                                         
                                                     
                                                     
                                                     
                                                     
											
											
										 
											 
											 
											 
											 
											 
														 
														 
														 
														 
														 
				 
                
 粤公网安备 44010602000156号
粤公网安备 44010602000156号