前言:
珠海中信红树湾高端别墅设计——遍览世间珍贵宝石
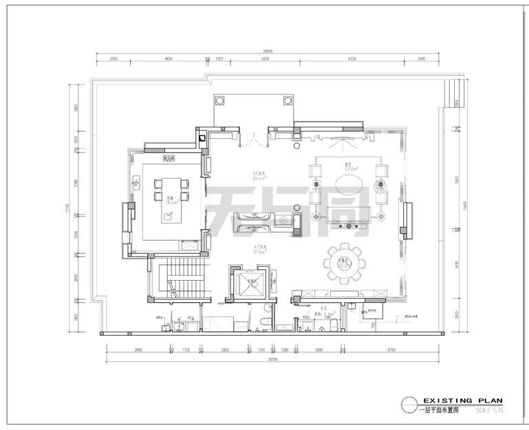
项目地点:广东·珠海
设计面积:1200㎡
设计时间:2018年
总设计师:唐锦同
参与设计师:唐锦道、黄湘銮、林文兴、刘秀、林勇、黄仲群
珠海别墅设计无与同装饰为大家带来1200㎡中信红树湾高端别墅豪宅装修设计案例,本案业主是一个幸福温馨的三口之家,夫妻俩有一个活泼可爱的女儿。设计师深挖客户的性格特点、审美偏好与生活需求,经过专业的色彩测试,以自然界各种天然宝石为题,重新定义现代都市精英阶层的艺术与优雅,以量身定制的空间设计实现客户对高品质生活的追求。
——晶莹剔透、纯粹清澈,不受尘世间的杂念而困扰,这是至纯至美的高雅。
优雅不是要传达低调,而是要抵达一个人的精华层面。法国著名思想家伏尔泰说过:“美只愉悦眼睛,而气质的优雅使人心灵入迷”。优雅是良好的修养,是良好的生活品德和文化修养的沉淀,也是主人家对美好生活追求的态度。
6米高的中空客厅,予人高端大气的第一印象,极具视觉冲击力。低调的现代轻奢,金属线条加深空间的层次感。一整面不规则纹路的天然大理石电视背景墙设计,拉伸了空间的纵深感。
整个空间以白色为基调,在色彩材质形态上都经过精心搭配,增添空间时尚质感,陈设的艺术品搭配定制奢侈家具品牌,感受艺术与时尚元素带来的超强感官体验,诠释端庄优雅的生活美学。
浪漫舒适的餐厅空间环境,天然纹理的大理石拼花设计与时尚的水晶吊灯完美结合,“爱马仕橙”是极致的时尚轻奢代表色,适当的金色点缀是客餐厅空间的点睛之笔。如流光般璀璨无比,让水晶散发出迷人的魅力。
二楼卧室设计灵感源于大自然的琥珀,把世间所有的珍宝变成一种美的存在。空间是精心定制的私人浪漫,在材质与色彩上,透出设计师对细节的专注,以高贵细腻的软包与金属元素来增加时尚感,让整个空间宁静舒适更具魅力。
大理石瓷砖铺满整个主卫空间,淋浴间干湿分离整体干净整洁,加上金属线条,增添了卫生间的时尚大气精致感。独立式的浴缸尊享优质生活,浪漫玫瑰浴享受美好时光。
琥珀是大自然的馈赠,历经千万年的沉淀与孕育,才得以见世,饱含时光与故事的沉稳温润。别墅二层主要为主人家父母的生活空间,以琥珀为题,展现长辈们独有的风度与智慧。
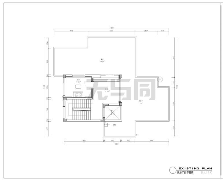
祖母绿象征着仁慈、信心、善良、永恒、幸运和幸福,设计师将祖母绿元素融入别墅三层的设计灵感中,这是一种美好的祝愿,一种高雅的空间格调,更是一种主人家美好气质的象征。
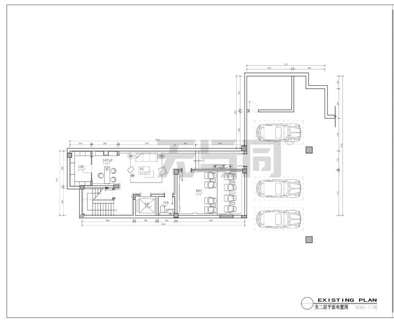
负一层客房简约、现代、温馨。色温4000K的灯光,搭配一幅几何艺术画与少量金属材质的运用,让宾客亦能享用轻松舒适的睡眠空间。
二楼卧室设计灵感源于大自然的琥珀,把世间所有的珍宝变成一种美的存在。空间是精心定制的私人浪漫,在材质与色彩上,透出设计师对细节的专注,以高贵细腻的软包与金属元素来增加时尚感,让整个空间宁静舒适更具魅力。
胸藏文墨虚若谷,腹有诗书气自华。与书常伴,如一杯清茶,芳香沁人。在良好的书房环境里藏书万卷,饱读群书,找到内在的升华与外在的气度。
"好雨知时节,当春乃发生。随风潜入夜,润物细无声。"——这是耳濡目染的熏陶,潜移默化的艺术气韵,在悄无声息之间浸润我们的生活和心灵,产生属于自己的独有文化气质。
相关案例推荐
唐锦同
设计师相关作品

粤公网安备 44010602000156号