前言:
项目名称:有一种时髦风格叫做”性冷淡“比高级灰更有范
项目类型:私宅
项目地址:深圳/颐安都会中央
项目面积:89㎡
项目风格:性冷淡风
灯红酒绿,五光十色,都市生活总是充满了纷扰喧嚣
我和你,还有那只猫,是这红尘里的依靠
烤箱里的面包香,厨房里的烟火气
黑咖飘出的浓香,白茶升腾的雾气
爱猫呢喃的撒娇,花草摇曳的身姿
两个人,一只猫,微风拂过,举杯,浅笑,生活的美不过如此,简单美好。。。。
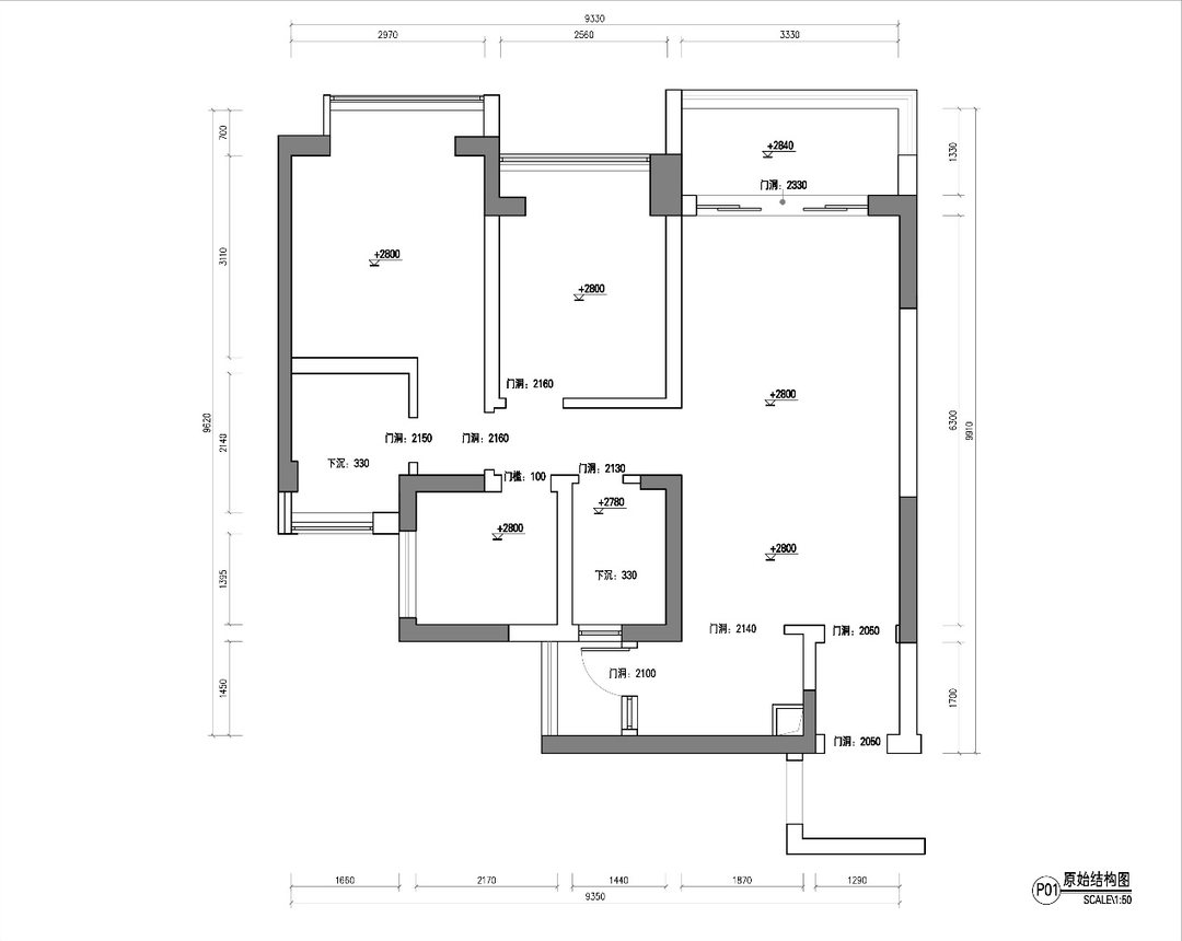
二人居住的小世界,原本户型进门玄关过于浪费,进门局促,使得餐厅厨房空间不大,考虑到人口不多,完全可以把空间做的更加宽敞明亮。
业主年轻时尚,有自己特立独行的想法。所以并没有随大流,设计师结合业主的个性与需求,打造“性冷淡”极简住宅。
可自由调节的阳台门,呈现空间不同的美感和实用性。
敞开的空间,让客厅区域和阳台没有分隔,享受阳光和温暖。
无需过多的颜色来协调,仅用金属色调稍稍点缀,便让整个空间的优雅上升一个高度。
精心挑选的小物件,与花卉或图书摆放在一起,轻松营造出屋内精致的一角。
每一件精致的装饰品,无不透露着优雅高贵的格调。
以黑白灰的极简与纯粹,赋予一种直戳心灵的美感。家的基调是黑白灰色系,入目可见纯粹又极致,简单利落的格局,没有繁复的吊顶墙面,深浅有度,更富有层次感。
吊一盏暖暖的灯,独享阅读时光。渲染美不一定非要彩色来捧场,单纯宁静的色彩让空间独享一份安详。
整体以经典的黑白灰三色为主,利用颜色的明暗配比来营造丰富的层次。金色皮质餐椅和吊灯为这个冰冷的灰盒子注入一丝温度。
白色艺术漆因为灯光的照射,赋予空间极具诱惑的光影魅力。不同材质的巧妙搭配,在平衡之中处处彰显创意和精彩的细节。
两人两椅,灯下的你是幸福的样子。
搭配金属质感的椅子,让空间跳跃出不一样的低调奢华。
冰箱从厨房延伸出来,把厨房的杂物半隐藏在里面,而洗菜台和餐桌设置在同个错落的空间上,既能让彼此处在一起活动,也合理的让空间更方便实用。
每一处细节都点缀出最美的样子。
用化繁为简的智慧给生活做减法,才能让紧张的灵魂逃离喧嚣,安放于一个充满灵性的简约之家。
洗漱空间,黑白交错,干练纯粹。最简单的套路就是全身用一个颜色,黑色或白色
特别的圆形镜子,还有不常见的黑色小五金件。
优雅的白,打造理性而平静的卫浴空间。
黑框玻璃造就的开放空间,打造轻奢舒适的居家氛围。
黑白灰驼...这些颜色是这类搭配的主力军,与色彩明媚的各种印花划出一道分割线。给人一种“我不太想理人”的样子。
简单而不失质感的卧室,冷峻又饱含温度,不经意的细节突显气质。
这种设计的好感,就像看过几款高饱和度的经典中式和欧式设计后,再看就会瞬间感觉通体舒畅。
不同的灰度,用铜色吊灯去碰撞,灵动与魅力精彩演绎。
相关案例推荐
永安设计
设计师相关作品

粤公网安备 44010602000156号