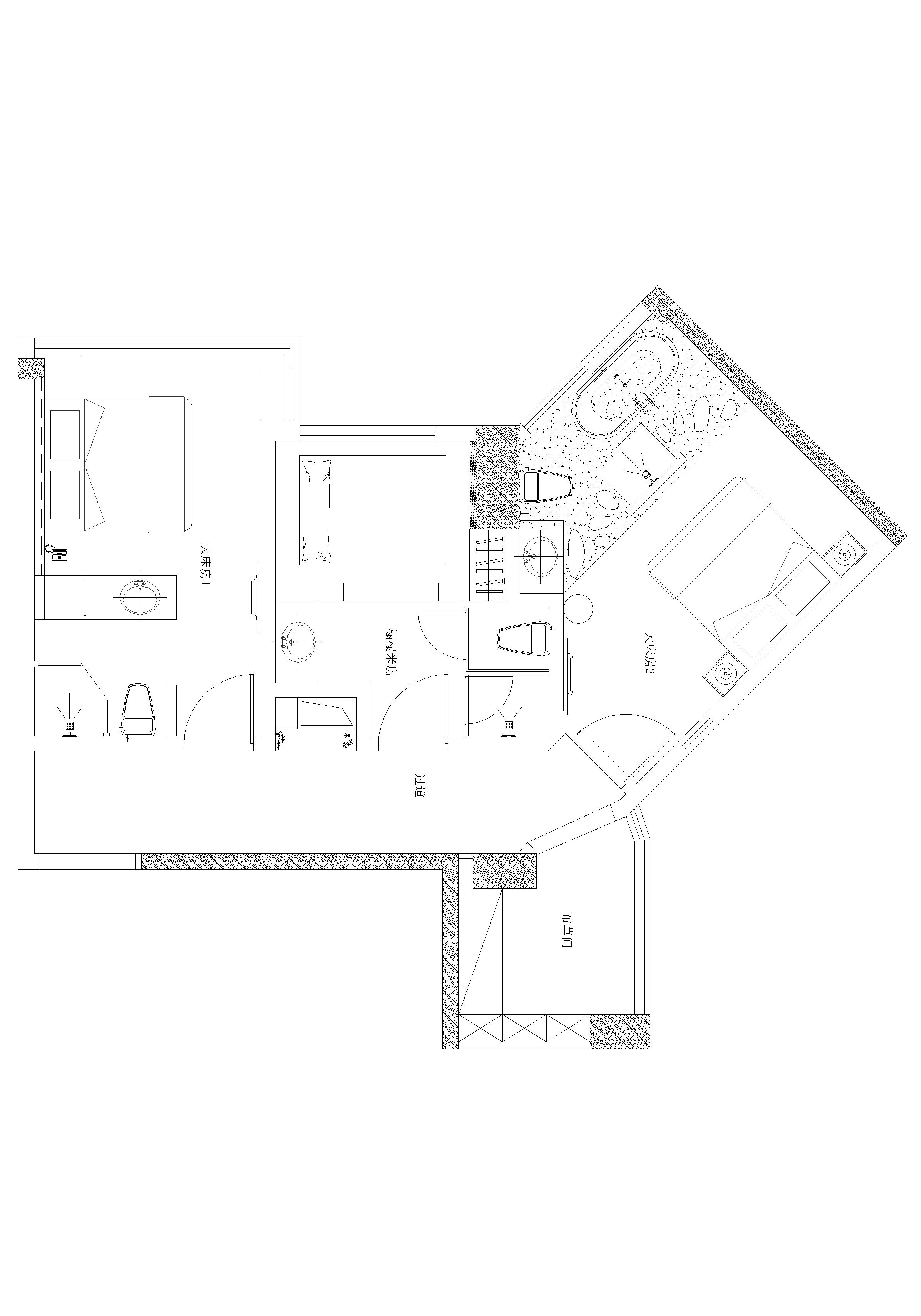
前言: 户型是一个60平方两室改的三个房间,每个房间都配有淋浴区卫生间和盥洗台,运用了黑白灰来区分每个房间的特点,在软装上用了金色来点缀,让黑白灰的主题在金色元素上显得高级且有层次感。(本案列业主之前请过一个设计师,因不满意硬装设计和软装设计由本人接手重新设计,在结构不动的情况下,改了硬装的所有材料和材质及软装的配色及饰品,该案例由本人亲自调整改动,已阐述明确本案列所有权归吴红拥有。)
卧室
黑色套房用了黑色的木纹砖铺贴,床后造型用了石膏板拉缝即有了背景又节约空间,黑色的石材盥洗台高级且简洁,空间搭配金色饰品让空间更加生动
白色套房里 用了榻榻米显得房间有情调,盥洗台淋浴卫生间依然配套齐全
灰色这一套,用了U型木地板上墙上顶 让床有了造型感,不仅高级而且也让空间大气,加上灯带的烘托让空间温暖起来,开放式浴缸加了玻璃隔断,即满足了客户入住需求又防止了水四处溅的问题
相关案例推荐
网友评论
吴宏
设计师相关作品

粤公网安备 44010602000156号