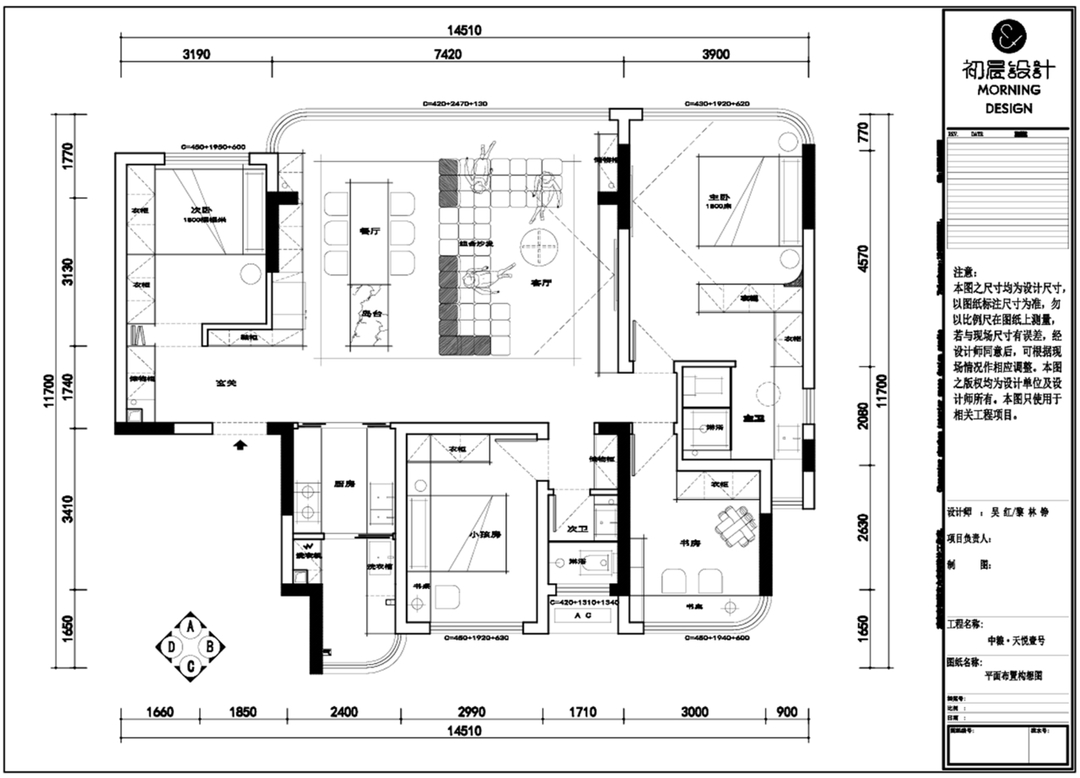
前言: 本案例是一套现代简约的风格,主要呈现简洁流畅的空间,整体家居色彩采用了米色,杏色,白色局部采用了金色,让整体空间更精致。整个色调让空间开阔舒适且时尚,让居家氛围更有松弛感,如春日的微风,缓缓且暖暖。客厅的过道用木饰面让整个空间层次感更丰富的同时也柔和了客厅的温馨感。这样的空间摒弃了繁杂,以纯粹的色调和质感构建简约的框架,让空间开阔通透,契合现代简约追求的少即是多。客厅吊顶点缀了金属不锈钢,让客厅质感更强,电视墙的地台和餐区西厨的台面及岛台用了岩板,让整个空间层次分明的同时又让空间质感得以升华。营造了治愈氛围也消除了生活的疲惫感。
其他
相关案例推荐
网友评论
吴宏
设计师相关作品

粤公网安备 44010602000156号