前言: 本案是一个地下室空间,房高5.5米,可以搭建为两层。房主是80后夫妻,从事时尚行业。原本的一楼为精装交付的三室一厅一厨两位,房主希望在地下室打造成一个休闲娱乐为主的空间,同时希望有较多的储物功能用来弥补一楼的储物。男主爱好运动,希望有一个运动区域。整个房间希望是让人放松的,温馨的。
➢原始户型:
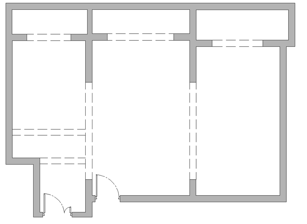
本案是一个使用面积76㎡的刚需地下室空间,层高5.5米,可以搭建为两层使用。原有的一楼空间为精装交付,保持不动。地下室用于娱乐和留宿。
➢屋主需求:
● 需要个成两层来使用。
● 需要一个大衣帽间。
● 需要一个开放的活动空间。
● 需要一个健身区。
● 需要一个单独的阅读区域
● 重新设定楼梯位置,让楼梯成为空间亮点。
● 每层个保留一个卫生间。
● 需要一个客卧。
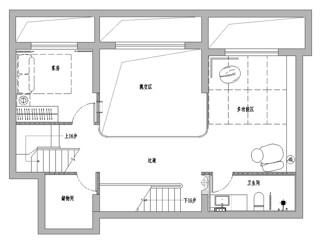
B2平面布置图
➢改造亮点:
【开放】
B2作为整体公共区,保留原本开放的视野
● B2至B1的楼梯,设计整体的地台,延伸空间强化空间视野。
● 健身区设计整面的镜子,进一步延伸空间视觉
● 结合酒柜做出玄关,进而形成半开放的衣帽空间
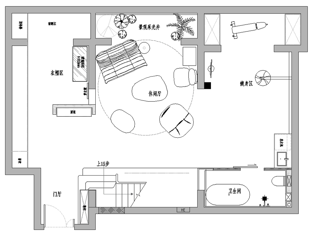
B1平面布置图
➢改造亮点:
● B1至1F的楼梯,设计在零碳一个区域,顺势形成一个储物间。
● 多功能空间满足平时阅读,又可以形成一个单独的卧室
健身区的整面镜子,让空间感进一步延伸,顶面的杜邦纸灯箱,让空间光线均匀且柔和
卫生间为暗卫,幽闭感较重。为了让委托人拥有较好的泡浴感受,我们在卫生间的一角,将墙体替换为艺术玻璃,使得光线得以相互呼应
艺术玻璃让卫生间内部的绿植,呈现一种雾化的艺术质感,使得这一角落也成为客厅视觉内的亮点
相关案例推荐
设计师于旭东

粤公网安备 44010602000156号