前言: 这套房子位于海淀是一套125㎡的跃层,目前使用者是一对夫妻和一位老人,但还有着未来迎接宝宝的打算。所以整体的格局规划上需要考虑到,对于材料的选择,环保要在第一位。未来有孩子后,各类物品应该会比较多,所以对收纳要求比较大,整体功能与装饰要以实用性为主。
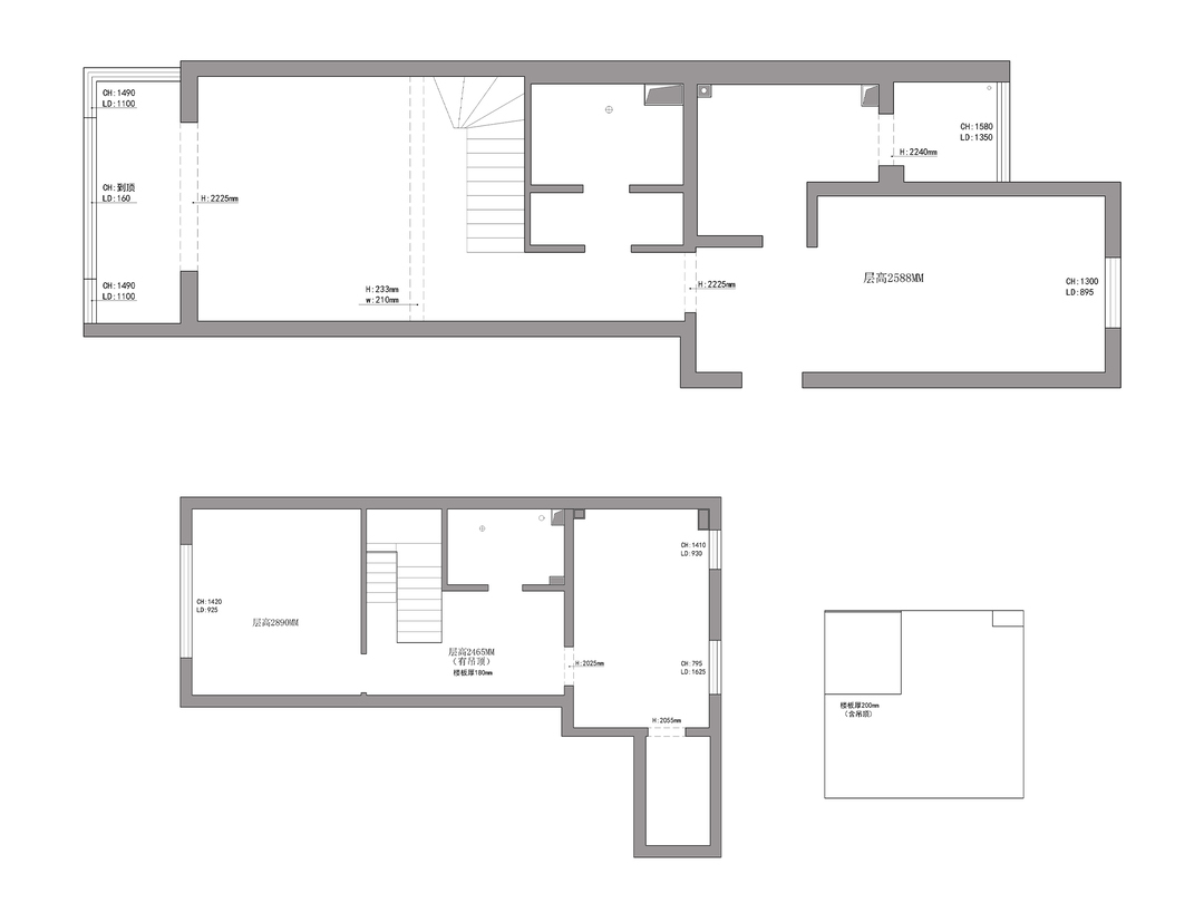
改造前:
1.户型整体比较狭长,且两侧窗口相距较远,导致光线延伸收到影响。
2.楼梯台阶较高整体坡度略陡,老人上下楼不方便,未来孩子使用时也有隐患。
3.一层餐厅空间较大,且没有起居室,需要一个空间提供给老人或住家阿姨使用。
4.卫生间相对闭塞,家中人口较多,为保证充足的利用率,需要满足干湿分离。
5.未来孩子和老人居住后,生活物品会日益增多,需要充足的收纳空间,解决物品的存放问题。
改造后:
1.利用全屋无主灯设计,进行合理布光,解决空间采光不足的缺点。
2.重铸楼梯结构,合理规划每节台阶高度,延长楼梯长度,让坡度更缓和。
3.将餐厅一分为二,增加一个起居室,并用半墙+玻璃隔断与餐厅做划分,保证采光效果。
4.一楼卫生间进行了干湿分离,并融入了家政区,保证功能性。二楼卫生间采用三分离设计,同时满足梳妆台的功能,让利用率更高。
5.一楼用储物式沙发墙满足收纳,卧室选用地台床,保证收纳空间。二楼利用走廊定制一整排半墙柜,再加上独立的储物间,一家人的物品存放需求就都能满足了。
玄关柜主要以悬挂式收纳,下方预留用两排置物架,存放当季户外鞋,还能充当很换鞋凳的功能。可抽拉的折叠镜子,不占用过多空间,又能满足日常穿搭。
门厅收纳分为两个部分,左侧是存放区右侧是日常使用区。左侧的无把手储物柜,满足换季鞋的存放。预留的开放区,还可以存放随手物品。
无主灯设计,搭配去茶几化布局,给予空间十足的开阔性与通透感。原木色地板进行通铺,增强延展性,营造出清爽温和的居住氛围。
客厅和阳台互通,让光线可以照射到更大的空间范围,提升采光和亮度。垭口一侧做弧形,让空间更显柔和。
沙发不靠墙,背后定制整面多功能储物柜。总长2.8m的收纳空间,轻松搞定日常的杂物存放需求。储物墙分为收纳柜+展示架,并用原木+黑色进行区分,有效提升空间层次。
跃层是两层高度一致的住宅,可以利用上下层空间实现动静分离。留出一侧开阔的动线,搭配线性灯,显得宽敞又大气。
相比原楼梯在横向增加一段距离,很好的缓解楼梯坡度较陡的问题。沙发墙柜与楼梯衔接在一起,可以形成阻挡,提升老人上下楼的安全性。
厨房入口选用超白玻璃门,1.2cm极窄边框更加精致。上轨道设计,能有效避免轨道囤积赃物,产生卫生死角。
厨房采用L型布局,并在入口处预留空间嵌入冰箱。外侧定制整高餐边柜,中间预留开放格并用隔板分层,有效提升利用率。
长条形的厨房空间收纳由底柜+吊柜组成,下方底柜操作台留出入口空间,并将冰箱嵌入。上方吊柜直接做满,让空间无死角。吊柜+地柜长度各有4.5m,保证收纳的充足,
厨房与阳台打通后,将灶台移至内侧,进行中西厨分离。一体化的布局,也能延伸出更多的操作台和收纳空间。
在厨房门口处布置餐厅,1.5m的卡座+1.4m的实木餐桌,刚好满足一家人的用餐需求。
将原餐厅空间一分为二,用玻璃隔断+长虹玻璃门作为划分。保证空间独立的同时,还不会影响采光效果。
餐厅区安装了半墙高的原木墙板,让依靠的墙壁更耐脏。内侧用卡座替代餐椅,既可以节省空间,又能提升上座率。
一楼卫生间将洗漱区外移,实现干湿分离。对面是一组嵌入式杂物柜,下方镂空可以放置扫地机。
一楼卫生间叠放的洗烘套装,既可以减少空间的占用,又能省区脏衣篓的功能。
二楼的洗漱区位于走廊旁,复古的石纹砖地面,耐脏易打理。与走廊木地板的衔接处安装相同色调的金属条收口,丝毫不显突兀。
原木色的洗手柜+镜柜,搭配浅色的柔光砖,显得恰到好处。镜柜左侧预留出开放格,方便一些常用护肤品存放。
二楼卫生间采用三分离布局,独立的马桶间选用带有隐藏水箱的壁挂马桶,侧面还增加了一组80cm的储物柜,悬浮式设计方便清洁打扫。
主卧选用原木色地板,搭配樱桃木床,塑造出松弛舒适家居氛围。阳光洒落进屋内,光斑映射到床上,显得温馨又自然。
卧室空间不大,居中摆放了一张1.8m的双人床。内侧预留过道减少局促感,还能摆放床头柜。
床头外侧选用组合式的梳妆台+床头柜,叠放的方式可以自由调节距离,预留给梳妆台的空间就变得恰到好处。
床尾定制了一整面嵌入式衣柜,总长3.4m提供海量的储存空间。衣柜上下错落的布局规划,也更符合屋主的收纳习惯。
二楼次卧目前作为储物间,未来可以重新布局作为儿童房使用。总长4.5m的半墙薄柜,靠墙围绕整个房间,既不会显得拥挤,又能扩容收纳。
左侧矮柜留出部分开敞的活动区,方便后期灵活规划。还定制了嵌入式储物柜,未来可以作为儿童房衣柜使用。
二楼的长条形走廊,沿墙体定制一组4m长的半墙柜。墙上还安装了管线机,让矮柜也可以作为水吧台使用。
走廊空间没有作为单纯动线使用,左侧矮柜提供了不俗的收纳。无主灯吊顶由磁吸灯提供照明,可以根据需要配备灯具,让照明更加舒适。
一楼卫生间旁定制一组通顶的玻璃展柜,内部配备线性灯光。藏品可以高亮展示,大大提升了装饰性和高级感。
楼梯每节台阶都铺设木板,并向外延伸内嵌灯带,营造出见光不见灯的高级效果。玻璃围栏+原木扶手的组合,营造出悬浮的视觉感。
楼梯下方空间也没有浪费,利用下方转角空间打造储物间,平时家中杂物可以存放其中,整洁又干净。
转角楼梯在踏板底部嵌入灯带,照亮路的同时,又不会显得刺眼。转角处用几何拼接组合,相比平台转角,能延缓坡度让过渡更平稳。
一楼借用原本的餐厅区,分出一部分空间,打造多功能房,可以作为老人和未来住家阿姨居住的房间。
地台床+衣柜一体式设计,充分发挥空间利用率,让收纳能力得到大大提升。顶部做局部吊顶形成高低差,增强了层次感还能隐藏空调管道与风口。
隔断墙与地台床之间,嵌入一张1.6m的书桌。纯白色的基调,让全屋更加的明亮整洁。
相关案例推荐
久栖设计
设计师相关作品

粤公网安备 44010602000156号