前言:
项目介绍:
该项目住宅使用面积约100平方,屋主是一位独居的年轻男士。他从事负责游戏开发方面的工作,日常十分忙碌,周末假期居家加班也是常态。因此,他对居住品质有着很高的要求。期望家是一个自然美好,能够让他完全放松的地方。
设计理念:
房屋位于三楼,周边窗景被郁郁葱葱的绿植包围,这也是促成屋主买下这套公寓的契机。因此,在设计时我们运用大面积的天然柚木与窗外的绿意进行碰撞,以经久耐用的材质和去风格化的装饰,为他打造一处疗愈身心的自然系居所。毕竟忙碌不会是生活的永恒状态,家的本质永远是能让灵魂卸下行囊的温柔归处。
改造前房屋的问题:
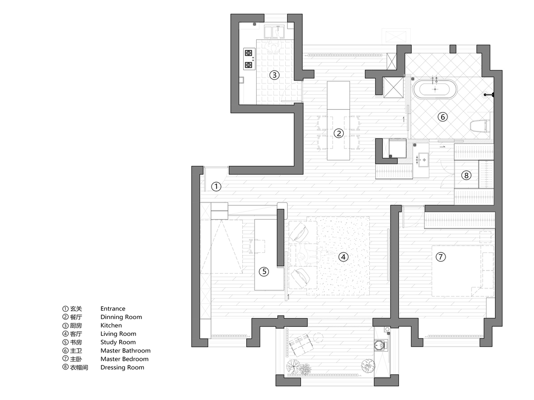
公寓本身是传统小三房的格局。前屋主是一对夫妻与他们的女儿和一对老人。多间房的封闭墙体使得空间显得局促狭小;
入户玄关昏暗且进深悠长。同样的,卫生间的布局缺乏自然通风采光,又因为进深长的关系,无论视线或者动线上,都不太友好。
空间设计思路:
1.结合业主的居住需求(独居,家人难得来居住),我们将原始的3房改为1.5房(书房书柜内嵌了一张折叠墨菲床);
2.将靠近玄关的卧室改为半开放的书房,与玄关相邻的墙面拆除后用一组天地立柱支撑的组合置物架取代;与客厅相邻的墙门用一扇1.8m的大移门实现功能的切换;这两处的设计为书房带来开放感与透气性;
3. 将小卧室拆除并入卫生间,打造出宽敞的二分离卫浴室。围绕卫生间周围布置衣帽间和洗衣区的功能,随着两扇移门的开启可以在空间中打造出一条洄游动线。
将房间原始墙体拆除,取而代之的是一组顶天地支撑的组合置物架,置物架的一侧连接着悬挑的换鞋凳和挂衣区。通过这组置物架实现了书房和玄关之间的隔而不断,给玄关带来采光,给书房带来开放感。
为了让书房更具通透感,并且与客厅更好的融合,我们用1.8m宽的大扇柚木移门作为书房与客厅之间的隔断。移门日常开启时,从视觉上扩大空间感。
虽然业主日常因为工作忙碌很少下厨,但他对厨房空间依然有很高的要求。大L型的不锈钢操作台面非常宽敞实用,柚木色的橱柜搭配浅绿色的手工小方砖,打造出一个赏心悦目的自然系厨房空间。
餐厅的窗户正对树冠的高度,坐拥满眼的绿意,透过窗户能感受到一年四季的自然变换,这份流动的美学是比任何室内的装饰都更鲜活也更奢侈的存在。
青绿色马赛克搭配浅色蓝水晶,卫生间给人复古又清爽的感受。无法拆除的飘窗台索性通铺上青绿色马赛克,摆放上绿植,搭配上灯具和香格里拉帘,让浴缸区变得更加松弛与治愈。
带着花卉图案的绒面壁纸搭配柚木实木背景,为卧室增添了复古的华丽感,大尺度落地窗将窗外的绿意 “框” 入室内,为空间注入疗愈力,打造出一个既具有复古艺术底蕴,又能与自然共生、让人身心舒展的休憩空间。
相关案例推荐
Till Studio耕造设计工作室
设计师相关作品
编辑精选

粤公网安备 44010602000156号