前言:
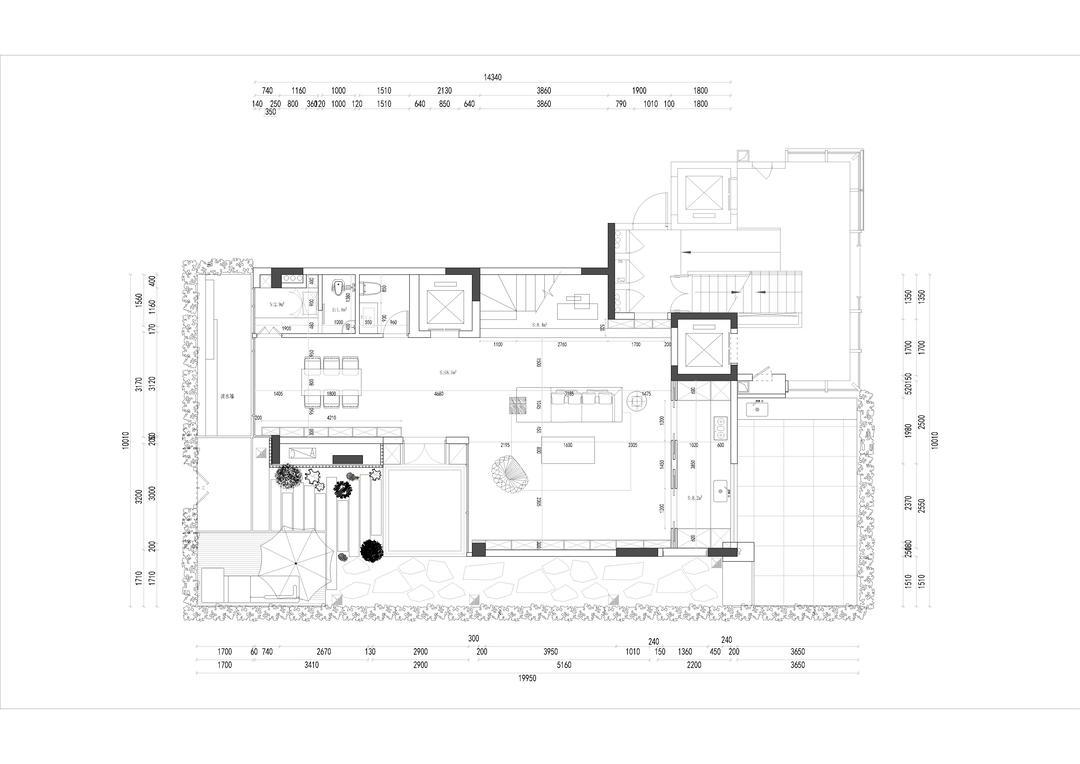
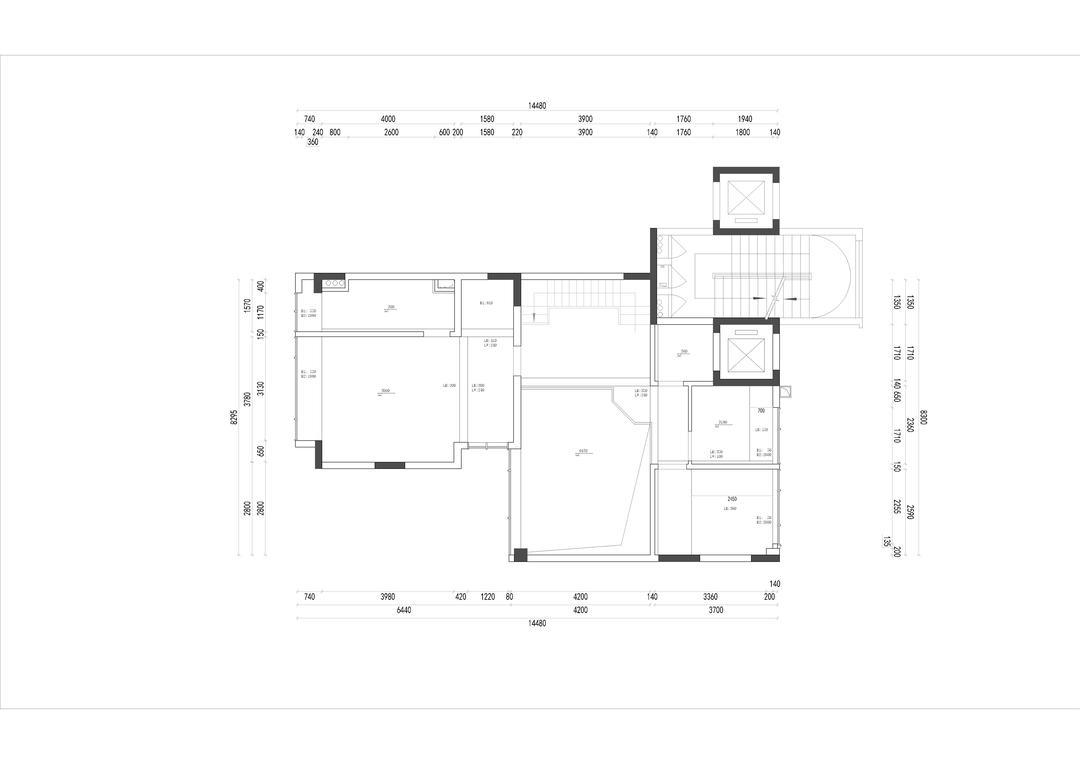
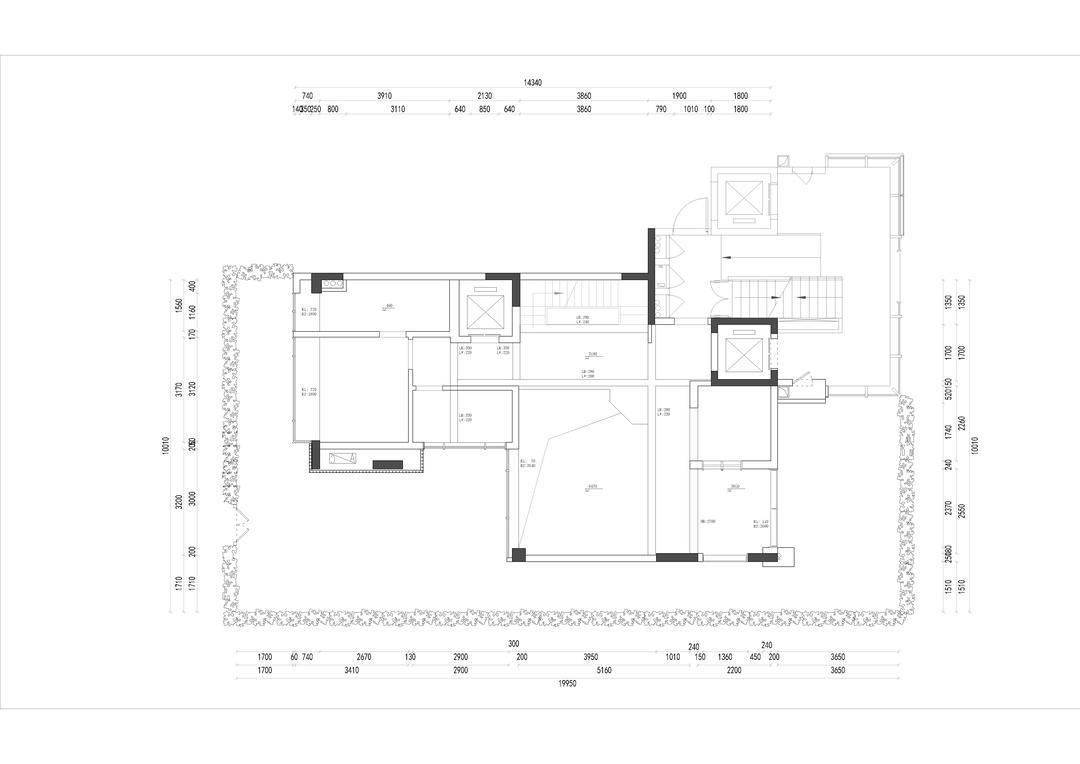
本作品为复式挑空结构的住宅设计,以“现代轻奢”与“法式优雅”的双重美学为核心,通过空间重构与风格融合,打造出既开阔大气又精致舒适的居住体验。业主希望公共区域最大化,以拓展视野并增强互动性,同时私密空间需兼顾功能与艺术感。通过拆除一层原有隔墙,实现客、餐、厨一体化布局,释放公区潜能;二层利用挑空搭建新增卧室并优化主卧衣帽间,实现空间效率与生活品质的双重提升。
一、设计亮点
1. 公区:现代轻奢的流动性与仪式感
- 开放式布局:拆除一层全部隔墙,将客餐厅与厨房整合为通透的整体,通过挑空结构与大面积落地窗引入自然光,强化空间纵深感与视觉张力。
- 材质与色调:以岩板、金属、玻璃等现代材质为基底,搭配象牙白、灰咖与香槟金等低饱和色调,局部点缀艺术灯具,营造轻奢质感。
2. 卧室:法式浪漫与实用主义的平衡
- 主卧套房:二层利用挑空区域扩建,新增独立衣帽间与梳妆区,采用法式雕花线条、拱形门洞与柔和的奶油色系,弱化现代结构的冷硬感。
本设计以“空间解放”与“美学共生”为内核,既回应了业主对开阔生活的向往,亦在细节中注入设计温度,诠释了当代住宅的多元可能性。
不仅是空间物理形态的重构,更是一场关于“当代生活方式”的探索——公区的开放张扬与私区的内敛精致,恰如现代人对外社交与自我疗愈的双重需求。通过精准的尺度把控、材质碰撞及科技赋能,最终实现“1+1>2”的复合价值,为复式住宅提供兼具前瞻性与落地性的范本。
相关案例推荐
刘聪仙
设计师相关作品

粤公网安备 44010602000156号