前言:
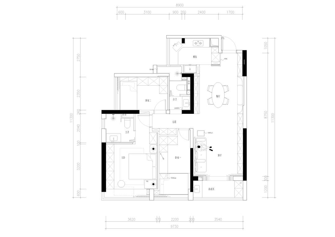
本项目为90平方米的私宅空间,以“带点中古的法式”为风格内核,在有限面积内通过精巧布局与美学升华,打造出一个兼具复古情调与现代功能的理想居所。
设计首先着眼于空间重构。将生活阳台一分为二,分别融入厨房与公卫,显著提升了这两个核心功能区的实用效率与舒适度。对于两间面积有限的次卧,采用榻榻米定制设计,将收纳、睡眠与活动功能整合于一体,实现对每一寸空间的极致利用。
客厅作为家庭核心区,我们打造了整面墙的一体化综合柜体,巧妙融合了鞋柜、餐厅背景与电视柜功能。此举不仅提供了强大的收纳能力,更以简洁连贯的体块塑造了空间的整体感,避免了小户型的琐碎与拥挤。面对紧凑的餐厅区域,我们以一道优雅的弧形背景墙破题,其柔和的曲线不仅巧妙地让出了视觉与动线空间,更为用餐区注入了一抹浪漫的法式情致。
在氛围营造上,灯光成为设计的点睛之笔。客厅采用35mm超小孔径射灯进行点阵布局,犹如在天花之上编织出一片璀璨星空,营造出静谧而梦幻的居家情境。过道则别出心裁地采用弧形吊顶设计,一方面提升了空间的视觉层高,另一方面与隐藏式“天际线灯”完美结合,光线经由弧面均匀洗墙,形成柔和而富有层次的光晕效果,极大地增强了空间的艺术感染力。
整体设计在法式的浪漫基调中,融入中古风格的沉稳与时光感,通过微水泥、弧形元素、胡桃木色等材质与语汇,最终达成一种温暖、精致且充满叙事感的居住体验,于方寸之间,演绎出无限的生活意趣。
相关案例推荐
刘聪仙
设计师相关作品

粤公网安备 44010602000156号