前言:
色彩的克制,结合东方的细腻知觉,以简洁的现代底色围合丰沛的情感,室内烙印着时代的审美潮流与居者自身的个性化偏好,瞰见东方雅韵,慢启当代生活的意境。
设计以永恒优雅、人文艺术为核心传递并共同完成这个充满现代感的东方人居美学空间。当东方意境的“雅 · 禅”在沉浸氛围中契合无间,一次超凡的居住体验与雅致品格之旅开启帷幕。
原始户型图
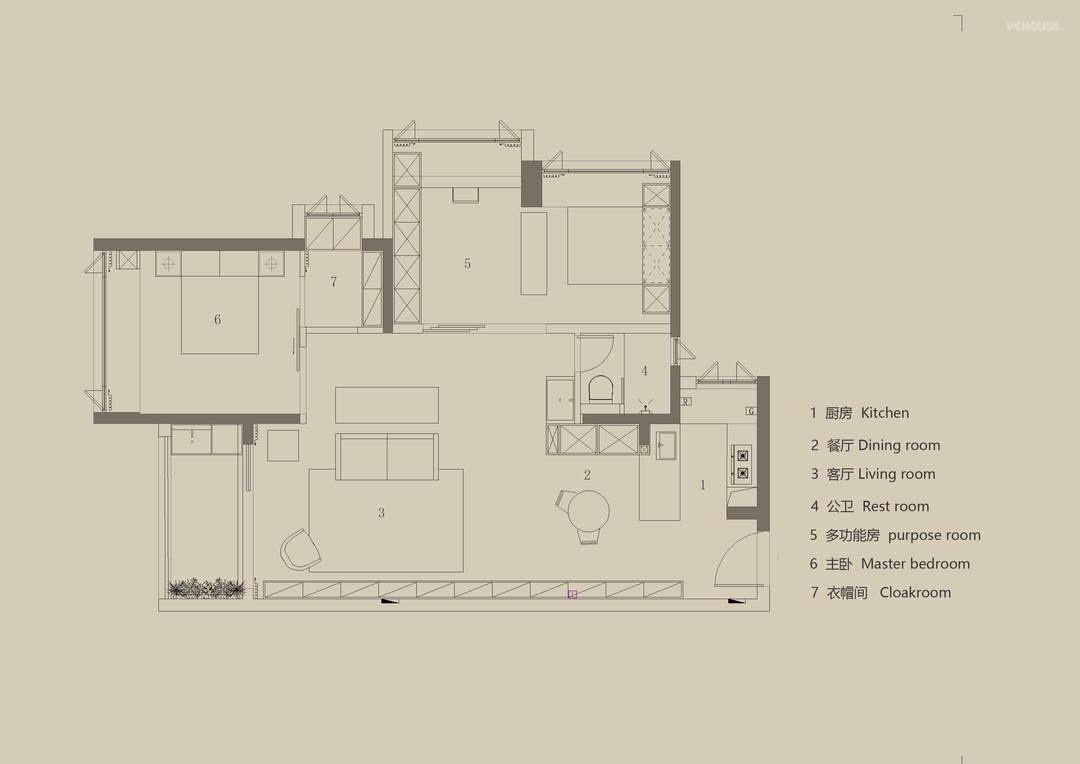
平面方案图
设计优化:
1. 保留了阳台的独立性与功能性,整面落地窗带来了充沛的光线,赋予客厅更好的视觉感;
2. 打造开放式厨房,连接入户处、客餐厅,实现LDKB布局,凸显一字横厅的开阔舒展;
3. 厨房打造U型布局,通过岛台与餐厅过渡,空间功能性丰富;
4. 多功能房利用玻璃移门代替传统门,使室内光线充沛,同时保留了与客厅的公区视线链接,更显开阔;
5. 多功能房放置墨菲床,兼具书房、琴房、客房功能,丰富空间功能性;
6. 将主卧内的卫生间打造为衣帽间,提高收纳属性与空间使用率。
走进这个家,温润的色调轻柔而利落地绘制着安谧的底蕴。木质细腻的手感纹理,营造出入户处质朴而恰到好处的温度。
玄关处大气内敛的斗柜、陶罐花瓶搭配浆果插花,相得益彰,既满足基本的收纳需求,亦为这一方空间增添优雅、宁静的视觉氛围。
摒弃原有空间结构,将原入户处与餐厨区打通融合,烹饪-用餐动线更加流畅,扩大整体的空间感。
光影掠过厨房,缱绻温柔,烹饪的热情随着美味佳肴充斥了整个空间。
客厅以优雅的姿态展现了主人的品味与个性,实木+布艺的家具,彰显沉稳与大气,营造东方韵味,这不仅是对传统文化的传承,更是对现代生活方式的创新。
天光映照,奶油底色反射出落地窗的自然光,突显出日常中的留白,感受无声的宁静与平衡,细细吐纳生活的喜悦与烦忧。
统一的木质、相近的色调的巧妙组合奠定了整体空间的基调,每一处细节都散发着令人安静的魅力,轻居的舒适感与文艺气息相互交织。
沙发与地毯织物的柔软,仿佛艺术家的细腻笔触,温柔的曲线和质感编织生活的美学。这不仅是一种物质的柔软,更是一种心灵的触摸、生活的艺术。
设计师打破固化形式,利用书柜代替传统的电视功能,采用连贯性定制化储物柜设计,视觉动线贯穿客厅、餐厅。
一器一物,方见始终。不需要繁华的装饰,胡桃木的温柔与质感尽显东方韵味。
自然木质与水墨丹青,在一撇一捺,浓墨重彩,扉页翻动中,积累起思想的高度、情感的深度,是简约大方的现代设计与优雅含蓄的中式设计完美结合。
沙发后伫立的书桌,山水花鸟,心正笔正,是中式文化的传承,亦是美与雅致的邂逅,空间中每一处设计都沉淀着岁月的痕迹,散发着深深的文化底蕴。
“书法即心法也”,一字见心,这张书桌,倾听了读经时的虔诚,纾解了凡尘里的郁闷,在笔墨间自洽,这是一场漫长而自我的修行。
功能布局上,设计将两个次卧打通,合并为多功能室;视觉体验上,通过玻璃移门打破了客厅与多功能房的局限性,形成巧妙的互动空间,视野开阔,赋予空间更多节奏感。
设计中动静结合,无论独处办公还是练琴,亦或者充当次卧,随时切换使用场景,感受静谧和热闹。
设计师不完全封闭与外界的链接,光线从小窗景中照射至书桌,心境汲取自然的力量,浮动若隐若现的舒缓气韵。
多功能房延续了中式而简约的审美基调,融合东方美学的雅致,浅白高柜与功能性结合,墨菲床让空间有了更多元的形态。
流动而绵延的自由形态为空间注入了无拘无束的生命力,起伏变化的功能性创造出独特且引人注目的动态美感。
拨动琴弦,触动着人们的感官,叩问心房,激发着人们的情绪,让空间充满生活的气息和情感的温度。
将台盆区外置,接入公区,便于一家人的使用,实现彻底的干湿分离。洁净的奶油白依旧保持着现代简约底色。
镜面采用复古的窗花造型,搭配精致小干花,典雅的气韵游走在每一处角落里。
相关案例推荐
境相设计
设计师相关作品

粤公网安备 44010602000156号