前言: 当我们谈论“南洋复古风”,你脑海中会浮现哪些元素?是那些带有时间印记的木制家具、藤编篮子与坐垫、柔软透气的亚麻布料,还是那些图案精美的小花砖?在你了解这些设计元素后,如何巧妙地将这些复古韵味的元素融入家庭装饰,打造出既温馨又具有复古风情的居住空间呢?今天,分享一套复古风婚房设计。
1,增强空间的储物能力;提升空间间的开放感与互动性
2,打破狭长厨房空间的闭塞感;让每个区域都能实现设计上的重新整合与连接
3,男主人酷爱电子游戏,而女主人则偏爱阅读书籍。他们都渴望在闲暇时光中能有彼此的陪伴和互动。
因此,在新家的设计中,一个温馨舒适的多功能空间成为了他们的共同愿望。
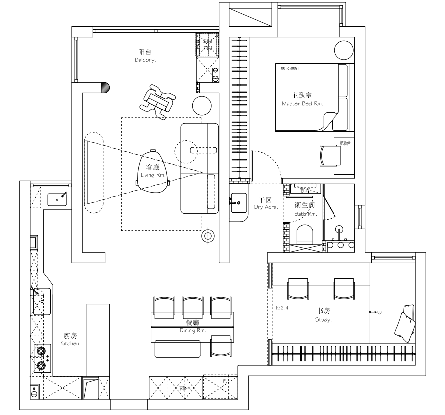
针对夫妻二人的居住需求,平面空间改造聚焦于空间利用率与功能优化。
✅封闭式的狭长厨房通过采用L型布局与岛台相结合的开放式设计,有效提升了操作空间的效率,并通过墙面垂直收纳的方式,增强了储物能力;
✅卫生间采用干湿分离设计,能够提升使用效率并改善卫生状况;
✅卧室门移位实现顶天立地床尾衣柜,最大化收纳空间。
✅次卧做多功能房+独立书房,采用半开放设计,兼顾私密性与通透感。
✅冰箱和鞋帽柜的组合玄关柜设计,空间最大化利用。
✅公共区域优化为二人互动留出更多灵活空间,同时合理划分私密区与共享区,确保舒适性与实用性平衡。
南洋风与中古风的结合,以自然元素营造出舒适温馨的居家氛围。客厅采用人字拼地板与复古家具的搭配,深棕色木质与低饱和度米白色相互映衬,点缀热带绿植与亮黄色,打造出慵懒松弛的空间基调。
中古风格组合柜成为客厅的视觉焦点,既满足储物需求,又以独特造型和精致质感提升空间格调。整体设计通过自然材质与复古元素的巧妙融合,呈现出精致而富有生活气息的家居环境。
黑色的皮质沙发与一束优雅浅粉色郁金香花束相搭配,形成了一种独特的视觉对比。这种对比不仅展现了柔和与干练的反差之美,而且营造出一种时光沉淀的美感。沙几个复古风格的抱枕随意散落,为空间注入几分慵懒惬意,让人在忙碌中寻得片刻宁静。
阳光透过纱帘洒落人字拼地板上,与复古木质家具交织出温暖的光影,深浅木色的碰撞既强化了空间层次,又凸显了中古风格的沉淀之美。
整个空间巧妙融合了现代质感与复古元素,皮质沙发、郁金香、纱帘与木质家具共同谱写出一曲静谧的生活乐章;中高柜的棕色系木门与浅色的人字拼地板形成了鲜明的对比,每一处对比设计都让空间更显立体,仿佛打造出一个远离喧嚣的治愈系居所。也让屋主在享受家居生活的同时,能够感受到设计带来的独特魅力
在这个厨房设计中,大面积的奶油白色调营造出一种温馨而明亮的氛围,而胡桃木的深色纹理高柜设计则为整个空间增添了一丝温暖和质感。墨绿色手工砖墙面和局部点缀,与黑白木色调形成鲜明对比,注入生机与艺术感。金属把手等细节的运用,为空间增添现代轻奢气息
柜体设计中大胆使用高级灰与木色组合,诠释南洋风的纯粹与温暖。为打破可能产生的沉闷感,墨绿色手工砖为厨房增添一抹生机,清新悦目的设计让日常烹饪成为一种享受,在美食与美学的交融中感受生活的愉悦
摒弃传统的空间布局理念,营造一个更加开放、自由和无拘无束的用餐环境,将原本独立的厨房区域与餐厅空间巧妙地融合在一起,实现宽敞明亮又具有极强互动性的用餐体验。在照明的选择上,灵动造型的海鸥形状的灯具与餐厅空间所追求的自由氛围完美契合。当夜幕缓缓降临,海鸥灯散发出柔和的光芒,让整个餐厅都被温暖与浪漫包围着!
书房空间被巧妙地设计成一个多功能区域,局部地面抬高12公分做地台,长2.1m*宽1.3m既可以作为临时客卧,也可以作为独立书房,同时还是一个休闲放松的区域,实现了三合一多功能房。中古法式玻璃吸顶、充满生机的花鸟壁纸为空间增添了一份自然的气息。
老钢窗框搭配钻石玻璃的移门,为书房注入复古美学的绝佳选择,既保留了历史韵味又兼顾了现代功能需求。胡桃木、鱼骨拼营造复古氛围,夜晚光线透过玻璃投射出朦胧光斑成为空间焦点
主卧木色和白色营造出温馨而自然的氛围,给人以宁静、舒适感。木色的家居和装饰品,都透露出一种质朴和原始的美感,而白色的墙面和床品则为整个空间增添了一抹明亮和清新,在这个空间中享受到真正的休息和放松。
在卫生间干区的设计上,设计师巧妙地运用了浅棕色复古砖与黑色镶边的组合配色,赋予了这面原本普通的墙面一种独特的韵味。 黑色圆弧形台盆以其优雅的弧线设计,巧妙地融合了现代美学与实用功能,使得整个区域不仅仅是一个简单的洗漱空间,而是一个充满设计感和舒适体验的区域。这种设计的运用,在日常使用中能够享受到更加精致和有品质的洗漱时光,同时也体现了设计师对于空间细节的深刻理解和精心打磨。
谁说小空间的卫生间不能拥有小而精的美感呢?运用瓷砖的色彩与纹理拼接,带来了意想不到的美感。墙面浅灰色瓷砖,这种色彩不仅显得干净利落,而且能够反射光线,较小卫生空间看起来更加明亮和宽敞
这套南洋复古风设计,实现了空间功能与家居美学的完美平衡。通过解构南洋传统建筑语汇,设计师巧妙植入现代生活动线,在有限面积内创造出具有多维体验的居住空间。材质肌理的创新组合重构了传统与现代的对话关系,独具匠心的色彩调度,让理性与感性在设计中恒温共存。这种将复古元素转化为当代设计语言的能力,不仅提升了空间的使用效能,更创造了远超物理面积的精神场域;完美诠释了"用设计创造价值"的专业内核
相关案例推荐
上海鸿鹄设计
设计师相关作品

粤公网安备 44010602000156号