VR
视频
前言: 从玄关的克制留白,到客厅的松弛叙事,再到卧室的温柔与克制,我们以「功能与美学共生」为准则,用色彩、材质与光影,为主人定制独一无二的理想居所。
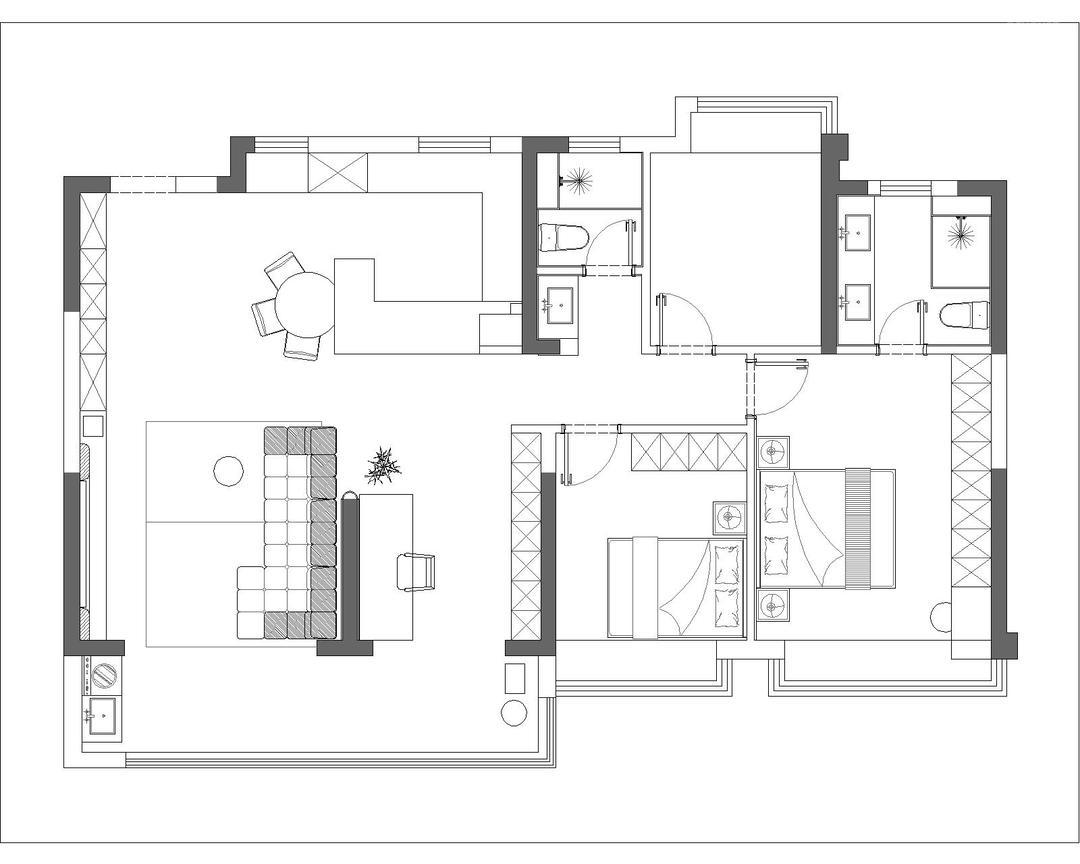
户型图
原有户型为142平米,业主想把南次卧解放出来,做成横厅设计,而且需要超长吧台做功能区,对原有的颜色搭配都不是很满意。
将南次卧解放出来,做成书房区域,将原有的电视柜全部去掉,做成功能组合柜,去掉原有地砖,重新铺砖并进行颜色更换,去除原有厨房移门做成开放式,主卧床方向进行更换,并做超长衣柜设计
客厅
米色肌理墙搭配仿真火焰装置,光影跃动间点燃空间温度。白色背景造型圆润的隐匿了电视的体块,圆形咖啡桌上的果盘与杂志,暗示生活烟火气的流动。背景墙的火焰艺术装置,让科技感与温度感共生。
黑色丝绒沙发成为视觉焦点,黄白几何抱枕与虎纹毛毯碰撞野性浪漫。米白背景墙上,深棕木饰板以镂空设计勾勒呼吸感,立柱绿植为空间注入自然气息。光影在几何线条间游走,定义现代艺术的边界。
卫生间
书房
木纹墙黑色复古黑胶唱片机与绿植,橙色书椅点亮冷调空间。深棕木纹墙板挂载唱片装饰,与客厅电视墙形成视觉对话。银色MacBook与纸杯咖啡,定义居家办公的松弛美学。白色玻璃门储物柜,让功能隐于艺术感之中。
衣帽间
相关案例推荐
网友评论
张涛-苏叁设计
设计师相关作品

粤公网安备 44010602000156号