前言:
说在前面:房屋原本是精装修简装的状态,业主比较喜欢电影感的复古风氛围,对于空间的要求是尽可能通透宽敞,家里是三口人居住,夫妻和孩子,还有只可爱的小猫,需要有猫咪的活动空间,长辈住的很近,会过来一起吃饭,保留客房。
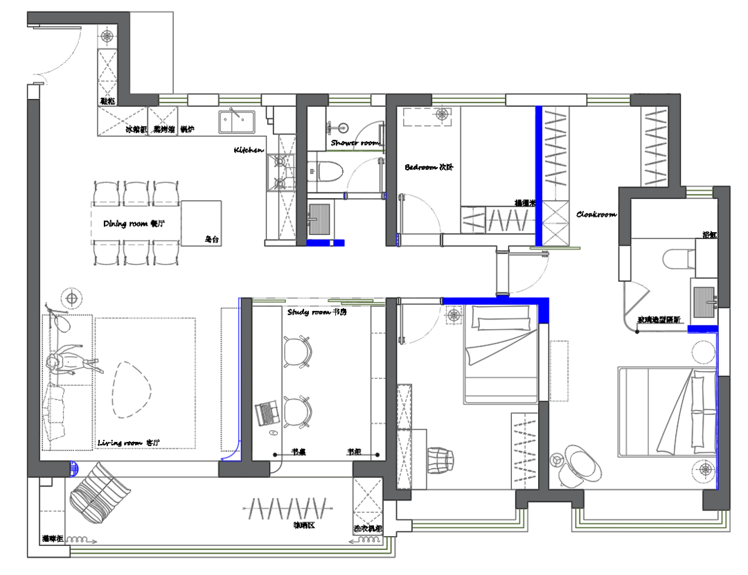
原格局空间相对封闭,餐厅在主要的动线上,厨房凸角影响客厅感受,过道空间浪费较多,且结构不规整,室内整体采光偏差;
原始结构图
①将原有的封闭式厨房打开,做成开放式餐厨,设置中岛吧台和餐桌组合的形式,后期方便家人之间的互动和聚餐使用;
②过道也做了调整,原本的过道过长,而且又窄又暗,将南边书房的非承重墙体拆除,尽可能把空间打开,用装饰性的弧形玻璃隔断和移门组合,做成半封闭的形式,增加空间的通透感和采光,干区也同样做了半开放式改造,同时也处理成弧形的造型和书房的弧形隔断相呼应;
③主卧套间把原有的主卫墙体拆除,改造成了半透明圆弧玻璃隔断形式,不仅规避了原来主卫生硬的墙角,也使得主卧空间显得更大,柔和的灯光从主卫映射出独特光影。客房和衣帽间相隔,因为客房使用率较低,所以借用了客房部分空间将衣帽间适当做了扩大,增加更多的收纳。
地板
玄关
装饰画
鞋柜
自然风
门厅柜
侘寂
玄关柜
原木
玄关位置做了鞋柜和端景台,台面用宝格丽的石材做装饰,鞋柜和厨房橱柜是一体延伸的,所以整体也是做的框架外露的形式,外框是胡桃木色的,内部是奶油白的,把手用的宜家的索尔比恩款式。玄关的灯做了感应式的,进门就会缓缓开启,营造归家仪式感。
绿植
地板
艺术品
装饰画
客厅
自然风
艺术漆
沙发
侘寂
饰品
屏风
原木
沙发墙
地板
装饰画
客厅
自然风
艺术漆
侘寂
电视墙
电视柜
窗帘
原木
绿植
地板
灯具
客厅
自然风
沙发
艺术漆
侘寂
隔断
屏风
原木
整个客厅空间充满了浓郁的复古优雅气息。把原来的阳台移门拆除,提升使用面积与采光,在承重墙部分做了柔和的弧形线条,让空间自然过渡。
艺术品
灯具
客厅
自然风
艺术漆
侘寂
电视墙
电视柜
原木
花瓣主沙发舒适度和颜值都在线,背后将漆艺屏风固定上墙,增加复古艺术氛围,一旁的中古帆船落地灯像是一件艺术品。
玻璃移门
灯具
自然风
侘寂
油烟机
橱柜
厨房
嵌入式家电
原木
冰箱
洗碗机
自然风
侘寂
油烟机
烤箱
橱柜
瓷砖
厨房
嵌入式家电
原木
打开厨房,使得整个客餐厨融为一体,让空间显得更大,互动性更好,餐厅选用的是1.8米的长桌和岛台拼接,形成洄游动线,利用高低差在岛台侧面预留轨道插座,方便吃火锅或者充电。
浴缸
自然风
干湿分离
侘寂
壁挂式马桶
隔断
瓷砖
原木
卫生间
主卫采用黑色金属隔断,整体做弧形处理,规避了阳角的尖锐,磨砂玻璃既透光也保证了私密性,内部选用了奶白色的柔光砖和黑白水磨石撞色设计。
自然风
干湿分离
浴室柜
侘寂
镜子
镜柜
花砖
原木
卫生间
干区把原来的墙体拆成半墙,并做了弧形处理。水池台面选用宝格丽的石材,抽屉用的骨格线的形式。
主卧整体色调是大地色系的,以米色和棕色为主,墙顶面也是统一做的艺术漆涂料,床头做胡桃木骨骼线半高护墙,嵌入暖光灯带,营造出宁静温馨的睡眠氛围。飘窗定制米色坐垫,闲暇的时候可以在窗边晒晒太阳,床头预留可以调整角度和位置的壁灯,方便睡前阅读。
定制柜
装饰画
灯具
自然风
儿童房
侘寂
饰品
衣柜
原木
儿童房门后设计了满墙的洞洞板,可以随意挂一些包和运动器械或者玩具等,书桌和书柜是一体的设计,书桌的边角做圆弧处理避免碰撞。衣柜和书柜都是和公区一样做拼色设计,儿童房整体选用了豆沙绿和奶油白做撞色,把手则用了可爱的糖果色圆球做点缀。
地板
灯具
自然风
儿童床
儿童房
侘寂
照片墙
饰品
原木
儿童床,饼干造型的床靠富有趣味,选择小边几替代传统床头柜,小巧又实用,墙面还有可以调节角度的小壁灯。
衣帽间内部空间比较小,做了双排衣柜,柜门选择用和墙面涂料接近的奶白色,会显得空间更大一些。
衣帽间设计中古洞洞移门,圆洞的地方用了水波纹玻璃,隐约透出衣帽间的光影效果。
相关案例推荐
刘亚杰
设计师相关作品

粤公网安备 44010602000156号