前言:
本案是设计师自宅,坐落于广东珠海十字门的优越地段,设计师以自然山景与室外环境的和谐共生为灵感,巧妙地弱化了空间边界,继而实现自由平面可随意变动的家,同时融入了独特的东方美学设计理念。这不仅满足了设计师对生活方式和居住空间的全新思考,更是对居住品质的进阶追求。
15年的设计职业生涯,蔡海安见证了无数屋主入住新家,也满足过很多屋主二手房翻新的需要。等到真的开始装修自己家,他才意识到:设计师自宅,是最难设计的,远比客户家难十倍、百倍。
买房后他开始思考:理想中的家应该是更高级,还是更富有美学?他暂时抛下积攒多年的经验,让一切回归到一个原点——空间与人的关系。于是,他立足于自己与家人的需求,将设计功能巧妙调度与运用,构建起理想的新家。
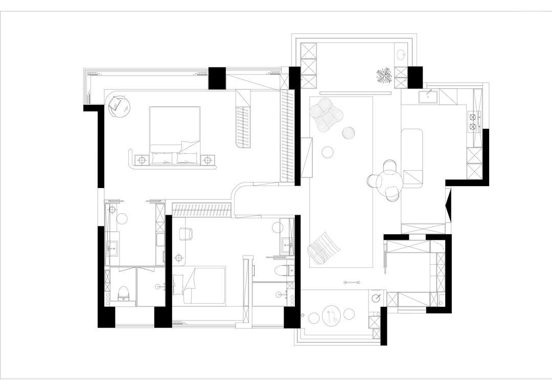
将4房改成2房,根据一家三口的需要,客卫都精简掉。卧室之间的长过道造成空间浪费;客厅阳台景观是小区高楼,需要进行视线改善;厨房狭小拥挤,不符合使用需求。在考察过房子的情况后,设计师将“5+1设计思路”作为核心,即“松弛、氛围、独立、亲子、存在”以及“隐藏”收纳。
将原本的厨房改为储物间,并进行隐藏式收纳;其次,原本的客房改为餐厨一体,大岛台和小圆桌的设计,无形中让家人的互动关系变得更好;同时,“去客去厅”,营造模糊化的空间感受;另外,将山景阳台的地面抬高,在秋千上荡漾,一面能看山,另一面能看隐藏在天花内的120寸大电影。
相关案例推荐
白菜适家空间设计
设计师相关作品

粤公网安备 44010602000156号