前言: 本案业主为咖啡师夫妇,业余爱好是调酒,偶尔会带朋友回来开party,于是设计师lucky和王先生夫妇一起把他们工作的设备,和热爱的一切,通通搬进理想的小窝。
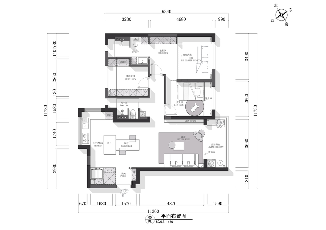
玄关
采用围合感手法形成园起以小见大的空间,强调体验感、自大门而入,右边是嵌入式鞋柜,附加全身镜满足收纳功能需求时,下面镂空打造光线,左边是以盒子构思做了储物间,柜子颜色用了墙面深灰色串联出体块厚重感。
客厅
喜欢微水泥,那就用微水泥作为全家的主基调,喜欢中古混搭风,那就把新中式融入侘寂。
摒弃传统思路去客厅化,打掉阳台原有推拉门融入客厅扩大空间感,增加采光通风硬性条件,客厅以玩耍区打造亲子空间一面墙,开放式书架展示主人收藏书籍和艺术品,弥漫着书香气息、欢声笑语,沉淀下岁月精粹。
卫生间
摆放了具有艺术立柱盆,在简洁安静中融入质朴的美、不完整的形式和有缺陷的事物都更能表达精神。
开放式主卫不被定义,通过刻意把墙体脱离手法,形成一个可以视线穿透增加趣味性。
相关案例推荐
网友评论
白菜适家空间设计
设计师相关作品

粤公网安备 44010602000156号