前言:
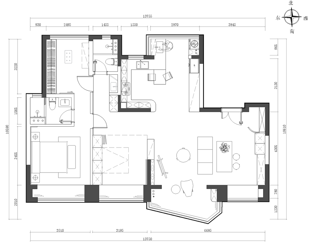
本案为精装房改造,业主是一对正值退休年龄夫妻,计划在珠海养老,房子作为退休居所~,然而先生腿脚行动不便。重点是重新整合房子动线与功能,业主也希望在家也能“走起来”,所以在天花顶上做天轨设备,利用天轨支撑身体在家也能自由徒步活动并做康复训练,设计师模拟业主在家的日常活动动线,将天轨路线从客餐厅连接至主卧,为了便于日常淋浴,公卫淋浴区也设置天轨路线,空间结构的过渡处均采用弧形设计,不仅赋予空间灵动柔美的视觉感受,同时也提升了日常使用的安全性与便捷性,减少磕碰风险,全屋做了智能控制,方便手机上也能远程操控,融入适老化细节,为业主打造一处舒适安稳的退休居所。
进门即厅的格局,在入户靠墙设计一组鞋柜,海棠花玻璃弧形屏风做遮挡,满足进出门物品的收纳需求、美观两不误。
客厅设计大面积墙身深绿色与柚木色材质碰撞,弱化天花顶天轨设备,墙面的圆弧设计与天轨线条呼应,梁位并采用清水混凝土艺术漆强化梁位设计,空间陈设上增添绿植引入自然气息,让空间绿意环绕营造出宁静复古温馨的氛围。
拆除厨房隔墙后,以餐桌+厨房台面作为岛台重构餐厨关系,形成餐厨一体横厅。满足日常两人用餐的餐桌,也可随意切换多人用餐模式,轻松满足朋友聚会需求。不仅提升了空间的实用性和灵活性,更使整体视野开阔,优化空间体验。
多功能房用海棠花玻璃折叠门代替实墙放大空间。浓浓温馨复古给空间增加韵味,打开时与客厅连成一片,中间隔墙利用鱼缸隔开作为端景,鱼儿在水里嬉玩游来游去不亦乐乎~,让空间通透敞亮,阳光肆意洒落,视觉上倍感开阔。有客来访时,关上移门,放下壁床,瞬间变身客房,既保证隐私又不影响客厅活动,空间利用灵活高效,真正实现一房多用,满足不同生活场景需求。约上三两知己做客偶尔暂住时的交流互动也更加肆意随心。
阳台封窗纳入活动区开阔视野增加使用面积,书房嵌入壁床实现“书房+客房”切换。
主卧和衣帽间连通,双洄游动线串联,行动增加便捷性,使空间布局更合理。
相关案例推荐
白菜适家空间设计
设计师相关作品

粤公网安备 44010602000156号