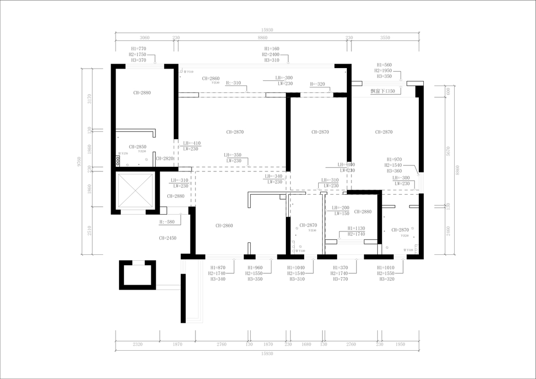
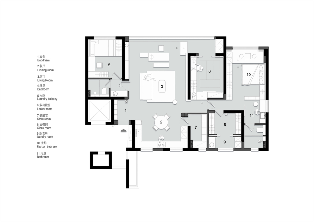
前言: 治愈系私宅—独处与共聚皆成诗章
客厅
相关案例推荐
网友评论
张浩
编辑精选

粤公网安备 44010602000156号