前言:
顺意而行,乐活岛屿
既见山海,且驻流光
顺意而行,乐活岛屿
既见山海,且驻流光
在凝固的光阴里,享乐岛屿
「意乐岛」——音译自法语La Villa En L'ile,意为顺随心意的宁静岛屿。在温岭石塘,这处被涛声不断凿刻的礁岩半岛,渔汛裹挟咸湿的海风,呼啸过鳞次栎比的石厝,海浪拍击于石墙的缝隙,留下晶莹的盐粒与凹陷的刻痕,此地的光阴比别处更懂得如何凝固。
法语的音调在舌尖转圜后留下音律的错节,我们以建筑作为思想的锚点,刺破“民宿”与“酒店”的固有边界——不是建造栖所,而是在潮汐的平仄起伏中,为现代人打造一场让人心驰神往的“岛屿奇遇之旅”。
伴山海而居,解读生活
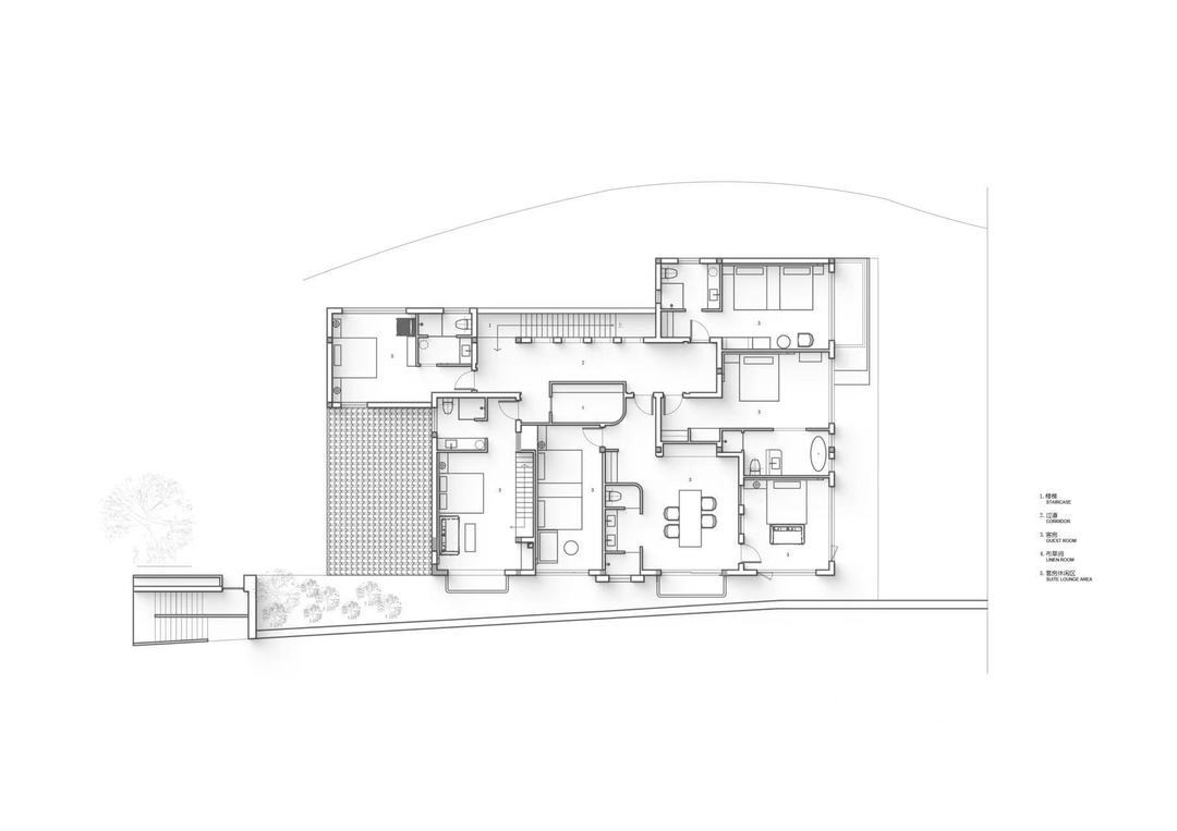
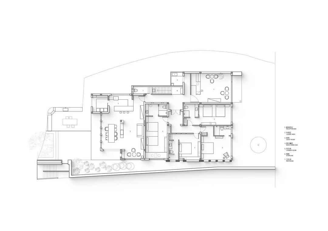
在七间卧房的规划里,一间留作屋主的自住空间,剩余的作为经营性的客房使用,同时置入客餐厅、咖啡吧、公共阳台等必要的主体功能,使之形成完整的居住闭环,为所居山海提供更具现实生活感的解读方式。
我们拒绝「修旧如旧」的伪饰,转而用当代设计解构渔镇基因:自老房拆下的虎皮石被重新切割打磨后,融入先锋的几何式建筑形式,钢筋混凝土的骨骼之外,粗粝的海砂包裹在地的建筑思考。空间与周遭石厝融为一体,又特立独行,亦代表当下的生活状态与传统渔村的交锋与交融。
以材质记录语言,寻光而生
将自然的阳光与植被纳入设计的考量,使之成为视觉的点缀语言,将海岸的风与拍打礁石的浪涛声作为日常的协奏,光阴流逝的痕迹被建筑的材质记忆,并从中提取渔镇的基因,让居住的意义回归到自然、质朴,又具有生命力的日常。
相关案例推荐
温州大墨设计
设计师相关作品

粤公网安备 44010602000156号