前言: 都市喧嚣愈盛,人们也会更渴望生活的简单与自由,现代简约风格便是对这一诉求的精准回应——设计舍弃多余表象的色彩与装饰材质,构建出具有呼吸感的流动空间,视觉留白与隐形化的收纳体系,让真实的品质感从细节处浮现。
沙发墙
绿植
灯具
客厅
沙发
饰品
现代简约
瓷砖
电视柜
电视墙
窗帘
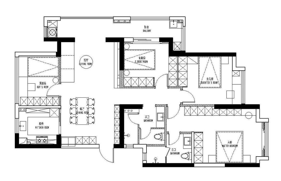
与餐厅、阳台的一体开放,客厅收获了更大的空间感。背景面透过统一的色调与隐形门的方式,形成视觉上的完整延展,线条对块面适度的切割划分,为空间带来有秩序的层次感。
冰箱
绿植
餐椅
餐厅
餐桌
灯具
餐边柜
饰品
现代简约
隔断
瓷砖
餐厨动线紧密并通过玻璃移门相隔,冰箱外置,节省了厨房的空间。轻奢感石材餐桌搭配米色与黑色组合的餐椅,沉稳中显出高级质地,玻璃柜的加入也为空间增添了更多通透感。
公卫的日常使用频次较高,因此除了借主卫的一部分来拓宽面积之外,还利用三分离的设计,独立划分不同功能,避免早晚高峰可能会出现的使用冲突,提升居家幸福感。
相关案例推荐
浙江南鸿装饰股份有限公司
设计师相关作品

粤公网安备 44010602000156号