前言:
									在这个快节奏的时代,我们总渴望找到一片属于自己的宁静角落,让时光慢下来,让生活回归本真。
这间40㎡的小宅,正是这样一处充满故事的空间。它以中古风为基调,将复古的韵味与现代的舒适巧妙融合,每一处细节都仿佛在诉说着岁月的故事。
在这里,旧物不再是尘封的记忆,而是焕发出新的生命力;在这里,40㎡的面积不再是局限,而是精致与温馨的代名词。
走进这间房子,仿佛打开了一颗时光胶囊,复古的家具、温暖的色调、细腻的质感,都在邀请你放慢脚步,感受生活的美好。
无论你是中古风的爱好者,还是小空间的探索者,这里都将为你带来灵感与惊喜。让我们一起,在这片40㎡的天地里,拾起复古的微光,编织属于自己的温暖故事。
									
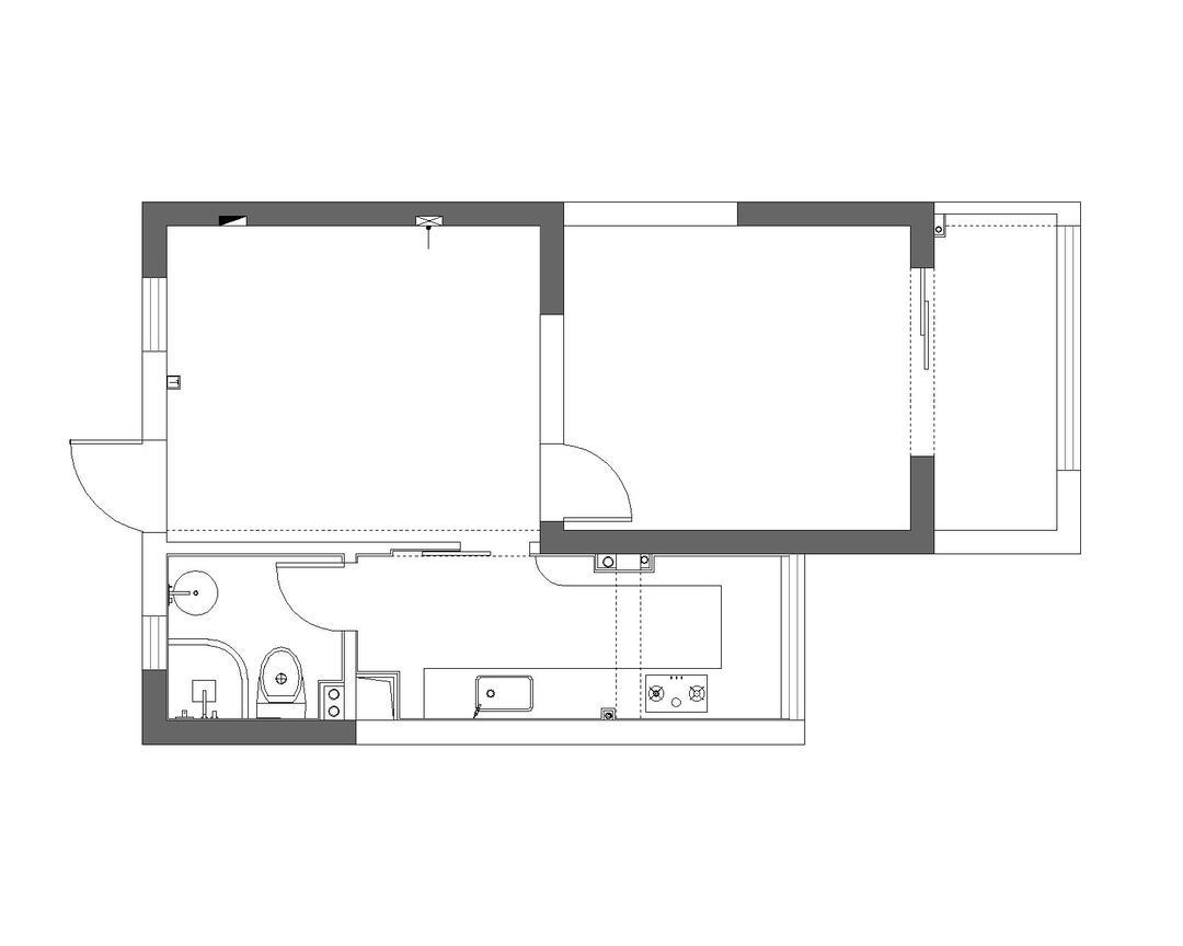
原始布局存在明显的功能混杂与动线混乱问题。
厨房与卫生间紧邻,空间狭小且功能交叉,使用起来极为不便。卫生间没有干湿分离,洗漱、如厕、淋浴都在同一区域,不仅影响使用效率,还容易造成卫生问题。
餐厨区域则被压缩在角落,缺乏明确的动线规划,烹饪、用餐、收纳等功能相互干扰,空间显得拥挤而杂乱。
整体空间缺乏层次感与流畅性,居住体验大打折扣。
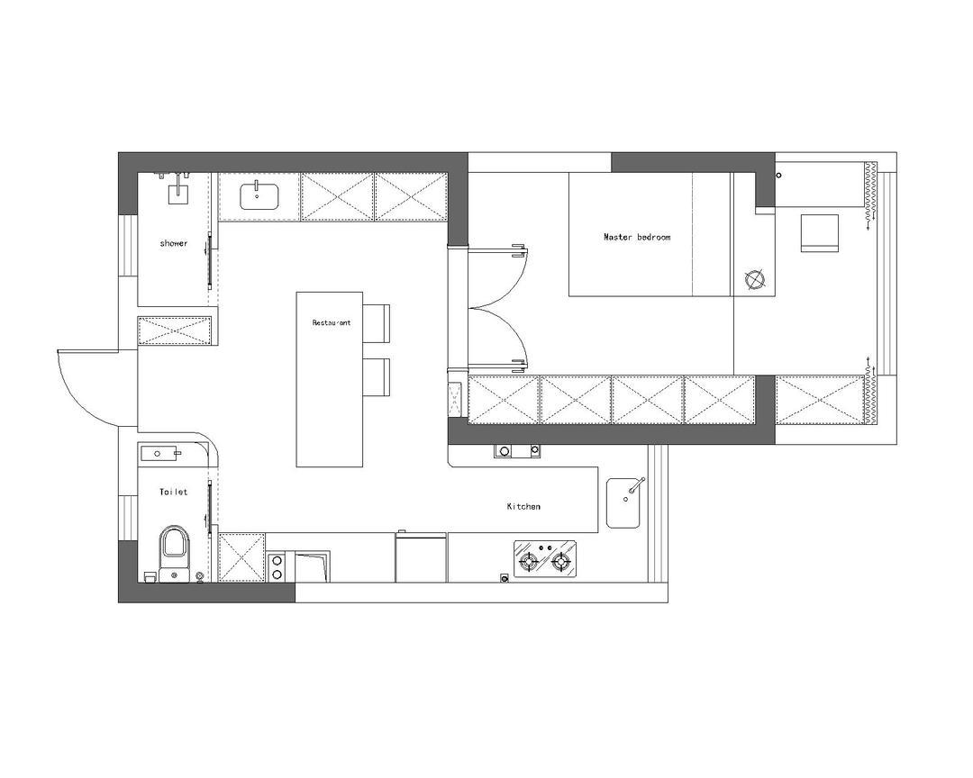
过三分离卫生间和餐岛台环绕式动线的设计,彻底优化了空间布局与功能体验。
三分离卫生间将洗漱区、如厕区、淋浴区完全独立,不仅提升了使用效率,还避免了卫生问题。洗漱区外置,与公共区域自然衔接,既方便日常使用,又让空间显得更加开阔。
餐岛台环绕式动线则成为空间的核心设计。岛台既是烹饪的操作台,又是用餐的餐桌,同时承担了收纳与社交的功能。环绕式动线让厨房、餐厅自然衔接,形成一条流畅的生活动线,既节省了空间,又提升了使用便利性。
在设计中,注重材质与色彩的搭配:暖白色墙面与胡桃木家具的组合,营造出一种温暖而精致的氛围;灯光设计上,天际线灯带贯穿西厨整个空间,为小宅增添了一份温馨与层次感。
改造后的40㎡小屋,不仅功能齐全、动线流畅,更通过设计巧思,让空间显得开阔而舒适,成为一处充满温度与美感的居所。
玄关采用镂空设计,搭配全身镜,既保证采光通透,又方便屋主出门前整理仪容。
屋主每天回家,第一眼看到的是温暖的光线和流畅的线条,心情瞬间放松。全身镜,不仅实用,还让空间显得更大,出门前随手一拍,都是时尚大片。
圆弧倒角的墙面处理,让进门视野更开阔,减少空间压迫感。
拆除原始厨房隔墙,打造开放式厨房,餐边柜与烟道完美结合,既实用又美观。岩板台面与奶油白柜体统一色调,质感温润。
屋主烹饪时与家人互动,餐边柜收纳咖啡机、烤箱等小电器,随手取用,生活更便
捷。岩板台面易清洁,颜值与功能兼具。
深知餐边柜在小空间中的重要性。它不仅是收纳的核心,更是空间风格的点睛之笔。
动线设计是提升生活效率的关键。我将洗衣烘干区域与干区整合在一起,打造了一条高效且流畅的生活动线,让日常家务与洗漱变得更加便捷。
从洗衣到烘干,再到整理衣物,所有功能集中在一个区域,减少了不必要的走动,节省了时间与精力。
柜体采用多层设计,充分满足餐具、酒具、零食等物品的收纳需求,同时保持空间整洁。顶部的台面则是展示区,可以摆放复古摆件、绿植或一盏温暖的台灯,为用餐区增添一抹温馨的氛围。
在40㎡的小宅中,这款餐边柜不仅提升了空间的功能性,更通过复古美学,让整个空间更有层次感与故事感。
在40㎡的小宅中,如何高效利用每一寸空间,是设计的核心目标。为此,我将洗衣烘干区域与干区整合在一起,打造了一个既实用又美观的多功能空间。
洗衣烘干区域采用嵌入式洗烘一体机,完美嵌入定制柜体中,节省空间的同时,保持了整体视觉的整洁与统一。柜体选用中古风的实木材质,搭配复古拉手,与整体风格相呼应。顶部设计了开放式储物格,方便放置洗衣液、柔顺剂等用品,提升使用便利性。
取消传统客厅,定制餐岛台作为空间中心,动线环绕设计,灵活又高效。岩板台面与餐边柜镂空部分材质统一,视觉上更和谐。餐岛台不仅是用餐区,也是工作、社交的核心。屋主可以一边做饭一边与朋友聊天,动线流畅,生活更自由。
在40㎡的小宅中,干区设计尤为重要。我选择了岩板材质,为干区注入现代质感,同时与中古风的整体风格形成巧妙平衡。
岩板台面不仅具有高颜值,还具备耐磨、防污、易清洁的特性,非常适合日常使用。
衣柜不仅是收纳的核心,更是空间风格的重要表达。我选择了暖白色与胡桃木的搭配,为空间注入一份经典与温暖。
暖白色是根据乳胶漆颜色特地调制的,它柔和而富有温度,能够与墙面完美融合,营造出一种整体感与和谐感。胡桃木则以其天然的纹理与深沉的色调,为衣柜增添了质感与层次感。
在设计中,我特别注重色彩与材质的平衡:暖白色柜体让空间显得明亮而开阔,胡桃木的框架与拉手则赋予衣柜一种复古的优雅与稳重。这种搭配既保留了中古风的经典韵味,又为小宅增添了一份现代生活的舒适感。
从空间氛围上,暖白色与胡桃木的组合能够营造出一种温暖而宁静的氛围,让居住者在忙碌的生活中找到一份放松与归属感。
原始门洞改造成置物架,增加生活感。
相关案例推荐
 
							设计师Kimberly
设计师相关作品
 
 
 
												
													
														
															
																 
												
													
														
															
																 
												
													
														
															
																 
												
													
														
															
																 
												
													
														
															
																 
												
													
														
															
																 
												
													
														
															
																 
												
													
														
															
																 
												
													
														
															
																 
												
													
														
															
																 
												
													
														
															
																 
												
													
														
															
																 
												
													
														
															
																 
												
													
														
															
																 
												
													
														
															
																 
                                                     
                                                         
                                                     
                                                         
                                                     
                                                         
                                                     
                                                         
                                                     
                                                         
                                                     
                                                         
											
										 
											 
											 
											 
											 
														 
														 
														 
														 
														 
				 
                
 粤公网安备 44010602000156号
粤公网安备 44010602000156号