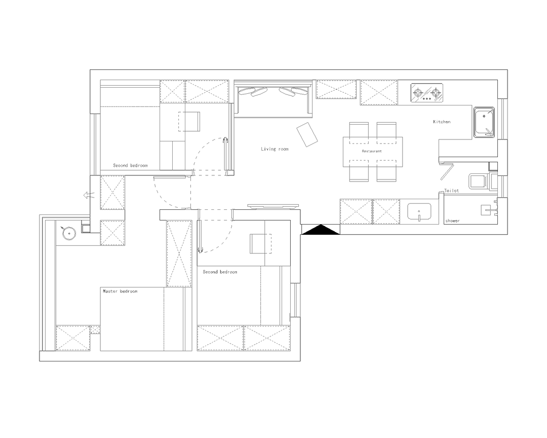
前言:
									当新生命叩响家门,50㎡的方寸天地便承载起双倍的爱与期待。本次改造的初心,是让兄妹二人在时光中学会共享欢笑的亲密,也拥有独享星光的自由。奶酪黄与乳白在立面上晕染出绵柔背景,胡桃木框架、收纳格以温润笔触勾勒成长轨迹。当哥哥的乐高坦克驶过妹妹的娃娃屋,木质肌理默默记录下所有童真碰撞。  
这不仅是房屋的改造,更是为童年定制的时间容器。五年后,升降书桌将从地板升起,活动场将裂变为双人书房。空间如树木般生长,年轮里刻着爱的预留值。  
									
										客厅
										
											
											
								
							
								
									
								
							
								
									
								
							
								
									
								
							
								
									
								
							
								
									
								
							
								
									隔断一开一合间,家在不同生活剧本中无缝切换主角。
客厅与次卧在滑轨上自由呼吸——乳白色墙面透过玻璃晕染出朦胧光晕,让母亲在沙发备课抬眼间,便能捕捉儿童房内兄妹拼积木的剪影。
										阳台
										
											
											
										
									
								
							
						相关案例推荐
网友评论
						
						
						
						
                        
						
						 
							设计师Kimberly
设计师相关作品
 
 
 
												
													
														
															
																 
												
													
														
															
																 
												
													
														
															
																 
												
													
														
															
																 
												
													
														
															
																 
												
													
														
															
																 
												
													
														
															
																 
												
													
														
															
																 
												
													
														
															
																 
												
													
														
															
																 
												
													
														
															
																 
												
													
														
															
																 
												
													
														
															
																 
												
													
														
															
																 
												
													
														
															
																 
												
													
														
															
																 
												
													
														
															
																 
												
													
														
															
																 
												
													
														
															
																 
                                                     
                                                         
                                                     
                                                         
                                                     
                                                         
                                                     
                                                     
                                                         
                                                     
                                                         
											
										 
											 
											 
											 
											 
														 
														 
														 
														 
														 
				 
                
 粤公网安备 44010602000156号
粤公网安备 44010602000156号