前言:
性格中难以捉摸的、有创造性的、自发的部分一定意义上是由我们碰巧身处其中所决定的
——阿兰·德波顿《幸福的建筑》
性格中难以捉摸的、有创造性的、自发的部分一定意义上是由我们碰巧身处其中所决定的——阿兰·德波顿《幸福的建筑》
我们处于一个常态变化的时代奔流中,对自己、对世界的认知也在不断更迭。当下90后群体面对多元的社会理念与文化融合,对自我认同的价值感有着更独到的见解。玩世、个性、自由,拥有专属自己的生活方式。
于是,我们和这位90后业主展开了一场关于年轻人“独居”的深度对谈。从内心最真实的角落出发,构建一处场域,让生活与情绪在这里得到妥帖安置,在变化与永恒之间寻找到平衡与乐趣,得到自洽、治愈与期待,真正享受当下生活。
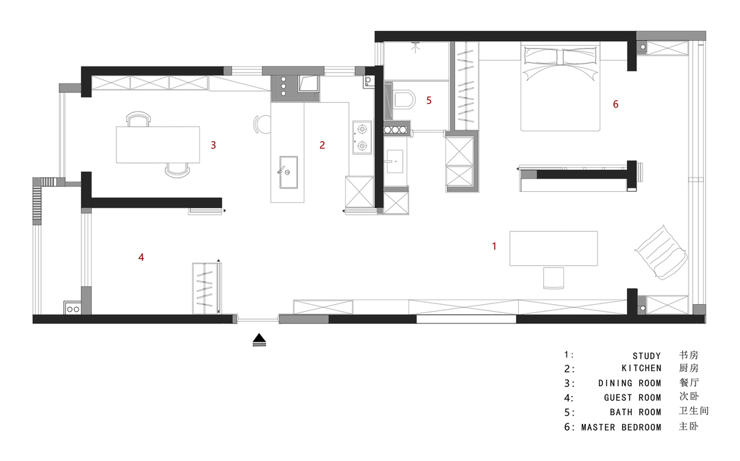
设计打破客厅传统沙发模式,在公共区布局多功能书房,满足业主日常工作与学习,落地更切实的生活需求。满墙书柜陈列布局,线条纵横疏密有致。黑色柜体作底,浮接滑动式柜门,在结构的起承转合间,制造多维切面,焕活场域灵动。
通过打破原始布局,细致体察业主当下的生活习惯与需求,将视角着力于个人社交场景与内心的情绪体验。空间消除多余墙体,转换成动态的移门转合效果,自由调度不同场景之间的递进关系,形成场域的收束与释放,优化起居、收纳、动线的自由节奏。
入门原木展开柔和的空间变奏,自然的温度在光的辅佐下,蔓生悠扬的静谧力量,经结构美学微妙叠加,细腻梳理人、空间、自然的平衡关系。
随性自由的空间体态,展开一幕幕趣味丛生的生活剧场。宽阔移门将餐厨构成连贯整体,烹饪区、吧台、餐厅形成开放的递进层次,弥补了室内光线的不足,赋予更生动的场景体验。
烹饪区搭配吧台围合成U形的中西厨操作台,实用与精致共享。简单制作一份料理,或惬意独享,或约三俩好友闲情相聚,生活逐渐丰盈。
餐边立柜布局收纳与展陈的美学形态,柔光从透过玻璃,为空间覆一层滤镜。雅黑长桌雅致持静,去繁就简的设计回归结构本身的温润实感,为生活静辟一份闲适。
设计师利用墙体结构,在主卧与书房之间过渡一处书柜,两侧设置移门,根据生活、入寝等不同状态与情绪需要,自由调度开放或独立的空间关系。单侧线形灯配合无靠背床,设计通过对外物结构的极简式驾驭,关照居住者内心更细腻的情感需求。
卫浴充分调度空间面积,重塑洗漱、沐浴、洗衣的生活动线,实现便捷的日常操作。洗衣机与烘干机搭配组合,满足独居生活轻量化的洗护需求,消除阳台的晾晒功能。区域之间基于生活所需互相取舍,协调出真正的舒适与品质。
相关案例推荐
邱琼瑶
设计师相关作品

粤公网安备 44010602000156号