前言: 这套77㎡的房子,常住人口是年轻夫妻二人,近几年之内准备要小宝宝,后期老人还会过来帮忙照看。所以在规划的方向上,是以四口人使用的居住空间为主。除了家属成员,还有两只可爱的猫咪。露台区域的需求,是能够满足休闲使用的同时,还需要保证猫咪的安全。因为是6层的顶层房屋,房子顶部有多处较大的陡坡,所以对于吊顶的改造优化,也是屋主小姐姐也是比较关注的。整体风格希望温馨,少用一些木色。
改造前:
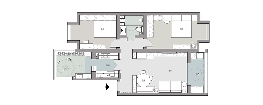
1.原始户型改造前,门厅缺少储物区和遮挡关系,进门时客餐厅会被室外一览无余。
2.客厅比较方正,但顶面较高,视线被从两边压缩,造成整个空间的比例相对压抑。
3.原始的阳台地面抬高20cm高,错层的结构不能与地面平齐。
改造后:
1.进门增设独立玄关区,穿衣、鞋柜、包包等都可以在这边进行收纳。
2.通过玄关过道进入客餐厅,将原始客厅分为三部分,调整使用比例,增加空间层次感。
3.原有不能打掉的阳台地面,增加出一部分,并在边缘增加灯带,让阳台有了悬浮效果。
玄关的储物与颜值并存,过道地面与全屋通铺大砖一致。顶部做单侧弧形处理+反光灯槽,增加延伸感。过道与客厅之间墙体门洞做弧角,柔软的处理,打造出舒适的玄关空间~
隔断由高柜和底层鞋柜组合,中间连接一面超白水波纹玻璃,给客餐厅提供视觉遮挡,光线还能延伸到门厅,透光不透影的朦胧效果就有了。
奶白色微水泥瓷砖通铺客餐厅,一直延伸到厨房。整个空间充满了温柔的气息与高级的质感,统一的配色下通透感十足。
选择120*60cm的大砖通铺,搭配同色的环氧彩砂美缝剂,达到弱化缝隙的效果。墙面与柜体也选择暖白色,让小空间达到统一,视觉效果显大一倍,也增添一份温柔的治愈感。
堆叠的模块组合,根据不同置物需求调整尺寸。落地部分做了加深的抽屉,与20cm高的地台平齐,深度60cm与左侧冰箱、水吧台统一。电视柜两侧深度35cm的封闭书柜,调整视觉对称感。
客厅无茶几给未来小朋友留出玩耍空间,抽屉一直延伸至地台,不仅能给玩具和绘本提供收纳,还可以坐在上面阅读玩耍,让空间有了更多可能性,与家人增添互动~
整体客餐厅都以奶白为主色调,在硬装上增加很多细节。斜型吊顶搭配1.6m高的背景墙,调整层高的视觉比例。整个墙板做留白处理,边缘做弧形灯带,加入竖纹栅,展示出简约又不简单的精致感,在这样的空间阅读、观影都会幸福感满满吧~
厨房双侧都是一字型操作区,满足洗-切-炒-盛的顺序,提供高效的使用动线。
烹饪区的台下预留大量储物空间,放置锅具和餐具。吊柜直接延伸至吊顶,将壁挂烟机的排气管遮盖起来,更加美观整体。
直径1.2米的圆形餐桌,满足多人用餐需求。落地卡座舒适,且能增加些许收纳。水波纹的超白玻璃隔断让餐区增加一丝浪漫气息~
白色岩板餐桌+透明的亚克力餐椅,轻盈的质感从视觉上,弱化圆形餐厅布置的体积感。靠在柔软的卡座靠背上,餐后在这边喝杯茶,阅读一本喜欢的书,这就是幸福感的来源吧~
最抢镜的就是餐区了,一字型卡座+极简圆形餐桌,不占空间还能最大限度同时容纳多人用餐。色调与材质的统一,营造干净整洁的氛围。除了就餐,剩下的时间还可以是一个非常完美的办公阅读区。
冰箱高柜深度60cm,外观平整的零嵌式效果丝毫不突兀。右侧同宽的水吧台,上面是杯子展示区,台面下方留两组抽屉,零食、茶叶、咖啡都可以收纳在此。
卫生间大砖铺贴墙面,竖铺的方式减少墙面的缝隙。
洗手柜下方做悬浮设计,可以放置扫地机器人。上方留置镜前灯,辅助照明同时增加卫生间的氛围感。右侧的开放格,可以减少物品堆放,留出干净整洁的台面空间。
卧室整体在奶白色的基础上,加入3000k的暖色氛围照明,营造雅致沉稳的空间氛围。床头的壁灯与吊顶造型呼应,还原睡眠空间的纯粹和安逸。
床头做弧形造型+一字型线条灯,光源温和不刺眼,床头的半墙设计让视觉层次递进。
L型转角衣柜,米白色的法式门板造型,简单的线条透着一丝精致,朝向梳妆台的几组格子,作为化妆品摆放区。
转角衣柜连接一段小型的梳妆台,悬浮的抽屉桌放置化妆用品,让小巧的角落也有自己的秩序感。在这里画个美美的妆容,伴随一整天的愉悦心情~
地台床一侧做通顶的柜体,整洁的墙柜空间增加更多储物量。床边留出一长条格子,随手置物的空间很好用。
原本斜屋顶会压低房高,利用组合的墙柜连接转折的屋顶,视觉上可以起到拉伸层高的效果。
靠一侧做地台,其他位置留出更多的地面空间,方便以后给小朋友增加宽敞的活动区域。
地台床左侧开放区做上翻柜,盖上柜门可作随手置物区或者睡前阅读区。
右侧做高柜储藏小成员猫咪的用品,左侧的弧形门洞放置猫沙盆。上方是猫咪玩耍的爬架,光线和通风最佳的位置,规划一间猫咪房,让屋主和猫咪都住得舒服~
阳台的另一侧是家政区,高柜用于存放洗衣用具,给晾晒提供方便。
相关案例推荐
久栖设计
设计师相关作品

粤公网安备 44010602000156号