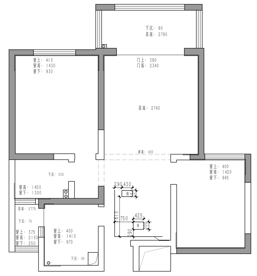
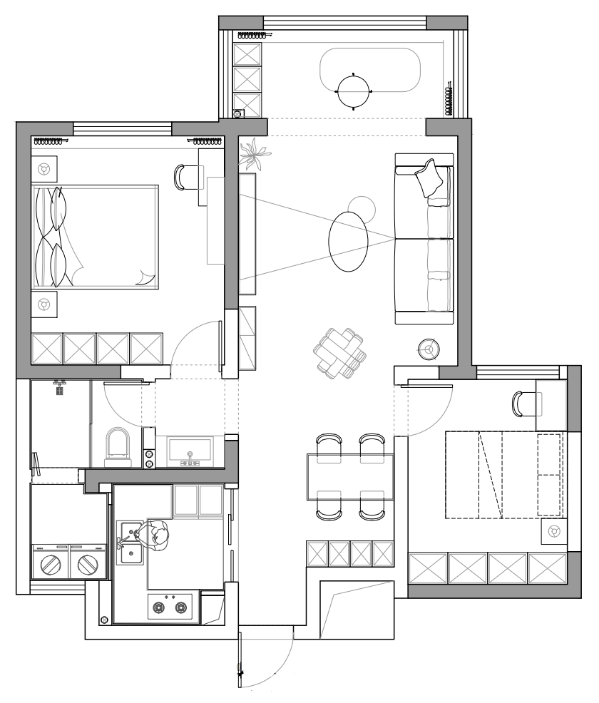
前言: 业主是位单身小姐姐,原始户型是两居室,动线也较合理,所以在平面布局这块没做太多改动,主要是把功能和储物做全,侧重点放在软装和配饰上。
卫生间
阳台
走廊
网友评论
哲居设计
设计师相关作品
编辑精选

粤公网安备 44010602000156号