前言:
设计需求:一对小夫妻 一个女宝宝 父母帮忙照顾小孩
需要房间:主卧 衣帽间 长辈房 小孩房 书房,需要很多储物空间,希望家里是一个多互动交流空间,同时也能满足相对独立的活动空间。
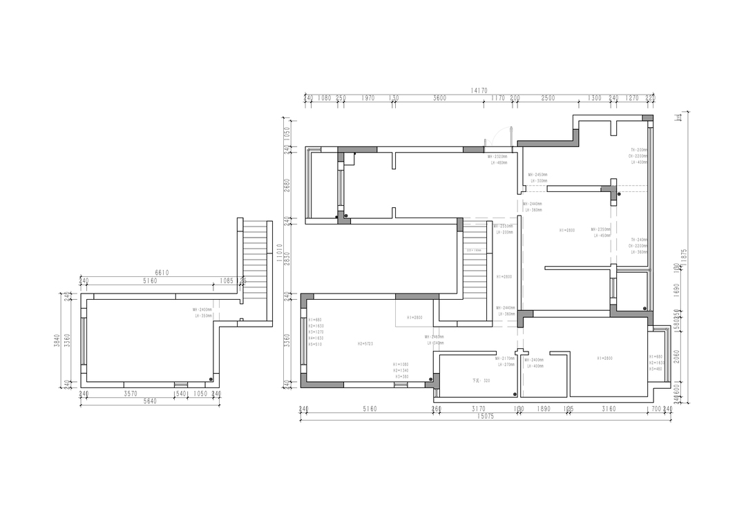
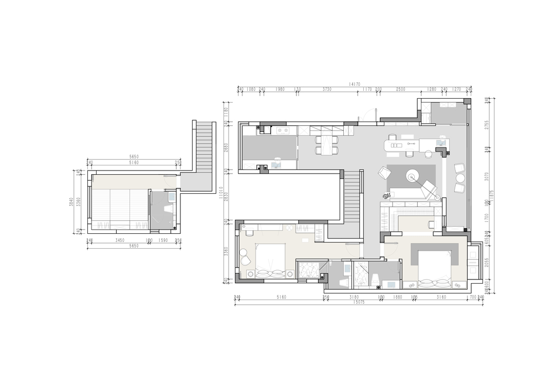
原始的户型,并没有一个单独的玄关,如果刻意做一个玄关出来,势必会非常影响客厅到餐厅的动线,并且空间上也并不适合,所以在设计上,考虑把鞋柜设计在进门的右手边,跟西厨形成一个整体。
客厅 无主灯设计 灯光更有层次,沙发用的组合沙发,休闲 观影 小孩玩耍娱乐,根据需求随时切换场景
白色 木色,浅绿色 的配比组合让整个空间都现代自然清新
楼梯间拱形造型给空间增加了一些趣味性
水吧 书吧结合在一起,非常方便 居家办工学习,泡上一壶茶后 同时也是家庭交流中心
拆除原始生活阳台墙体,把厨房的面积扩到生活阳台上来,保证厨房的使用面积。
厨房设置为双1字型,即加长了橱柜的面积,又不会影响厨房的采光,通风。
原始厨房的操作台面太少,希望增加操作台面,用于后期一些小家电以及蒸烤箱的功能。
餐桌采取伸缩的款式,平时家里最多也只有三个人吃放,把更大的空间留给过道,人口多的时候可以展开,容纳更多的人。
靠近厨房一侧增设一组超长的西厨,用于后期的储物,以及内嵌蒸烤箱,满足后期烘焙的功能。
壁龛
简约
现代
干湿分离
浴室柜
混搭
法式
镜柜
花砖
卫生间
原始卫生间采光太差,除了凿壁借光之外,也可以通过瓷砖的整体搭配,做到清新且温馨。
地面,半墙采取水磨石的铺贴方式,搭配上墙蓝绿色的墙砖,同时配色饱和度低的黄色,使整个空间清新自然。
淋浴隔断采用半隔断的处理手法,即能保证水流不外溅,又可以保证整个空间宽敞明亮。
次卧在衣柜的设计上,考虑到次卧卫生间的采光,所以在进门处设计了一个L型衣柜,靠近卫生间的墙面做成玻璃隔断,把光线引入卫生间。
把小书房拆掉,重新规划空间,并入主卧设计衣帽间,主卧更加宽敞,放下大的婴儿床没有任何压力。主卫没有窗户采光,设计玻璃连通主卧,及解决了采光问题也让卫生间显得更为宽敞。
相关案例推荐
哲居设计
设计师相关作品

粤公网安备 44010602000156号