前言:
黑色在柔和地旋转,像一首圆舞曲。黑色,是这个家毫无疑问的重音,石材与木质随之点缀。白色留给空间框架——细微处的结构调整,会大大提升居住体验。不向标签化投降,最终有了这个简单纯粹,又不失温柔细腻的黑白灰之家。
项目地址 | 芜湖国宾台
设计团队 | 研己设计
合作模式 | 设计+落地对接
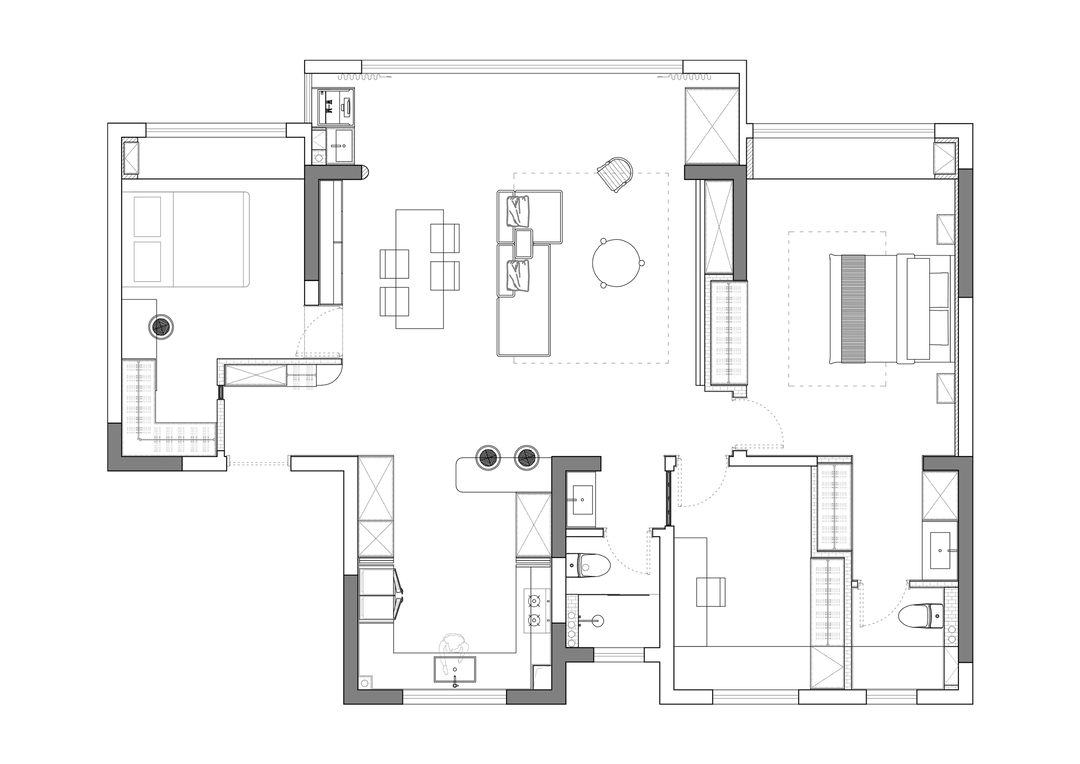
建筑面积 | 142㎡ 3室2厅
项目类型 | 平层
提升家的实用性之外,我们要依据屋主的个性、生活习惯,去塑造适配的氛围。在这个家,我们希望它能更“Chill”。
比如在餐厅,比起单纯的就餐空间,它也是一个“与自己相处”的角落。喝咖啡、把玩喜爱的物件,展示收藏的书籍……搭建起“我”的一角。
餐边柜用黑色长条砖搭配绿色石材与浅色木质,营造出高级简约感。儿童房入口使用隐形门,使用线性加长风口,转角处理成弧形。考虑到空间的每一个细节,才会有干净高级的表达。
厨房采用无主灯设计,增添吊轨移门,轨道与门框选用黑色,视觉上统一、高级。要想厨房好用,操作空间与储物空间都要充足,几组顶天立地柜,提供充足的储物空间,并整合冰箱与小电器,干净简约。
我们在过道边增加了一个吧台,开放式厨房+吧台的设计,可以为厨房增添社交属性,增强厨房与其他空间的连接感。
每个家都不可复制,所谓的极简也不是千篇一律。在这个家,不管是斜顶造型,还是墙面的骨骼线,都是依据这个家的尺寸“量身定做”,选择最悦目的比例,让空间大气开阔,层次变化明晰起来。
用隐藏式幕布取代电视,利用背景墙,一半给客厅储物,一半让给卧室的顶天立地柜,利用造型统一立面。沙发采用半围合式布局,营造松弛随意的会客氛围。
在卧室设计中,我们经常遇到的问题是储物空间与活动空间不足,卧室无法放松自然。
在这里,我们将床尾与干区,向客厅与书房推出,增添储物空间,扩充过道。干区开放,大面积木饰面增添温润的自然氛围。
床头不做靠背,定制造型衔接同色系悬浮柜,黑白分明,层次递进。用减法增添卧室的舒适度。
相关案例推荐
研己设计
设计师相关作品
编辑精选

粤公网安备 44010602000156号