前言:
自在、克制、温度才是理想家的样子,也是面对生活的态度。
当生活无法全然随心意时,家更像避风港,
用不同的心境去装扮它,也得到它一次又一次的治愈。
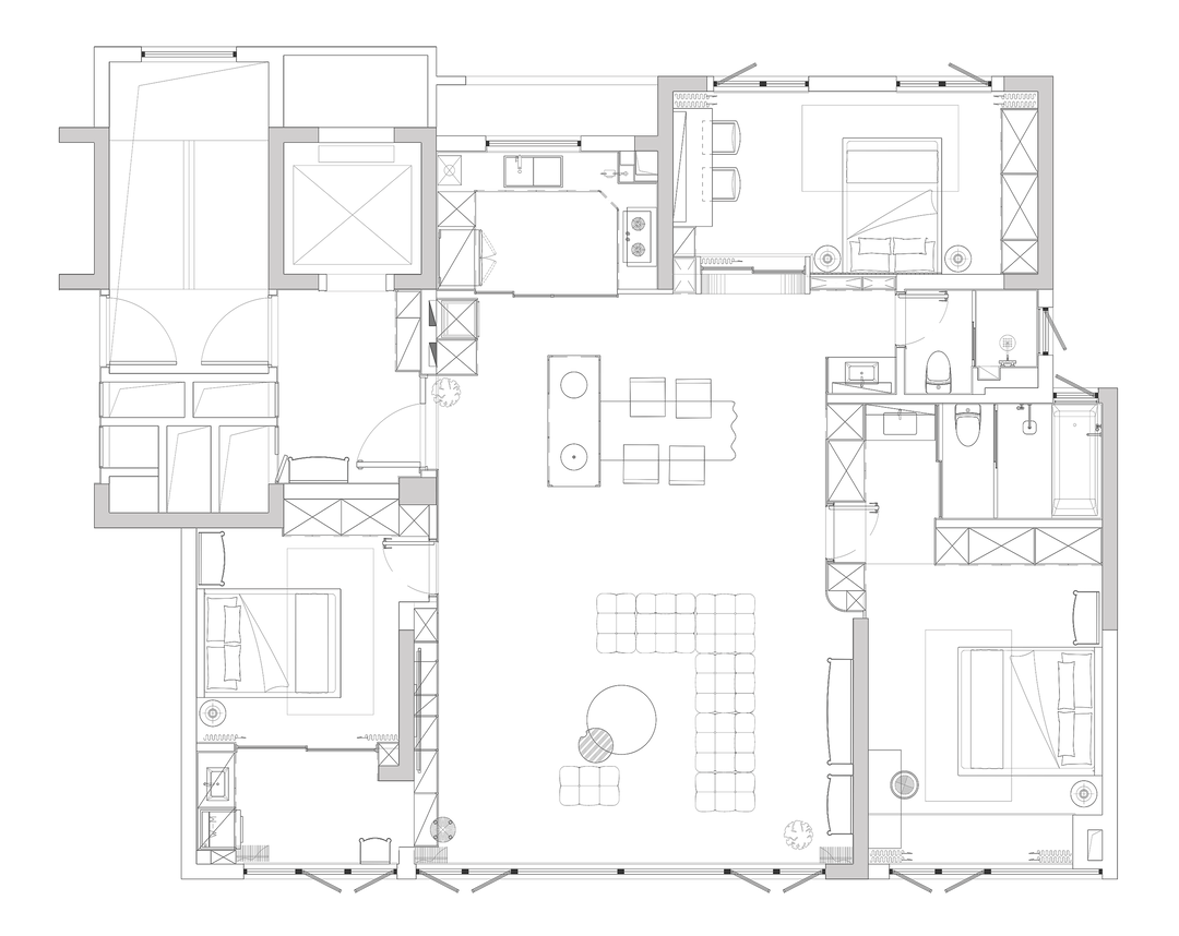
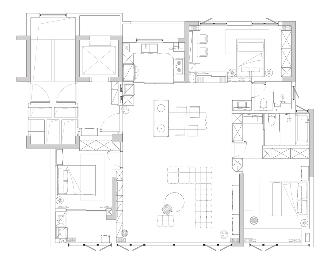
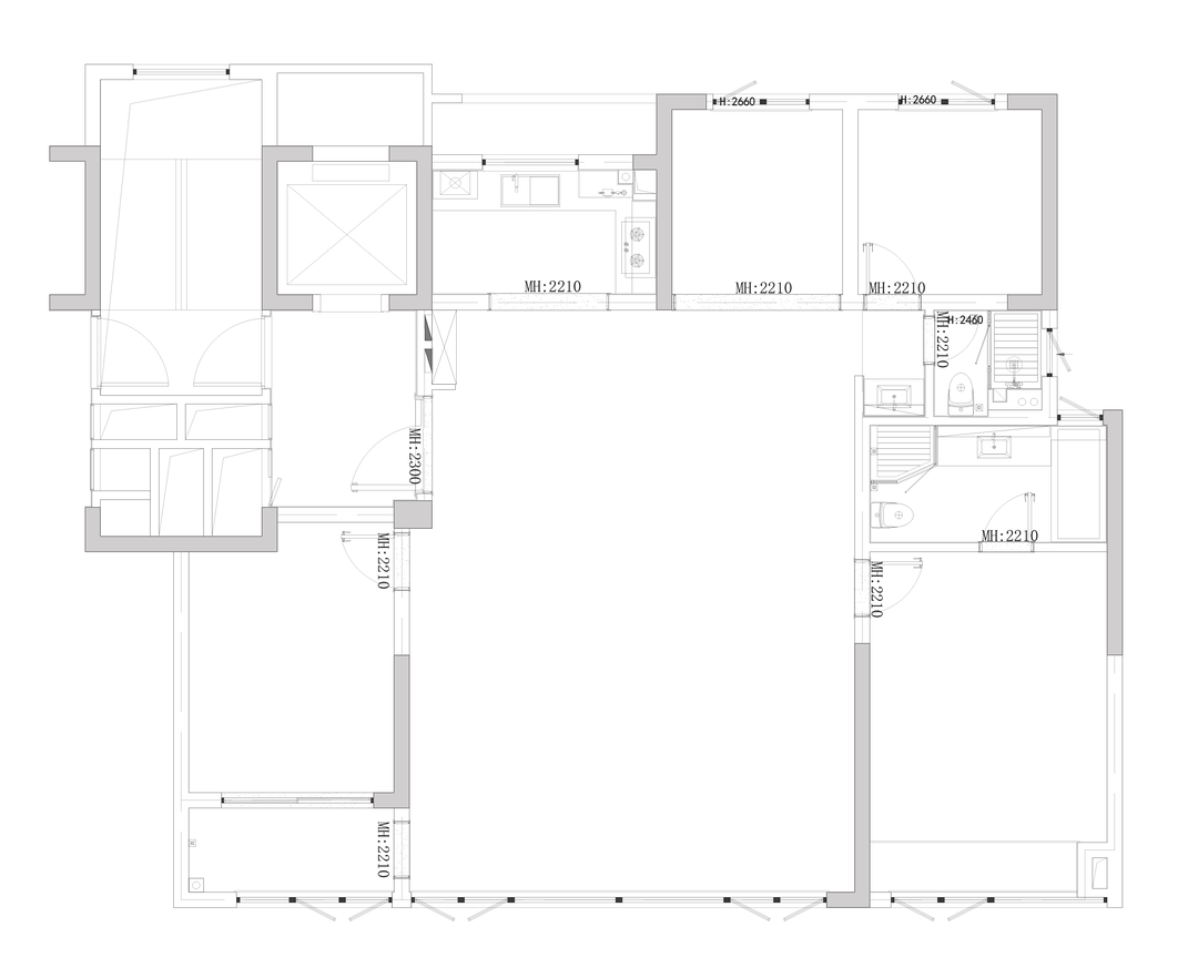
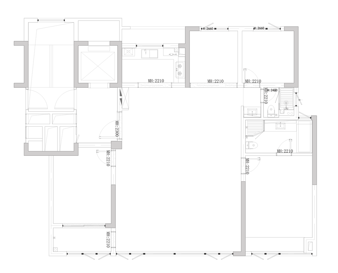
客厅
餐厅
卧室
相关案例推荐
网友评论
禄本设计
设计师相关作品
编辑精选

粤公网安备 44010602000156号