前言:
项目是两套4.1米层高,套内70平,搭建后120平的lot公寓。业主是一位时尚的独居男生,这个公寓是作为他的第二居所,需要满足休息、娱乐等功能。业主偏好冷色调,所以我们以黑白为主贯穿整个室内空间,营造出独具审美品味的艺术氛围,
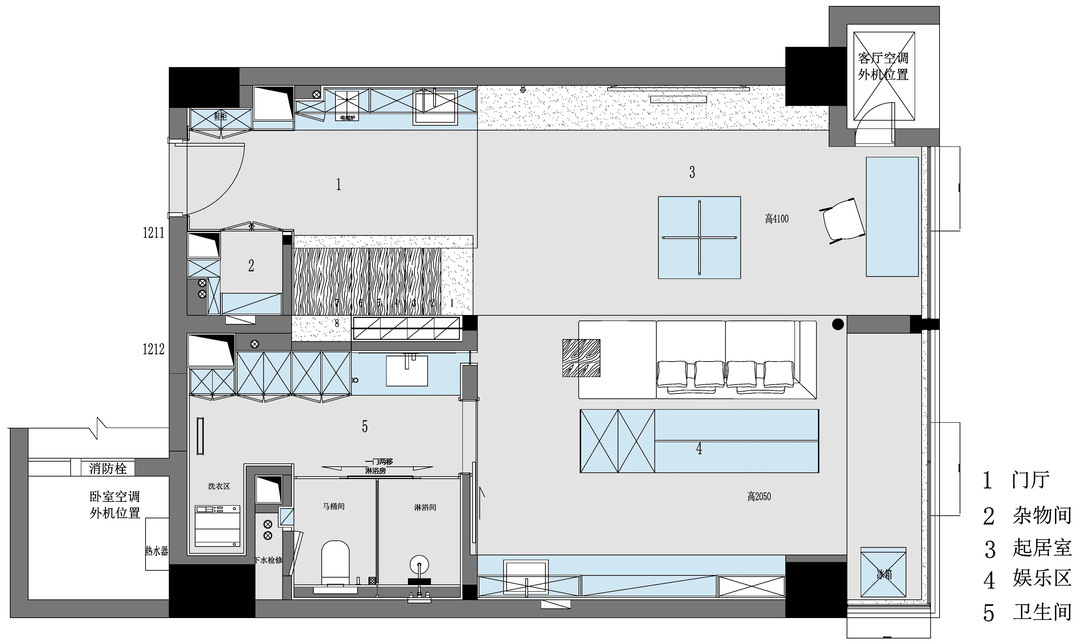
空间本身属于一字型狭长的户型,进深10米,层高4.1米,单面来光,有很棒的窗景。由于空间受限。通过保留挑空部分,重塑布局空间动线,让整体空间留有更多可呼吸对话的空间。平常业主就一人居住,一楼靠近窗户的位置我们用来做休闲娱乐区域,让空间尽量通透、开放。二楼在满足卧室需求的前提下,其余空间用来做挑空设计把Loft的优势发挥出来。
跨门而入,
入户左侧
是厨房空间,
沿墙面一侧打造一整面白色橱柜结合穿戴镜,
将厨房烟道巧妙的包裹在入户橱柜内,
保证空间整齐度的同时还能增加入口的明亮感。
入户右侧设计了一个储物间,
利用楼梯下方的空间,
新建了一个2m²不到的储物间,
每一寸空间都得以100%利用,
省而不挤,
小空间的玄关寸土必争。
整个公区空间全部打开,
空间形成洄游动线,
实现空间最大化和动线趣味性。
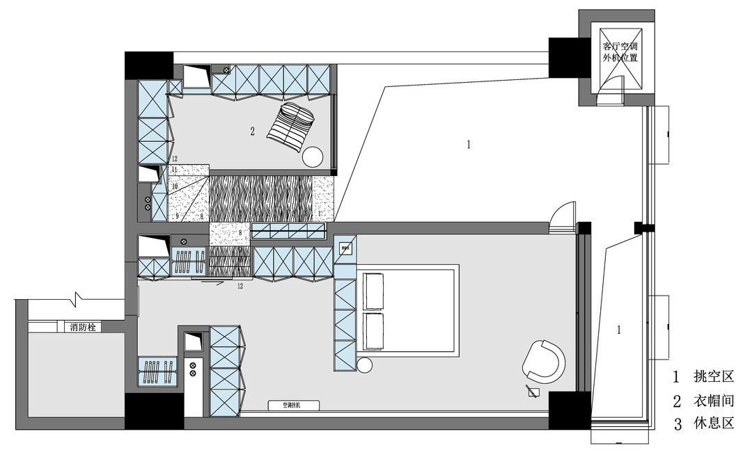
设计师利用二楼拗口的半高墙,
作为开放的球鞋展示区,
隐形灯带+亚克力透明质感
简真是踩在鞋控的心巴上了~
全面开放的格局,
让客厅、西厨、厨房、娱乐区四个空间相互联动。
在整体体验感提升的同时,
还增加了空间的通透性。
利用玻璃材质的运用,
让窗外的光线循序般的透进屋里最深处。
卫生间隔墙上开了一个小窗口,
采用透光不透人的超白长虹玻璃隔断,
隔而不断的设计既能够保证空间的光影通透。
客厅在最靠近窗户的地方,
采光十足,
整体4.1m的挑空完全打开。
用磁吸轨道灯来调节光源,
赋予了空间新的氛围感。
站在电视背景墙的位置放眼客厅,
平面的开阔感和纵向的通透交错在一起,
Mini Loft的小空间里,
也能瞬间做出大气场。
把阳台融入客厅,
大面积落地窗,
去除隔档条,
把景观和光线带入室内空间。
整套房子的基调是纯白色的,
墙壁、天花均采用白色。
基于现浇的地方层高有限,
设计师选择0.5CM超薄磁吸轨道灯,
无需吊顶、开槽、预埋就可以安装轨道灯,
同时还不占天花空间
沙发背后的区域是中岛和水吧台的位置,
岛台被放到了超大落地窗旁边视野和采光都是极佳,
3.2米的多功能岛台,
下方可以做充足的储物同时在非用餐时,
便形成一个超大的工作台。
岛台既能实现强大的功能区又是一览窗外世界的休闲地,
柜也加入了一些工艺缝和隐形灯带,
照亮空间亮度的同时增加整体质感。
在考虑功能需求时,
又希望创造相对舒适的沐浴环境,
于是在规划卫生间时,
为了不让马桶和淋浴共处一室溅水,
通过极简玻璃隔断将
淋浴间与马桶区独立开来,
规划出“三分离”格局。
洗手台面材质用的是岩板,
内嵌台下盆水池,
避免日常居住的打理难题,
即好看又好用。
相关案例推荐
张鹤龄
设计师相关作品

粤公网安备 44010602000156号