前言:
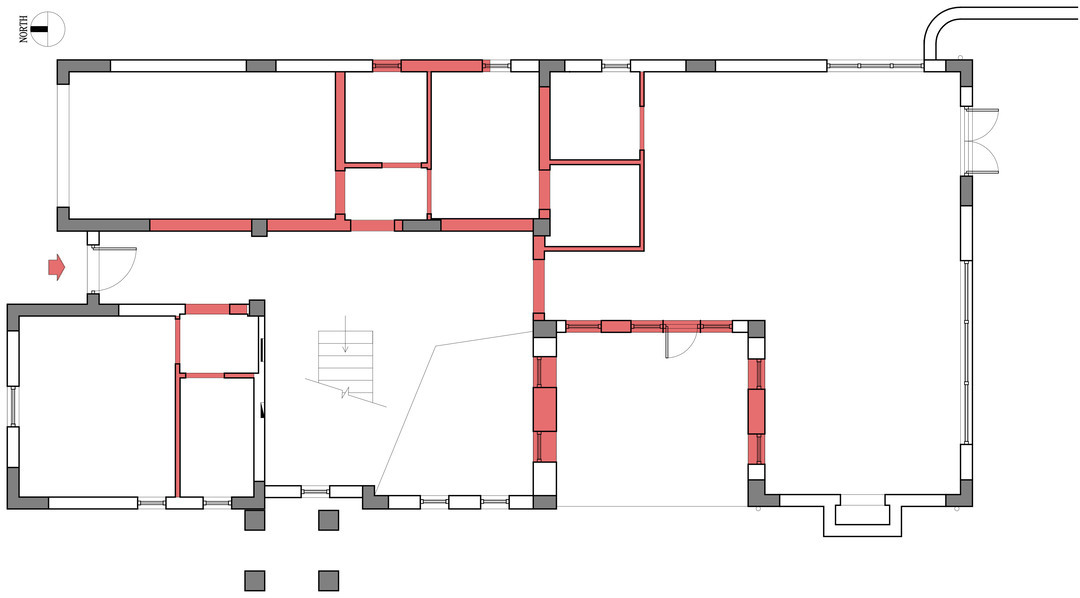
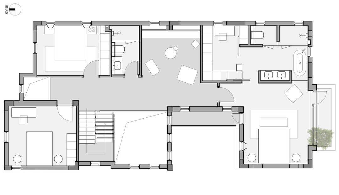
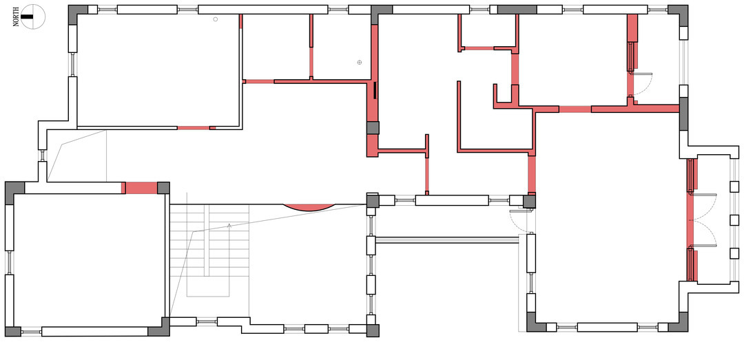
本案是位于南京溧水的一套别墅项目。别墅分为上下两层 ,一层主要功能有客餐厅、副厅、中西厨,以及客房,二层主要为私密区域,主要是起居室和卧室。
拥有得天独厚的自然景观和静谧的地理位置,设计师希望能够摒弃传统别墅的精致、奢华、典雅,还居者一个慵懒、自然、治愈的空间。
入户长廊,与二楼挑空区域相望,沿着墙壁附上的天然莱姆石,从平面和立面两个维度向着室内展开,延续至餐厅和二楼挑高区域。空间的神秘面纱由此揭秘。
木门深沉是岁月的符号,光线穿过宁静的空气,细语流淌,悄声言语,每一处角落藏着悠然,是生活的诗,是心的栖息。
空气中浮动着若有若无的生活气息,像是清晨的雾霭,又似暮色的薄纱,快与慢的界限被抹去,留下的只是纯粹的存在感。
炉火熊熊,窗外四季流转。
以天然洞石为屏,将壁炉镶嵌其中,粗犷与精致相融,火光映照石纹,自然之趣跃然而生,柴火轻响,似大自然的低语,令人不觉沉醉其中。
温暖的火光轻轻跳跃,映照着一室的宁静祥和。藤椅斜倚,红沙发柔,时光在此,缓缓淌过,窗外绿意隐现,窗内炉火微燃。理想的居所,不在华丽,只在心安。
通透的落地窗户将庭院美景尽收眼底,室内外浑然一体。或观冬日飞雪纷扬,或赏夏日碧叶婆娑,将自然蓬勃的生命力揽尽。春秋更替,色彩与光影交织变幻,映照着四季的轮回,在心灵深处勾勒出期冀。
墨色天然石材从厨房延展至客厅尽头,其天然纹理与深邃质感浑然天成。舍弃繁冗的电视柜底座,还原背景墙的纯粹之美。通过不同比例的切割与拼接,石材的线条在视觉上延展开来,令空间愈显开阔。
以轻盈的木饰面横梁点缀其间,强化线条纵横视觉引导,更是点睛之笔。
石材的沉稳、木制的温润、皮质的柔和,三种质地在空间中错落有致。层次交错间,平面被赋予了灵动的韵律,成就了一方静谧而富有张力的居室。
平铺的地面,柔和的颜色,每一寸都沁润着心扉。
相交于古典城堡的设计,设计师更期望于简单和纯粹,西厨与客厅连接,西厨需要开放式的布局和随意的空间形式,洋溢着自由不羁,又承载着家人互动的温情。
光,以温暖的笔触,描绘夜的轮廓。壁炉中的火焰低语,是最原始的情书。
寂静的时候,是最勾人魂魄的时刻,让人感受到,生命的纯粹与安谧。
挑空式的餐厅空间以其纵向延展的气势,打破了传统居所的平面局限。
挑高的垂直维度为悬垂灯具提供了恰如其分的舞台,层叠交错的光影在餐桌上方编织出浮动的光晕,既是视觉的焦点,也为用餐注入了优雅的仪式感。
团圆的中餐厅,则更像是一幅细腻温婉的工笔画,围合而坐,烟火气中蕴藏着深厚的家族情感与礼仪的庄重。
中餐厅和西厨之间,一者是现代生活的轻盈翩跹,一者是古典情怀的深沉隽永,共同完成了空间由现代到典雅的转变。
每一缕光都是一个故事,每一片影都是一次倾诉,在这光影交织的夜晚,时间仿佛凝固成永恒的画面,留下无声的感动,和永不熄灭的温度。
运用骨骼线移门作厨房隔断,不对称的分割打破了既定的空间秩序,却在看似随意的错落中蕴藏着巧思的匠意。
重新定义了东方空间的意境,犹如一首不押韵的诗,却自成章法。
悬浮式楼梯构造勾勒出轻盈的线条,金属与木材两种触感和观感皆大相径庭的材质,在设计手法的碰撞中展现出极简主义的格调,而莱姆石材质的延续则在视觉上形成了空间的韵律感。
建筑肌理在此呈现出最本质的空间语言,将时间具象化为可感知的空间序列。
光线在建筑的缝隙间流动,将瞬息万变的时态投射于空间,使固态的结构获得了流动的灵魂。
窗的存在超越了其基础属性,成为了捕捉光影变迁的时空容器。光不再是简单的自然元素,而成为了空间的解构者,在明与暗的交界处重新定义了空间的本质。
主卧空间在柔和的光线中舒展开来,落地窗外的绿意随风轻摆,从室内看望室外借景入室,风景如画,将自然的静谧引入室内。
生活不再是步履匆忙,晨起时分,阳光的温度、树影的婆娑、空气的流动,都成为了丈量幸福的微小单位。
相关案例推荐
云行空间建筑设计
设计师相关作品

粤公网安备 44010602000156号